Найти в Дзене
INMYROOM

Тифлисские истории: как грузинский ковер вдохновил дизайн яркой квартиры в Тбилиси

Оглавление

Получился яркий этнический интерьер

Если вы когда-нибудь задумывались, как органично соединить современный минимализм с этническими мотивами, эта квартира в центре Тбилиси станет для вас настоящим открытием. Представьте: яркие цвета, перекликающиеся с орнаментом традиционного грузинского ковра, четкие линии современной мебели и неожиданные акценты в виде винтажных кресел и керамической люстры, расписанной вручную местным художником. Дизайнер Владимир Матушкин из студии MATERIAL создал пространство, в котором дух древнего Тифлиса гармонично сосуществует с функциональностью и удобством современного жилья. И всё это для молодой семьи с грузинскими корнями, которая приобрела свою первую квартиру на исторической родине.

Место: Тбилиси, Грузия
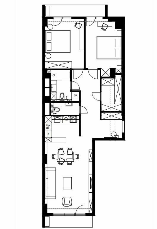
Метраж: 85 кв.м
Дизайн: Студия MATERIAL, Владимир Матушкин
 📷
📷

Главное из статьи:

  • Основой дизайн-концепции стал традиционный грузинский ковер, все цвета интерьера повторяют его орнамент;
  • Компактное пространство 85 кв.м рационально организовано за счет перепланировки и встроенных систем хранения;
  • В оформлении использованы аутентичные элементы: отреставрированные винтажные кресла и керамическая люстра ручной работы;
  • Плитка с этническими мотивами и панно с райскими птицами на кухне поддерживают грузинскую атмосферу.

Грузинский ковер как источник вдохновения

«Отправной точкой проекта стал традиционный грузинский ковер. Цвета интерьера все взяты именно с его орнамента, поэтому так гармонируют друг с другом», — рассказывает Владимир Матушкин о концепции проекта. Этот подход оказался по-настоящему выигрышным: палитра грузинских ковров с их насыщенными красными, синими и охристыми оттенками создает одновременно яркий и гармоничный образ.

Сам ковер занял центральное место в гостиной, став не просто декоративным элементом, но и смысловым центром всего пространства. Он был специально приобретен в первую очередь для этого проекта и задал тон всему интерьеру.

 📷
📷
 📷
📷
 📷
📷
 📷
📷

Перепланировка на службе функциональности

Важной задачей проекта было сделать пространство не только стильным, но и максимально функциональным. Для этого дизайнер провел небольшую перепланировку: увеличил санузел за счет изначально слишком просторного коридора.

«Санузел в проекте удалось увеличить за счет излишне большого коридора, таким образом в санузле удалось разместить большую душевую, зону раковины, а также в освободившееся пространство бывшего коридора вместить постирочный блок из двух машин и встроенного шкафа», — объясняет дизайнер.

Такое решение позволило рационально использовать каждый квадратный метр квартиры площадью 85 кв.м и создать более удобное пространство для повседневной жизни.

 📷
📷
 📷
📷

Кухня: компактная, но функциональная

Кухня в проекте получилась компактной, но при этом вместила все необходимые приборы: плиту, посудомоечную машину, раковину, встроенные духовку, микроволновую печь и холодильник в пеналах. Дизайнер предусмотрел даже специальный шкаф для бытовых приборов с розетками внутри — решение, которое понравится любителям кухонной техники.

Для быстрого перекуса и увеличения рабочей площади была спроектирована барная стойка. А настоящим украшением кухни стало панно из глянцевой плитки с райскими птицами и цветами, которое поддерживает этнический мотив всего интерьера.

«В поддержку этнических мотивов, фартук на кухне приобрел огранку в виде панно из плитки с орнаментом из райских птиц и растений», — отмечает Владимир Матушкин.

 📷
📷
 📷
📷
 📷
📷
 📷
📷

Продуманные системы хранения

Вопрос хранения вещей был решен комплексно. По плану застройщика в квартире изначально была предусмотрена вместительная гардеробная комната, которая позволила разместить сезонные вещи. Дополнительно в прихожей и спальне были спроектированы встроенные шкафы и стеллажи на заказ.

Такое разнообразие мест для хранения позволяет поддерживать минималистичность и порядок в жилых зонах, что особенно важно для небольшой квартиры.

 📷
📷
 📷
📷
 📷
📷

Этнические акценты в современном исполнении

Особый характер интерьеру придают тщательно подобранные детали. Рядом с грузинским ковром в гостиной расположились два винтажных кресла в стиле мидсенчери 50-х годов, прошедшие полную реставрацию в местной мастерской.

Еще одной яркой деталью стала керамическая люстра, изготовленная на заказ и расписанная вручную местным художником. Этот светильник выступает не просто как источник света, но и как произведение декоративно-прикладного искусства, подчеркивающее грузинский колорит квартиры.

Традиционные мотивы нашли отражение и в отделке: на пол была выбрана лаконичная плитка-октагон с ненавязчивым орнаментом, которая перекликается с общим этническим настроением интерьера.

 📷
📷

Прихожая и спальни: простота и яркие акценты

Прихожая собрана из лаконичных простых форм, создающих единую композицию: фигурное зеркало, светильники-шарики и подвесная тумба. Однотонные цветные предметы разбавляет светлая фигурная плитка, создающая орнамент на полу.

Спальни в проекте получились компактными и функциональными. В одной из них акцентом выступает яркая стена с обоями, повторяющими общую цветовую гамму интерьера. Вторая спальня решена в более сдержанных, контрастных бело-синих тонах.

«Спальни проекта очень компактные и лаконичные. В одной из спален акцентным элементом выступает яркая стена с обоями, также повторяющими все цвета интерьера. Другая же спальня более консервативна и решена в контрастных бело-синих цветах», — комментирует дизайнер.

 📷
📷
 📷
📷
 📷
📷
 📷
📷

Грузия в каждой детали

Особенность этого проекта в том, что дизайнеру удалось создать современный, функциональный интерьер, при этом сохранив дух места. Как говорит сам Владимир Матушкин, заказчики хотели «получить современный и функциональный интерьер, а также чтобы прослеживался дух, гений места, ведь квартира находится в самом центре столицы Грузии».

Эта задача была блестяще решена путем интеграции традиционных грузинских элементов в современный дизайн: от основополагающего ковра до плитки с этническими мотивами и предметов ручной работы местных мастеров.

В результате молодая семья получила пространство, которое не только удобно для повседневной жизни, но и наполнено атмосферой исторической родины. Квартира в новостройке с высокими потолками (3 метра) и продуманной планировкой стала идеальным первым жильем в Тбилиси, сочетающим функциональность современного дома и аутентичность грузинской культуры.

Этот проект наглядно демонстрирует, как можно создать яркий этнический интерьер, избегая при этом перегруженности деталями и клишированных решений. Секрет успеха — в искусном балансе между современным минимализмом и точечными этническими акцентами, создающими неповторимую атмосферу.

 📷
📷
 📷
📷