Добавить в корзинуПозвонить
Найти в Дзене
INMYROOM

Гостиная в сталинке как из Pinterest

Как блогер оформила интерьер для себя Наша героиня Маша @masha_v_stalinke вместе с мужем купили трехкомнатную квартиру в крупноблочной сталинке 1957 года постройки. Сегодня мы подробно расскажем о роскошной гостиной. Пара въехала в практически пустую квартиру, где единственными элементами были их кровать, временная тумба под ТВ, выбранная мужем, и два пуфа-мешка, заменяющих диван. Однако, прожив в этом пространстве, они постепенно обустроили его, внимательно выбирая необходимые предметы. Источниками вдохновения для Маши служили интерьеры сталинок после ремонта, которые она находила на Pinterest и INMYROOM. Также ей нравится парижский стиль, где сочетаются классика и современность, проявляющиеся в белых стенах, лепнине и акценте на деталях интерьера. Наша героиня оформила пол во всей квартире на одном уровне, используя пробковый компенсатор вместо порожков, что создает эстетичный вид. Единое полотно придает цельность интерьеру, а отсутствие порогов обеспечивает беспрепятственное передви

Как блогер оформила интерьер для себя

Наша героиня Маша @masha_v_stalinke вместе с мужем купили трехкомнатную квартиру в крупноблочной сталинке 1957 года постройки. Сегодня мы подробно расскажем о роскошной гостиной.

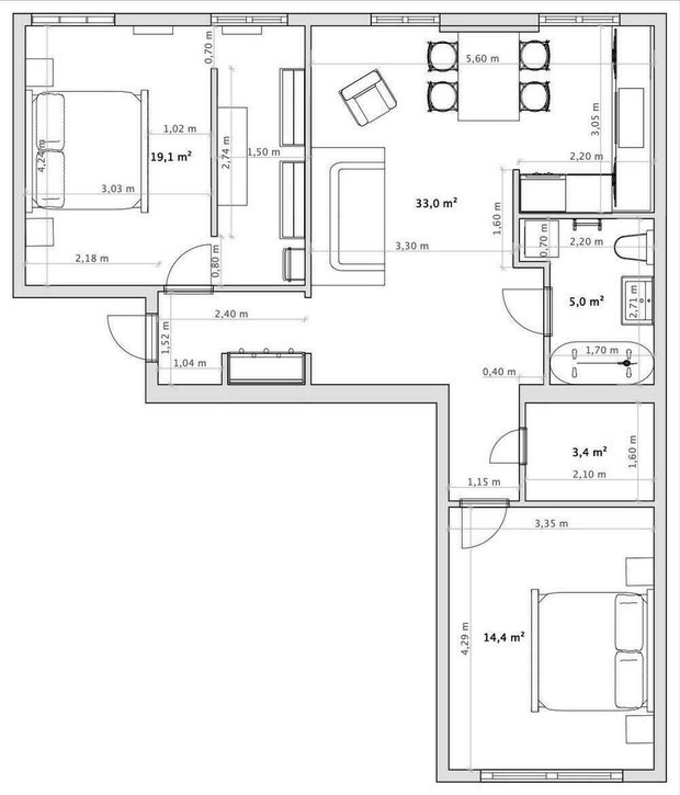
 📷Планировка квартиры
📷Планировка квартиры

Пара въехала в практически пустую квартиру, где единственными элементами были их кровать, временная тумба под ТВ, выбранная мужем, и два пуфа-мешка, заменяющих диван. Однако, прожив в этом пространстве, они постепенно обустроили его, внимательно выбирая необходимые предметы.

 📷Фото квартиры сразу после ремонта, когда пара только заехала.
📷Фото квартиры сразу после ремонта, когда пара только заехала.

Источниками вдохновения для Маши служили интерьеры сталинок после ремонта, которые она находила на Pinterest и INMYROOM. Также ей нравится парижский стиль, где сочетаются классика и современность, проявляющиеся в белых стенах, лепнине и акценте на деталях интерьера.

 📷Диван и кресло — 72 000 рублей, кресло было в подарок.
📷Диван и кресло — 72 000 рублей, кресло было в подарок.

Наша героиня оформила пол во всей квартире на одном уровне, используя пробковый компенсатор вместо порожков, что создает эстетичный вид. Единое полотно придает цельность интерьеру, а отсутствие порогов обеспечивает беспрепятственное передвижение. Для отделки использовали паркетную доску фирмы Barlinek.

 📷
📷
 📷
📷

Деревянные подоконники обошлись в 10 000 рублей, несмотря на то, что мастерские насчитывали раз в 10 дороже. Мария и ее супруг просто поехали на рынок и купили там мебельный щит нужных размеров, который немного подпилили и покрыли лаком в пару слоев.

 📷
📷

Оставили родные чугунные батареи, Маша объясняет свое решение видением интерьера: они лучше вписываются в общий стиль, чем современные радиаторы, и эффективно обогревают помещение. Однако был сделан важный шаг: установлены краны, чтобы регулировать температуру, поскольку батареи топят настолько сильно, что зимой приходится временами их перекрывать.

 📷
📷

Маша заранее предусмотрела место для новогодней елки и розетки для гирлянд. Отличительной идеей стало размещение розеток в откосах, что обеспечило удобство подключения гирлянд, висящих на окнах, а также других устройств, например, у нашей героини на подоконнике стоит колонка.

 📷
📷
 📷
📷

Больше подробностей о квартире Маши и крутых идей об организации пространства для работы и отдыха — в нашем новом материале.

Сейчас читают: