Найти в Дзене

На что УХОДЯТ ДЕНЬГИ во время ремонта?

Почему качественный ремонт стоит дорого? На примере нашего нового интерьера расскажу о том, куда уходят деньги и на что нужно обратить внимание при составлении сметы ремонта. Привет! Меня зовут Карен Карапетян, я — архитектор и интерьерный дизайнер. Мы в компании Alexander Tischler проектируем и реализуем интерьеры, а также проектируем и производим корпусную мебель. Почему ремонт — это дорого? Наш новый интерьер мы реализуем в двухкомнатной квартире 79 м² с кухней-гостиной, мастер-спальней с ванной и гардеробом, и детской. Ремонт квартиры с дизайн-проектом обошелся хозяевам в 18 миллионов рублей. Разбираемся, почему так дорого. Во-первых, хозяева хотели сделать кайфовую дорогую квартиру, чтобы балдеть от того, как все сделано хорошо. Поэтому мы заморочились над деталями в интерьере, чтобы каждый элемент был продуман. Оформление стен в квартире У заказчиков было пожелание сделать стены в детской с графичным рисунком и акварельным градиентом. У нас был выбор: позвать художника, но тогда
Оглавление

Почему качественный ремонт стоит дорого? На примере нашего нового интерьера расскажу о том, куда уходят деньги и на что нужно обратить внимание при составлении сметы ремонта.

Привет! Меня зовут Карен Карапетян, я — архитектор и интерьерный дизайнер. Мы в компании Alexander Tischler проектируем и реализуем интерьеры, а также проектируем и производим корпусную мебель.

Почему ремонт — это дорого?

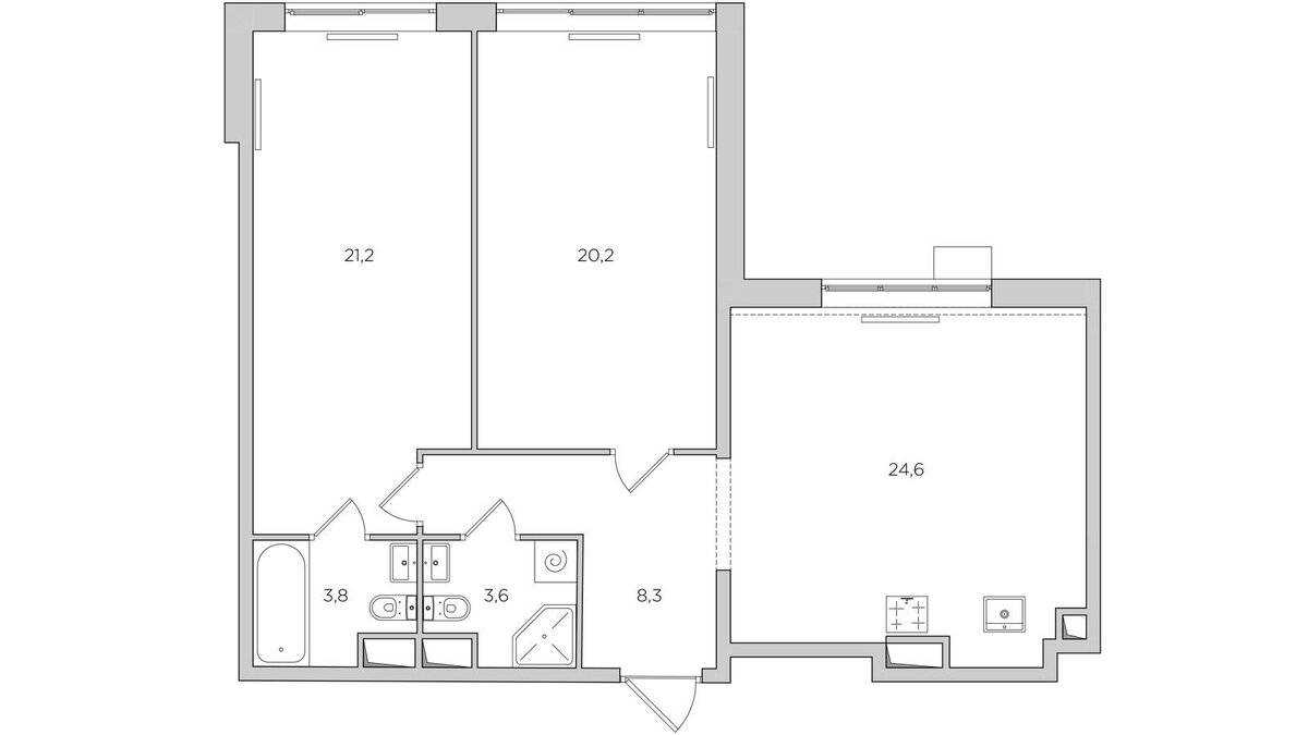
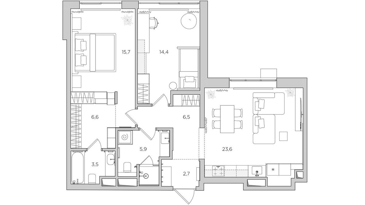
Наш новый интерьер мы реализуем в двухкомнатной квартире 79 м² с кухней-гостиной, мастер-спальней с ванной и гардеробом, и детской. Ремонт квартиры с дизайн-проектом обошелся хозяевам в 18 миллионов рублей.

Разбираемся, почему так дорого. Во-первых, хозяева хотели сделать кайфовую дорогую квартиру, чтобы балдеть от того, как все сделано хорошо. Поэтому мы заморочились над деталями в интерьере, чтобы каждый элемент был продуман.

Кухня-гостиная с яркими деталями
Кухня-гостиная с яркими деталями

Оформление стен в квартире

У заказчиков было пожелание сделать стены в детской с графичным рисунком и акварельным градиентом. У нас был выбор: позвать художника, но тогда результат был бы не предсказуемым, так как каждый мастер работает в своей стилистике или распечатать обои с нужным нам рисунком. Так как граффити — это более дорогое и непредсказуемое решение, то мы приняли решение распечатать обои одним полотном без швов, чтобы не было видно отвратительных стыков. Такие обои стоят 3600 рублей за квадратный метр.

В остальной квартире мы покрасили стены. Вам может показаться, что покрасить стены — это дешево и быстро, но за ровной поверхностью стоит много этапов работ длиною в 3-4 месяца.

Покрашенные стены в мастер-спальне
Покрашенные стены в мастер-спальне

Мы в компании Alexander Tischler начинаем работу с выстраивания ровной геометрии стен. Затем, выстроив стены, мы приступаем к многочисленным этапам шпаклевки и штукатурки стен. Углы обязательно должны быть 90 градусов, чтобы вся мебель встала идеально. На финальном этапе мы клеим стеклохолст, он позволяет стене стать более крепкой и избавиться от появления микротрещин, и только потом приступаем к окрашиванию стен.

Стена из гипсовых 3D-панелей в гостиной
Стена из гипсовых 3D-панелей в гостиной

Мы не используем в своих проектах обои под покраску, потому что это всегда риск заметных стыков, и у большинства обоев беспонтовый рисунок.

Мы в своих интерьерах не делаем плинтусы, вместо этого используем пробковый компенсатор, что усложняет жизнь малярам. Так как они привыкли халтурить и плохо прокрашивать верх и низ стены, обосновывая тем, что все закроет плинтус. Поэтому, если вы не хотите использовать плинтусы в своем интерьере, выбирайте профессионалов своего дела.

Шкаф для одежды в коридоре с ровным примыканием к стенам
Шкаф для одежды в коридоре с ровным примыканием к стенам

Многие боятся светлых стен из-за высокой степени загрязнения. Но, если использовать качественную моющуюся краску, то любые загрязнения можно будет спокойно убрать меламиновой губкой.

Освещение и потолки в квартире

Что удорожает ремонт? Потолки! В этой гостиной мы сделали многоуровневые потолки из гипсокартона, и это не дизайнерская прихоть, а техническая необходимость, так как кондиционер и воздуховод приточной вентиляции находятся на потолке.

Мы не делаем натяжной потолок, так как концептуально в премиальных интерьерах не должно быть ощущения, что у тебя на потолке пленка. Мне не нравятся, что потолки «играют», и когда вы открываете окна, меняется температура в комнате, потолок поджимается и видна вся проводка. А также это очень хрупкий материал, который легко испортить, например, во время монтажа мебели.

Прямой кухонный гарнитур в кухне-гостиной
Прямой кухонный гарнитур в кухне-гостиной

Чтобы обыграть перепад потолков в этой гостиной, мы внедрили хаотичную подсветку, которая усложняет световой сценарий комнаты. Многоуровневое освещение делает квартиру теплой и уютной. Конечно, такое освещение не может быть дешевым.

Можно сэкономить и сделать один светильник на потолке, но это будет техническое решение, и ни о каком уюте речи быть не может. Одинокий светильник на потолке делает пространство плоским.

Дизайнерская мебель

Стоимость мебели увеличивается за счет качественных материалов и фурнитуры. В этом интерьере в кухонном гарнитуре мы сделали единую столешницу без единого стыка и плинтусов. Мастера, которые готовы работать с такими решениями и будут четко выверять геометрию, чтобы конструкция встала с минимальными зазорами, не могут стоить дешево.

Шкаф с подсветкой в спальне
Шкаф с подсветкой в спальне

Мы делаем мебель по индивидуальным размерам и проектам, поэтому она стоит дороже, чем готовое фабричное изделие со стандартными габаритами. Все фасады мебели мы красим или шпонируем с двух сторон, чтобы мебель дольше сохраняла свой презентабельный вид и, я мне приносит эстетическое удовольствие мебель, в которой все прекрасно снаружи и внутри. Фасад, окрашенный с двух сторон стоит на 70% дороже, чем фасад, окрашенный с одной стороны.

Шкаф для одежды в прихожей
Шкаф для одежды в прихожей

Может ли хороший мастер стоить дешево?

Хороший мастер не может стоить дешево. Желание сэкономить на работниках всегда выливается в такую историю: пригласили бригаду, они сделали плохо, вы расстроились и пригласил других, они сказали надо переделывать все заново, и так по кругу. Таким образом, вы потратите больше денег на смену бригад и материалы, чем на оплату работы хорошего мастера.

Коллекторный узел водоснабжения
Коллекторный узел водоснабжения

Как отличить идеальную бригаду, которая сделает вам классный результат от бездельников? Если они перфекционисты у них и на объекте будет всегда чисто и аккуратно, несмотря на ремонтные работы.

Не забывайте заложить в свой бюджет дополнительные траты, так во время ремонта могут происходить неприятные сюрпризы — от поломки материала, до испорченных конструкций из-за работ монтажников.

Мы в компании Alexander Tischler делаем интерьер, как готовый продукт. Мы отвечаем за проект, закупки, логистику и работы.

Вы будете точно знать, во сколько обойдется ремонт еще до его начала. После согласования дизайн-проекта интерьера и мебели мы фиксируем стоимость производства. В нее входит все: материалы, мебель и работы. Смета интерьера во время реализации не изменится, независимо от ситуаций во время ремонтных работ.

Смотрите видео, чтобы подробнее разглядеть детали этого интерьера

А мы уже закончили здесь ремонт. В этой статье подробный рассказ и много фотографий