Добавить в корзинуПозвонить
Найти в Дзене

Яркая семейная двухкомнатная квартира: дизайн и ремонт

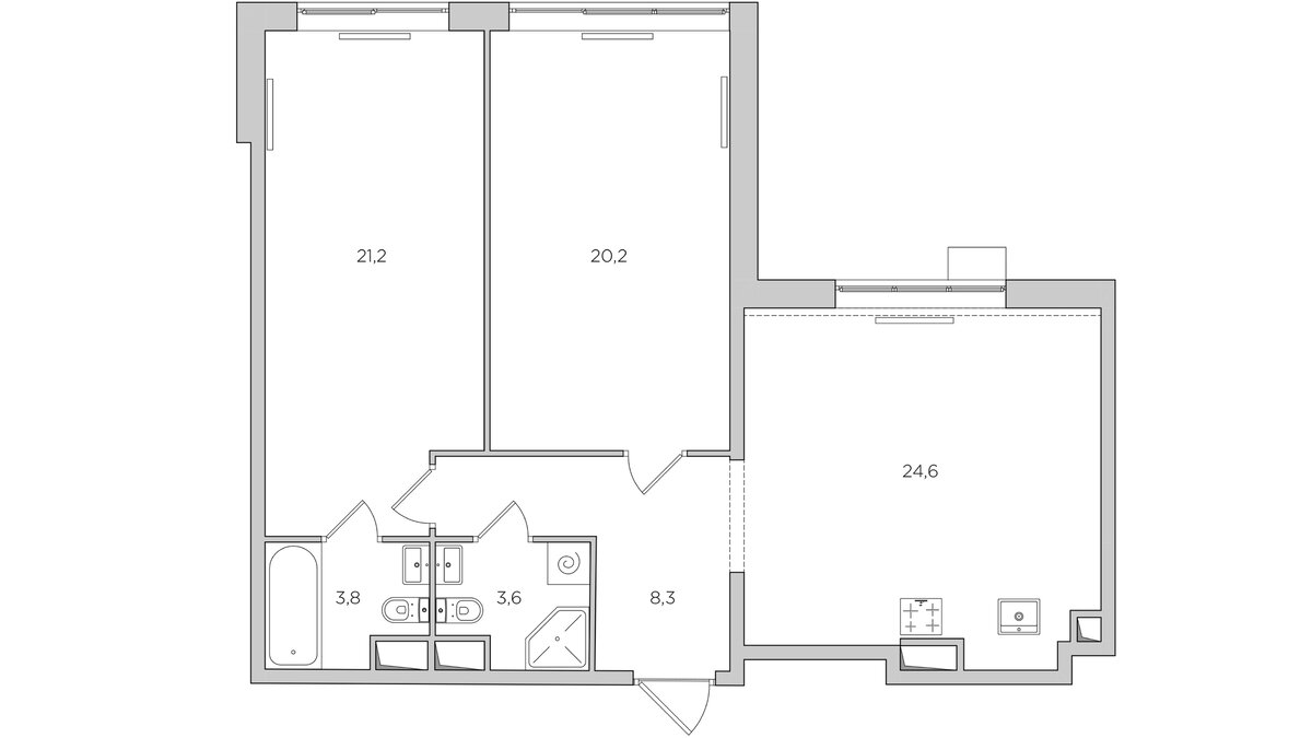
Этот яркий и функциональный интерьер мы реализовали в новом современном ЖК «Рихард» в Москве для молодой активной семьи с сыном-школьником. Заказчики были готовы к цвету, рисункам и орнаментам, мы воплотили их пожелания. Привет! Меня зовут Карен Карапетян, я — архитектор и интерьерный дизайнер. Мы в компании Alexander Tischler проектируем и реализуем интерьеры, а также проектируем и производим корпусную мебель. Сначала мы сформировали удобное жилое пространство: увеличили гостевую ванную комнату и выделили гардеробную при мастер-спальне, а потом наполнили квартиру яркими блоками цвета. От застройщика нам достался невысокий проем, ведущий в кухню-гостиную, в несущей стене, ниша в зоне кухни, тесный гостевой санузел и узкая вытянутая спальня. Решить вопрос с проемом в несущей стене было достаточно проблематично, так как с ним ничего нельзя сделать.
В нишу в зоне кухни мы поставили приточную установку, и с помощью кухонных пеналов визуально выровняли стену. Гостевой санузел увеличили на

Этот яркий и функциональный интерьер мы реализовали в новом современном ЖК «Рихард» в Москве для молодой активной семьи с сыном-школьником. Заказчики были готовы к цвету, рисункам и орнаментам, мы воплотили их пожелания.

Кухня-гостиная в двухкомнатной квартире в ярких оттенках
Кухня-гостиная в двухкомнатной квартире в ярких оттенках

Привет! Меня зовут Карен Карапетян, я — архитектор и интерьерный дизайнер. Мы в компании Alexander Tischler проектируем и реализуем интерьеры, а также проектируем и производим корпусную мебель.

Сначала мы сформировали удобное жилое пространство: увеличили гостевую ванную комнату и выделили гардеробную при мастер-спальне, а потом наполнили квартиру яркими блоками цвета.

От застройщика нам достался невысокий проем, ведущий в кухню-гостиную, в несущей стене, ниша в зоне кухни, тесный гостевой санузел и узкая вытянутая спальня. Решить вопрос с проемом в несущей стене было достаточно проблематично, так как с ним ничего нельзя сделать.

В нишу в зоне кухни мы поставили приточную установку, и с помощью кухонных пеналов визуально выровняли стену. Гостевой санузел увеличили на 2,3 квадратных метра за счет коридора.

Также мы поработали с пространством спальни: увеличили ее за счет детской и выделили проходную гардеробную.

Мы были рады поработать над непривычной задачей — наполнить интерьер цветом. В основе отделки — белый, а каждую комнату и даже ванные мы наполнили своими сочетаниями цвета и фактур. При выборе цветов для мебели, отделки и декора мы использовали базовые: синий, красный и зеленый и подобрали их насыщенные оттенки. С помощью ровных линий и ярких объемов мы сделали пространства архитектурнее.

Кухонный гарнитур состоит из трех блоков: темно-синие нижние модули, которые визуально оторваны от пола благодаря белому цоколю, верхние навесные шкафы, разбитые на квадраты и прямоугольники, и монолитные пеналы со встроенной техникой.

Прямой кухонный гарнитур со встроенной техникой
Прямой кухонный гарнитур со встроенной техникой

Добавляет геометричности кухне-гостиной и потолок, мы сделали его многоуровневым. За объемом над телевизором прячется воздуховод приточной вентиляции, а за объемом над кухней — решетка притока воздуха и воздуховод, ведущий в детскую комнату и спальню родителей. Опускать весь потолок на один уровень мы не хотели, это значительно повлияло бы на ощущение от пространства, поэтому мы выделили еще один объем потолка в центре комнаты и хаотично расположили на нем светильники.

Белые кухонные пеналы с холодильником
Белые кухонные пеналы с холодильником

Нишу в зоне кухни, которая нам досталась от застройщика, мы использовали максимально полезно: расположили в ней приточную установку и шумоглушитель, а также звукоизолировали все оборудование, чтобы шум от работы установки не распространялся по воздуховодам и не был слышен в комнате. Доступ к оборудованию — через люк в задней стенке центрального пенала. Благодаря такому решению мы выровняли геометрию комнаты и не потеряли полезную площадь.

Стеновые панели и подвесная ТВ-тумба в гостиной
Стеновые панели и подвесная ТВ-тумба в гостиной

Еще один блок в этой комнате — стеновые панели, отделанные шпоном ясеня, они визуально отделяют кухню от зоны отдыха. Зону гостиной мы дополнили простой по форме мебелью: гладкой подвесной тв-тумбой и ярко-красным журнальным столиком.

Оформление стен в кухне-гостиной
Оформление стен в кухне-гостиной

Для обеденной зоны подобрали синий стол с лаконичными ножками. Он раскладывается, чтобы хозяева смогли разместить всех близких и родных. Для стены за столом нашли необычное фактурное решение: это рельефные гипсовые панели, которые своей хаотичностью добавляют интерьеру легкость. Над столом мы повесили светильники со стеклянными плафонами, при выключенном свете они отражают окружающее пространство, а при включенном — мягко пропускают свет.

Оформление невысокого проёма в несущей стене
Оформление невысокого проёма в несущей стене

Работа со входом в кухню-гостиную стала для нас сложной задачей. Хозяева очень расстраивались, что этот проем находится в несущей стене, и убрать верхнюю часть и довести его до потолка не получится. Мы нашли необычное решение: под самым потолком мы смонтировали карниз, на который повесили штору в цвет мебели, она вытягивает пространство вверх, а также при необходимости отделит кухню-гостиную от остальной квартиры.

Шкаф для одежды в коридоре
Шкаф для одежды в коридоре

После нашей перепланировки в квартире остался коридор, который ведет в спальни и гостевую ванную. Чтобы интерьер не разрывался темной зоной коридора на отдельные части и чтобы у хозяев был дневной свет даже здесь, детскую мы отделили дверью со стеклянным полотном. Приватность сына хозяев сохраняется за счет рифления: сквозь дверь не видно, чем ребенок занят в своей комнате.

Дизайн интерьера детской комнаты для мальчика
Дизайн интерьера детской комнаты для мальчика

Для отделки стен в детской мы использовали два вида обоев: с акварельным градиентом и с будто нарисованными от руки линиями. Эти обои мы приклеили без единого шва, специально нашли модели, которые изготавливаются большими полотнами.

Подоконник мы сделали из кварцевого камня с небольшими черными вкраплениями. У окна поставили рабочий стол, а на стене рядом повесили бра, луч света которого можно направлять.

Для одежды и игрушек хозяина этой детской мы спроектировали и изготовили большой шкаф до потолка. Благодаря необычно расположенным черным ручкам он отлично вписывается в интерьер.

Мы немного расширили спальню родителей за счет детской и сделали гардеробную, через которую можно пройти в ванную. Здесь есть небольшой стеллаж для сумок с подсветкой, шкафы с полками, ящики, открытые рейлы и зеркало до потолка.

Эту гардеробную мы тоже сделали «блоками»: бежевые объемы сочетали с зелеными и бордовыми. Зеленый блок — это хозяйственный шкаф, в нем будут храниться гладильная доска, утюг, и другие бытовые принадлежности. Также внутри шкафа мы предусмотрели розетки.

Дизайн яркой гардеробной в спальне
Дизайн яркой гардеробной в спальне

Для ванной комнаты хозяев подобрали сантехнику лососевого оттенка и наклеили два вида мелкой плитки: белую гладкую и рельефную матовую.

В спальне мы еще смелее сочетали контрастные цвета: на фоне хвойной стены мы поставили кровать с бордовым изголовьем.

Мастер-спальня в двухкомнатной квартире
Мастер-спальня в двухкомнатной квартире

По бокам от кровати повесили светильники из красного матового стекла, когда они включены, свет мягким градиентом заполняет весь плафон.

Хозяева решили отказаться от телевизора в спальне, поэтому над кроватью мы повесили проектор, который транслирует изображение на ровную белую стену напротив.

Двусторонний шкаф в спальне
Двусторонний шкаф в спальне

Со стороны спальни шкаф из гардеробной функционален: левая его часть — это стеллаж с подсветкой, которая включается от взмаха руки, а правее под потолком — модуль для техники, которую можно подключить к проектору, например, для ТВ-приставки. Также прямо в антресольной части шкафа мы сделали решетку забора воздуха. Очищенный и охлажденный воздух подается через решетку над входом в спальню.

Гостевая ванная комната
Гостевая ванная комната

Самые смелые сочетания мы подобрали для гостевой ванной комнаты. Здесь мы используем разноцветную плитку ручной работы, насыщенно-бордовую мебель и такого же оттенка краску для стен.

Яркая плитка для отделки ванной комнаты
Яркая плитка для отделки ванной комнаты

Раковину сделали встроенной, а широкое зеркало заключили в тонкую бордовую раму, подобрали забавный светильник, который поддерживает игру рисунка на плитке.

Для стиральной и сушильной машин поставили пенал до потолка. Сбоку у него есть решетка для притока воздуха. А наверху — диффузор вытяжной вентиляции.

Подвесная консоль в прихожей
Подвесная консоль в прихожей

В прихожей мы разместили подвесную консоль такого же цвета, как мебель на кухне. А на рельефной плитке — крючки для верхней одежды. По секрету скажем, они задумывались производителем как крючки для полотенец в ванной, но они отлично вписались в дизайн нашей прихожей. С другой стороны от входной двери от пола до потолка мы разместили зеркало. Шкаф для верхней одежды мы расположили дальше по коридору, взяв немного места у детской комнаты.

Если вы тоже хотите не беспокоиться о ремонте и реализовать интерьер, который будет полностью отвечать вашим пожеланиям, оставляйте заявку через простого бота в моем Телеграме. Мы рассчитаем стоимость вашего ремонта и расскажем, как сэкономить до 2 млн рублей. Кликайте сюда, увидите форму для заявки сверху

Вы также можете оставить заявку на нашем сайте

Другие наши интерьеры:

А это видеообзор яркой семейной квартиры 👇