Добавить в корзинуПозвонить
Найти в Дзене
INMYROOM

Семейная трешка 60 м² со множеством красивых решений

Светлое дерево, фактурная плитка, синие и зеленые акцентные детали в интерьере Город: Минск
Метраж: 60,4 кв. м
Комнаты: 3
Санузлы: 2
Высота потолков: 2,7 м
Дизайнер: Алена Жаворонкова
Фотограф: Юлия Бараускас
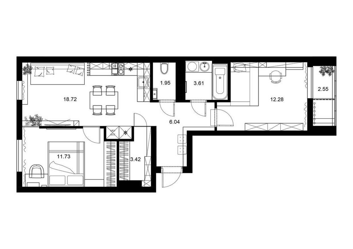
Стилист: Мария Семенова Дизайнер Алена Жаворонкова оформила трехкомнатную квартиру для семьи с пятилетним сыном. Ее вдохновила история создания семьи, где было много про лето. Это и стало отправной точкой в формировании цветовой и текстурной палитры и создании теплой домашней обстановки — светлый тон стен, много дерева и цветовые пятна в синих и зеленых оттенках. Планировка Первоначально в планах от застройщика пространство квартиры имело другое функциональное зонирование. Однако в процессе работы над проектом дизайнер изменила его. Жилая комната стала кухней с гостиной. Также в планировочном решении от застройщика не было предусмотрено расположение шкафа в прихожей. Поэтому гардеробную было решено спрятать в части кухни, среди колонн с холодильником и техникой. Практически в
Оглавление

Светлое дерево, фактурная плитка, синие и зеленые акцентные детали в интерьере

Город: Минск
Метраж: 60,4 кв. м
Комнаты: 3
Санузлы: 2
Высота потолков: 2,7 м
Дизайнер: Алена Жаворонкова
Фотограф: Юлия Бараускас
Стилист: Мария Семенова

Дизайнер Алена Жаворонкова оформила трехкомнатную квартиру для семьи с пятилетним сыном. Ее вдохновила история создания семьи, где было много про лето. Это и стало отправной точкой в формировании цветовой и текстурной палитры и создании теплой домашней обстановки — светлый тон стен, много дерева и цветовые пятна в синих и зеленых оттенках.

Планировка

Первоначально в планах от застройщика пространство квартиры имело другое функциональное зонирование. Однако в процессе работы над проектом дизайнер изменила его. Жилая комната стала кухней с гостиной. Также в планировочном решении от застройщика не было предусмотрено расположение шкафа в прихожей. Поэтому гардеробную было решено спрятать в части кухни, среди колонн с холодильником и техникой.

Практически все стены в квартире окрашены в светло-серый цвет, близкий к белому. В прихожей, гостиной и спальне использованы шпонированные панели. Они дополняют светлые оттенки, разделяя и совмещая функциональные зоны, а также делая их более уютными.

Кухня

Зона кухни разделена на два функциональных пространства. В одном располагается кухонный гарнитур, изготовленный на заказ. Здесь есть рабочая столешница, шкафы для хранения, мокрая зона. Напротив — колонны со встроенной бытовой техникой и холодильником.

 📷
📷

Кухонный фартук выполнен из плитки WOW Fez, которая имеет аутентичный характер за счет необработанных краев. Она смотрится эффектно, задает ритм и обеспечивает красивую игру цвета.

 📷
📷

От гостиной кухню отделили небольшим количеством реек. Одной из интересных задач перепланировки было размещение гардеробной, т. к. в исходном варианте от застройщика габариты прихожей не предполагали расположение шкафа. Поэтому вход в гардеробную сместили в мебельную композицию колонны с холодильником и техникой.

 📷
📷
 📷
📷

Гостиная

Высокое узкое окно в гостиной обыграли деревянными панелями с текстурой дерева. Это позволило впустить в комнату больше света. Декоративный прием поддержали деревянными элементами и в других помещениях.

 📷
📷
 📷
📷

Контрастным цветом и фактурой выступает керамическая плитка c глубоким и неоднородным зеленым цветом. Ею оформили стену за стеллажом в зоне ТВ. Оттенок плитки повторяется в нижних кухонных фасадах, работая на визуальное объединение пространств.

 📷
📷

Стеклянную дверь в спальню дополнили симметричной стеклянной перегородкой. Она позволяет естественному свету беспрепятственно проникать в менее освещенные части квартиры, делая пространство более легким и воздушным.

 📷
📷

Спальня

В спальне прослеживается та же идея светлого пространства с летней атмосферой и натуральными материалами. Изголовье кровати сделано из шпонированных реек. Напротив — масляная живопись, выполненная под заказ. Спальня взаимодействует с общим пространством, однако благодаря рельефу стекла сохраняет свою самобытность.

 📷
📷
 📷
📷

Все системы хранения выполнены на заказ, и это помогло сделать планировку более функциональной. Большой шкаф с двух сторон дополнили деревянными панелями, поддержав общее стилевое решение. Кроме закрытых систем хранения есть и открытые, в спальне это стеллажи из металла для книг и декоративных предметов.

 📷
📷
 📷
📷
 📷
📷

Детская

В комнате сына объединились разные оттенки зеленого в элементах декора и на фреске с силуэтом Халка — любимого героя хозяина комнаты. Тут организовано большое количество мест хранения: вместительный шкаф, секции в подиуме спального места, полки в зоне рабочего стола.

 📷
📷
 📷
📷

В рабочей зоне сделан участок из настенной пробки Corkart. На него можно фиксировать различные заметки и рисунки, а также это «теплое» покрытие для сидящего рядом.

 📷
📷

Балкон

Из детской есть выход на лоджию, которая является продолжением комнаты и тоже имеет подиумы с системой хранения. На них можно расположиться родителям и ребенку, например, для совместного чтения. «Теплое» покрытие настенной пробкой предусмотрели для большего комфорта сидящих.

 📷
📷

Прихожая

Входную зону не хотелось отделять от всей квартиры, поэтому в ней такая же светлая краска, то же напольное покрытие и мебельные панели, которые переходят в гостиную. На панелях расположились декоративные крючки, рядом — зеркало в пол в черной графичной раме, которая перекликается с черными акцентными элементами в других комнатах.

 📷
📷
 📷
📷

Санузлы

В санузле и ванной использовалась плитка WOW коллекции Gradient в сочетании с крупноформатным керамогранитом. За счет геометричных линий ванна имеет супрематический характер, который смягчается натуральными текстурами дерева, лозы и камня.

 📷
📷
 📷
📷

Санузел выполнен в более спокойных, пастельных тонах.

 📷
📷

Бренды, представленные в проекте

Кухня-гостиная

Отделка: стены, краска, Tikkurila, плитка на фартуке, WOW
Пол: напольное покрытие, кварц-винил, Berry Alloc
Мебель: диван сделан под заказ по эскизам дизайнера

Санузлы

Отделка: стены, плитка, WOW, Imola Ceramica
Пол: напольное покрытие, керамогранит, Imola Ceramica