Найти в Дзене

Планировка квартиры в таунхаусе. Собственный родительский этаж!

Продолжу про разработки типовых квартир в таунхаусах от застройщика в Воронеже. Первую часть можно прочитать здесь https://dzen.ru/a/ZVSjTBwBrwu8SxHD?share_to=link
Вторая квартира площадью 213,16 квадратных метров, 3 этажа (чуть меньше 70 квм каждый).
Этот дом мы готовим для большой семьи, делали соответствующие планировки. А шаги были такие:
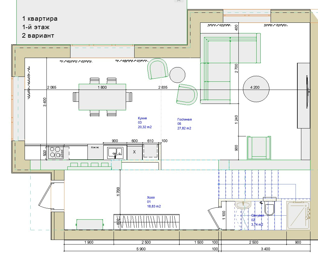
По первому этажу:
1. В холле под лестницей организовали санузел, вместительный шкаф для одежды в прихожей. На кухне остров - мечта любой хозяйки - на него вынесли варочную панель, от этого общая длина гарнитура не большая. Мягкая зона в широкой части первого этажа.
➕ Все зоны компактные, разместились с удобными расстояиями между друг другом.
➖ готовочная поверхность разбита на две части, что может быть не удобным (хотя интересно и красиво)). В холле много свободного неиспользуемого места.
2. Убрали остров на кухне.
➕ В столовой зоне стало значительно свободнее, при этом готовочная поверхность в одну линию без перерывов.
➖ В холле по прежнему м

Продолжу про разработки типовых квартир в таунхаусах от застройщика в Воронеже. Первую часть можно прочитать здесь https://dzen.ru/a/ZVSjTBwBrwu8SxHD?share_to=link

Вторая квартира площадью 213,16 квадратных метров, 3 этажа (чуть меньше 70 квм каждый).

Этот дом мы готовим для большой семьи, делали соответствующие планировки. А шаги были такие:

По первому этажу:
1. В холле под лестницей организовали санузел, вместительный шкаф для одежды в прихожей. На кухне остров - мечта любой хозяйки - на него вынесли варочную панель, от этого общая длина гарнитура не большая. Мягкая зона в широкой части первого этажа.
➕ Все зоны компактные, разместились с удобными расстояиями между друг другом.
➖ готовочная поверхность разбита на две части, что может быть не удобным (хотя интересно и красиво)). В холле много свободного неиспользуемого места.


2. Убрали остров на кухне.
➕ В столовой зоне стало значительно свободнее, при этом готовочная поверхность в одну линию без перерывов.
➖ В холле по прежнему много свободного неиспользуемого места.

-2



3. Добавили на кухню кладовую! Чтобы добавить место для хранения кухонной утвари и спрятать в кладовую грязные процессы.
➕ Добавили места хранения на кухне. Лучше отделили гостиную от кухни, в мягкой зоне появилось больше уединенности для отдыха.
➖ В холле по прежнему много свободного неиспользуемого места.

-3



4. Вынесли гостевой санузел из-под лестницы в коридор.
➕ Под лестницей появился очень вместительный шкаф на первый этаж. Изолировали входную зону от чистого холла.

-4



Остановились на варианте 4)

По второму этажу все было гораздо интереснее) Из обычного стандартного плана мы в итоге получили большой мастер-блок (не забываем, что у нас еще есть 3-й этаж). Следите за руками:

1. Большая спальня для родителей с собственной гардеробной, большая детская комната и санузел с собственным окном.
➕ все комнаты большие, просторные, в детскую можно поселить 2-х детей.
➖ Общий санузел не добавляет комфорта родителям. Кабинет здесь предполагается на 3-м этаже, что не очень удобно на практике (удален от спальни, возрасты перемешаны по этажам)

-5



2. Кабинет перенесли на 2-й этаж, здесь же оставили небольшую детскую комнату.
➕ Все взролые процессы (спальня + гардеробная + кабинет) на одном этаже.
➖ Общий санузел с ребенком, что не очень комфортно, да и сам санузел остался без окна. Комнаты в целом небольшого размера, относительно площади дома.

-6



3. Здесь уже появился полноценный мастер-блок: спальня + гардеробная + свой санузел – это очень комфортная планировка. Большая детская на 2-х детей, просторная ванная комната с окном.
➕ Мастер-блок! это всегда плюс, каких бы размеров он не был) И свое окно в санузле всегда добавляет этому помещению статус комнаты, пользоваться ей гораздо приятнее.
➖ В холле много пустого свободного пространства, при том, что в комнатах все расстояния почти по минимуму.

-7



4. Решили окончательно переселить детей на 3-й этаж))) А 2-й сделать полноценным мастер-блоком. Весь этаж только для родителей! Просторные: спальня, ванная комната с собственным окном, гардеробная, кабинет.
➕ Очень просторные вместительные комнаты.
➖ Проход в кабинет через личную спальню, а что делать, если придут "посетители"?..

-8



5. Поменяли местами кабинет и ванную комнату, чтобы посетители не проходили через личную спальню.
➕ Очень просторные вместительные комнаты.
➖ Кабинет маленький в сравнении с вспомогательными гардероной и ванной))

-9



6. В итоге разместиили ванную и гардеробную комнаты на изначальных местах, и выделили очень большой кабинет (который все-таки легко может стать детской комнатой). Вынесли в холл хозяйственный шкаф, при таких размерах в него войддет все: стиральная машина, сушильный шкаф, пылесос, швабры и гладильная доска)
➕ Весь этаж – это один мастер-блок для родителей. Посетители не побеспокоят никого в личной спальне.

-10



Остановились на этом варианте)

И 3-й этаж. Он мансардный, с уклонами, есть место, где жилую площадь из-за скосов крыши делать бессмысленно, мы оставили там место для хранения вещей.

1. Разместили на 3-м этаже две болших детских комнаты (или одна детская, вторая - гостевая). И отдельный санузел с большой душевой кабиной.

-11



2. При размещении дестких на 2-м этаже, на 3-м оставляли только рабочий кабинет и комнату отдыха (проектор, стол для настольных игр, большая мягкая зона). Также размещали здесь дополнительный санузел, предназначенный больше для детей.

-12



Остановились на том, что здесь все-таки поселили детей)

Вот так снова поиграв в пятнашки и продумывая портрет и сценарий жизни предполагаемого покупателя мы пришли к очень интересному решению. Я бы на месте родителей большой семьи, не задумываясь купила себе дом, в котором весь этаж только мой 😅

А вам какой вариант плана нравится больше?

И заказать хорошую умную планировку или архитектурный проект дома можно по телефону +79246577599 в любой мессенджер.