Добавить в корзинуПозвонить
Найти в Дзене
INMYROOM

Евродвушка 42 м² с летней атмосферой в самом центре Сибири

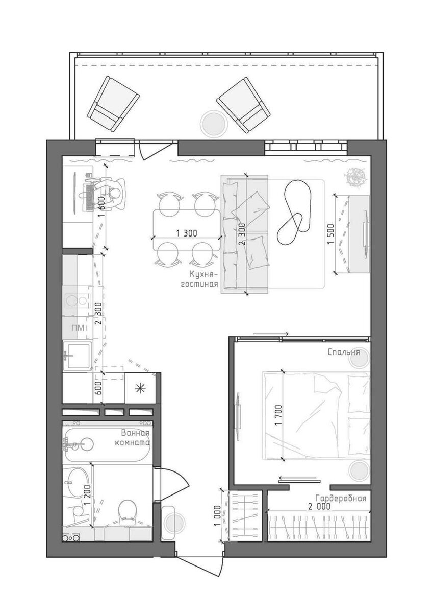
Вкратце Хозяйка квартиры — девушка-предприниматель, работает удаленно. Она намеренно выбрала жилье в удалении от городской суеты, дом находится в сосновом лесу. Заказчица любит готовить и принимать гостей, поэтому дизайнер Алиса Гринёва выделила просторную обеденную зону с возможностью трансформации до восьми посадочных мест, а также спроектировала полноразмерную кухню с большим количеством мест хранения. Подробности Приоритет в планировке отдали открытому пространству, в нем три основных зоны: зона приготовления и приема пищи, мини-офис справа от кухни, мягкая зона отдыха с ТВ. В спальне решили отказаться от громоздких шкафов и отделили гардеробную с зеркальной дверью на скрытых направляющих. «Особенностью стала деревянная перегородка, разграничивающая спальню и кухню-гостиную», — рассказывает дизайнер. Обратите внимание на видео: В отделке использовали обои под покраску, на полу — ламинат и керамогранит. Спальню украсили фреской с растительным мотивом. «Минимум по
Оглавление

Вкратце

Хозяйка квартиры — девушка-предприниматель, работает удаленно. Она намеренно выбрала жилье в удалении от городской суеты, дом находится в сосновом лесу. Заказчица любит готовить и принимать гостей, поэтому дизайнер Алиса Гринёва выделила просторную обеденную зону с возможностью трансформации до восьми посадочных мест, а также спроектировала полноразмерную кухню с большим количеством мест хранения.

 📷
📷

Подробности

Приоритет в планировке отдали открытому пространству, в нем три основных зоны: зона приготовления и приема пищи, мини-офис справа от кухни, мягкая зона отдыха с ТВ. В спальне решили отказаться от громоздких шкафов и отделили гардеробную с зеркальной дверью на скрытых направляющих. «Особенностью стала деревянная перегородка, разграничивающая спальню и кухню-гостиную», — рассказывает дизайнер.

 📷
📷

 📷
📷

Обратите внимание на видео:

 📷
📷

В отделке использовали обои под покраску, на полу — ламинат и керамогранит. Спальню украсили фреской с растительным мотивом.

 📷
📷

 📷
📷

 📷
📷

 📷
📷

 📷
📷

 📷
📷

«Минимум полочек и все шкафы до потолка — самое очевидное требование всех практичных и занятых заказчиков сегодня. Не исключением стал и этот проект. Современный темп жизни не подразумевает отдельного выходного дня на уборку, я считаю, это важно учитывать при планировании мебели», — говорит дизайнер.

 📷
📷

 📷
📷

«Жилой комплекс находится в лесу, нам хотелось отразить сочетания природных оттенков в интерьере. На создание атмосферы летнего цветущего сада вдохновила цветовая палитра полотен Клода Моне серии „Сады“. В Сибири большую часть года преобладают серые и приглушенные цвета, нам хотелось в этой квартире создать „вечное лето/весну“», — говорит автор проекта.

 📷
📷

 📷
📷

«В спальне мы выделили гардеробную за зеркальной дверью, это позволило сэкономить внушительную сумму, так как внутри использовали навесные металлические системы хранения. Плюсом также удобно в гардеробной хранить отпариватель и уборочный инвентарь», — рассказывает дизайнер.

 📷
📷

В прихожей предусмотрен парящий встроенный шкаф с нишей для обуви, которая позволяет убрать «с порога» обувь, при наличии теплого пола в холодный сезон обувь удобно высыхает естественным образом. Фасады сливаются со стенами и не перегружают входную зону.

 📷
📷

«Акцентами в санузле являются напольная плитка и крупное зеркало в форме полукруга. Зеркало напротив двери — всегда удачное решение. Также была выбрана укороченная модель чаши унитаза для возможности нарастить короб инсталляции и над ним в шкафчиках из МДФ разместить коллекторный узел и накопительный бойлер. Решили никак не прятать стиральную машину, а объединить столешницу из искусственного камня с раковиной. Удобным решением также является место хранения бутылочек в ванной, ниша вдоль самой ванны», — рассказывает Алиса Гринёва.

 📷
📷

 📷
📷

Бренды, представленные в проекте

Кухня-гостинаяОтделка: Respace, RaschНапольное покрытие: TarkettБытовая техника: BoschСмесители: IddisОсвещение: Maytoni

Ванная комнатаОтделка: плитка, Kerama MarazziНапольное покрытие: производитель, VallelungaСантехника: IddisОсвещение: Maytoni

ПрихожаяНапольное покрытие: керамогранит, VallelungaМебель: прикроватные тумбы, Barcelona DesignТекстиль и декор: Riviera Maison InteriorОсвещение: Maytoni