Найти в Дзене
INMYROOM

Оформляем малогабаритку стильно и удобно: 5 лайфхаков дизайнера

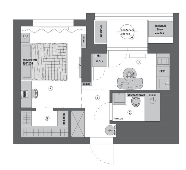
Дизайнер Евгения Акимова оформила маленькую студию 28 кв. м в новостройке для сдачи в аренду. Используя разные приемы в отделке и декоре, удалось создать уютное и стильное пространство для жизни. Автор проекта поделилась своими лайфхаками. Больше открытых пространств, меньше перегородок Если у вас небольшая квартира-студия, не надо пытаться изобразить из нее трешку. Это еще никогда не придавало уюта и комфорта. С этой квартирой вышло интересно: площадь без лоджии всего 25 кв. м. И обычно на такой площади есть всего одно окно. Но тут студия с «чудинкой»: она разделена несущей колонной почти по центру, в каждой из половин свое окно. Поэтому я шутливо говорю, что это студия, которая притворяется однушкой. Колонну я приукрасила открытыми нишами: с помощью гипсокартона возвели небольшую пристройку к несущей стене, и это полностью ее растворило. Раньше при входе в квартиру первым делом было видно именно этот толстый торец, теперь взгляд цепляется за красивый декор, что совершенно меняет де
Оглавление

Дизайнер Евгения Акимова оформила маленькую студию 28 кв. м в новостройке для сдачи в аренду. Используя разные приемы в отделке и декоре, удалось создать уютное и стильное пространство для жизни. Автор проекта поделилась своими лайфхаками.

Больше открытых пространств, меньше перегородок

Если у вас небольшая квартира-студия, не надо пытаться изобразить из нее трешку. Это еще никогда не придавало уюта и комфорта.

С этой квартирой вышло интересно: площадь без лоджии всего 25 кв. м. И обычно на такой площади есть всего одно окно. Но тут студия с «чудинкой»: она разделена несущей колонной почти по центру, в каждой из половин свое окно. Поэтому я шутливо говорю, что это студия, которая притворяется однушкой.

 📷
📷

Колонну я приукрасила открытыми нишами: с помощью гипсокартона возвели небольшую пристройку к несущей стене, и это полностью ее растворило. Раньше при входе в квартиру первым делом было видно именно этот толстый торец, теперь взгляд цепляется за красивый декор, что совершенно меняет дело.

Также в квартире минимальное количество дверей. Они есть только в санузел и гардеробную. Помним, что это небольшая студия и городить двери нам просто негде, они бы только съели пространство, а мы хотим его увеличить.

 📷
📷

Обратите внимание на видео:

Максимум мест для хранения

Организуйте много мест для хранения — и вы не прогадаете. Причем хранение должно быть закрытое. В идеале — гардеробная.

Когда я начала разрабатывать планировку этой студии, было два логичных решения: сделать в спальне просто шкаф вдоль стены — он занимает меньше места, но и стоит дороже. Или отделить площадь побольше и сделать гардеробную — она больше соответствует классу жилья и современным нормам проживания.

Мы выбрали именно второй вариант и ни разу не пожалели. В качестве наполнения использовали сетчатую систему хранения — это бюджетное решение, но при этом очень функциональное, так как полки, ящики крепятся к направляющим так, что их легко переставить, отрегулировать под себя.

 📷
📷

 📷
📷

Светлые оттенки — лучший выбор

Этот совет может звучать банально, но я часто вижу ремонты, где все стены выкрашены в какой-то насыщенный цвет, например, желтый или зеленый высокой плотности. Возьмите картинку, которая вам нравится, переведите ее в телефоне в черно-белые оттенки и сразу увидите, осталась ли она светлой, как вам казалось, или стала темных оттенков, как есть на самом деле.

Например, фото спальни — в цветном варианте, как мы ее видим, и в черно-белом. Отчетливо ясно, что «светлость» не поменялась. К этому и стоит стремиться в небольших помещениях.

 📷
📷

 📷
📷

Яркие нюансы для акцента

Цвет все еще остается самым недорогим способом выделить интерьер. Это квартира под сдачу, в ней было важно найти баланс между функциональными решениями, визуальной привлекательностью объекта и бюджетом реализации. Мне важно было придумать такую концепцию, которая выделится среди других предложений, но будут доступна по цене. Так и появились ягодные акценты в виде частичной покраски стен.

 📷
📷

Нестандартный подход

В этой квартире небольшим камнем преткновения стала «обеденная» зона. Я лично называю ее зоной кафе. Знаете ли вы, что по статистике в кафе/ресторанах всегда самыми первыми занимают столики с диванчиками, а не стульями? У арендатора этой квартиры теперь есть свой собственный. И он придает +100 к уюту. А еще на нем удобно поработать с ноутбуком и даже можно провести вебинар или прямой эфир, так как сзади продуман красивый фон.

На диванчике можно сидеть и вдвоем, а если пришли гости, то можно принести стул от рабочего стола и пуфик из прихожей. И очень комфортно разместиться вчетвером.

 📷
📷

 📷
📷