Найти в Дзене
INMYROOM

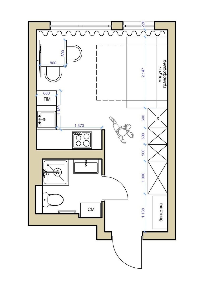
Крошечная студия 22 м² с мебелью-трансформером

Вкратце Перед дизайнером Еленой Мухачевой стояла задача преобразить ремонт от застройщика и превратить 22 кв. м в удобное пространство для жизни. Чтобы разместить все необходимое, использовали систему трансформер с диваном-кроватью, а корпусную мебель изготовили на заказ — так она вошла в интерьер идеально. Подробности Кухонный гарнитур проектировался и изготавливался индивидуально. Такой подход особенно актуален для маленьких помещений, чтобы задействовать каждый сантиметр пространства и сделать его максимально функциональным. «Я намеренно минимизировала количество верхних секций кухонной мебели, чтобы она визуально воспринималась легче. Хотелось уйти от классического восприятия кухонной зоны и сделать ее частью общего жилого пространства. Вы даже не сразу найдете здесь холодильник, потому что он расположен вдоль другой стены, является логическим продолжением зоны хранения и выделяется лишь цветом», — рассказывает Елена Мухачева. Дизайнер Елена Мухачева В оформлении интерьер
Оглавление

Вкратце

Перед дизайнером Еленой Мухачевой стояла задача преобразить ремонт от застройщика и превратить 22 кв. м в удобное пространство для жизни. Чтобы разместить все необходимое, использовали систему трансформер с диваном-кроватью, а корпусную мебель изготовили на заказ — так она вошла в интерьер идеально.

 📷
📷

Подробности

Кухонный гарнитур проектировался и изготавливался индивидуально. Такой подход особенно актуален для маленьких помещений, чтобы задействовать каждый сантиметр пространства и сделать его максимально функциональным. «Я намеренно минимизировала количество верхних секций кухонной мебели, чтобы она визуально воспринималась легче. Хотелось уйти от классического восприятия кухонной зоны и сделать ее частью общего жилого пространства. Вы даже не сразу найдете здесь холодильник, потому что он расположен вдоль другой стены, является логическим продолжением зоны хранения и выделяется лишь цветом», — рассказывает Елена Мухачева.

 📷
📷

 📷
📷

 📷
📷

 📷
📷

Дизайнер Елена Мухачева

В оформлении интерьера дизайнер придерживалась светлой цветовой палитры — так квартира выглядит просторнее. При этом есть несколько интересных дизайнерских приемов, которые придают обстановке индивидуальность. Например, люстра диаметром один метр. «Именно здесь в маленьком помещении она создает необходимый эффект — на уровне восприятия придает масштаб всему, что ее окружает, отвлекает от размеров комнаты и перетягивает внимание на себя.

Таким же отвлекающим приемом является потолочный карниз. Он выкрашен в контрастный цвет, поддерживающий нижние фасады кухни. Это не только декоративное решение, но и функциональное. Карниз скрывает убивающий весь дизайн стык натяжного потолка и стены. И белым он оставаться не мог, потому что однозначно отличался бы от белого на потолке или от белого на стене», — делится Елена Мухачева.

 📷
📷

 📷
📷

Самым важным и интересным предметом мебели в квартире является модуль-трансформер. В дневное время это шикарный акцентный диван, в ночное — полноценное спальное место с удобным матрасом, ночной подсветкой, полочками, розетками и беспроводными зарядками для телефона. И это чудесное превращение происходит очень быстро и легко.

 📷
📷

 📷
📷

 📷
📷

«Я считаю, что использование такого модуля в небольших квартирах-студиях — это единственное правильное решение, так как спать на диване неудобно, каким бы хорошим он ни был. А полноценная кровать займет почти все пространство. Поэтому имеет смысл вложить крупную сумму в собственный комфорт», — говорит автор проекта.

 📷
📷

 📷
📷

Зона хранения представлена большими вместительными шкафами, а также антресольными секциями. Здесь предусмотрено место не только для одежды, но и для пылесоса, швабры, бытовой химии.

 📷
📷

 📷
📷

В санузле изначально была неплохая база. Заменили раковину со смесителем, душевую стойку, крышку унитаза. Дизайнер решила внести черные элементы, чтобы придать четкости и графичности, и текстуру дерева, чтобы добавить теплоты и уюта. Над стиральной машиной расположился стеллаж, рядом электрический полотенцесушитель, полочки в душевой, подвесная тумба для раковины с выразительной текстурой дерева. Постер на стене идеально вписывается и придает большую выразительность интерьеру.

 📷
📷

 📷
📷

 📷
📷

 📷
📷

Бренды, представленные в проекте

КухняБытовая техника: духовой шкаф с функцией СВЧ, посудомоечная машина, Midea; встраиваемый холодильник, Candy; варочная панель, Hebermann; вытяжка, ExiteqМойка: GranFestОсвещение: Freya

СанузелМебель: стеллаж, 1MarKa; тумба, OnikaСантехника: раковина, KirovitСмесители: смеситель для раковины, Orange; душевая стойка, OneLife

ПрихожаяМебель: банкетка, ИКЕА