Найти в Дзене

Проект Утулик 182 м2 + терраса 17 м2

Двухэтажный дом из клееного бруса. Большая площадь дома позволит комфортно разместиться каждому члену семьи из 4-6 человек. В этом проекте интересная архитектура сочетается с грамотным зонированием внутреннего пространства.

Рассмотрим планировку.

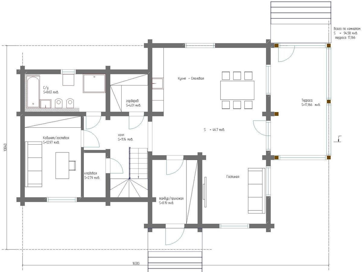
На первом этаже расположены:

  • Уютная гостиная для дружеских встреч и теплых семейных вечеров.
  • Кухня-столовая с выходом на остекленную террасу, увеличивающую кухонное пространство. На террасе можно расположить барбекю и зону для отдыха.
  • Кабинет для комфортной работы из дома, который при желании может стать спальней для старшего поколения, детской или гостевой комнатой.
  • Гардероб для удобного хранения верхней одежды.
  • Компактная кладовая.
  • Прихожая, холл и санузел.
-2

На втором этаже находятся:

  • Большая спальня с собственными санузлом, гардеробом и балконом для уединённого отдыха. Отдельным преимуществом комнаты является отсутствие общих стен с остальными.
  • Две уютные детские, в которых можно расположить гостевые комнаты, дополнительный кабинет, игровую или обустроить мини-спортзал.
  • Санузел.
-3

В доме просторно и светло благодаря большому количеству окон. За счет остекления терраса более практична и позволит наслаждаться отдыхом наедине с природой в любую погоду. Она добавляет изюминку проекту и станет настоящим украшением внешнего облика дома.

-4

Такой дом мы готовы построить за 5 месяцев, включая изготовление домокомплекта.

Понравился дом? Заполните форму по ссылке, мы свяжемся с Вами и вышлем презентацию проекта.