Найти в Дзене

Сколько в 2023 году стоит большой деревянный дом с антресолью и вторым светом? Разбор стоимости

Проект «Бавария» — просторный загородный дом из клеёного бруса площадью 148 м² для счастливой жизни небольшой семьи из 3-4 человек.
Все необходимые помещения при нём: в «сердце» первого этажа — огромная кухня-гостиная со вторым светом, а также две жилых комнаты, санузел и открытая терраса с выходом в сад. На втором этаже проектом задумана антресоль в 52 квадрата, которую можно использовать как игровую зону, рабочий кабинет или домашний кинотеатр. Сколько будет стоить этот дом в «тёплом контуре» с коммуникациями? Ответ — в нашем новом разборе в рубрике #анатомия_стройки. Цена на «тёплый контур» (с коммуникациями) – 7 200 000 рублей Этапы стройки по времени:
1 этап – фундаментные работы: 1 месяц 2 этап – возведение стенового комплекта: 1,5 месяца 3 этап – обустройство тёплой кровли, установка обсадных коробок, окон, входной двери, подшивка лобовой доски планкеном, устройство межэтажного перекрытия, наличников окон снаружи дома и водосточной системы, разводка сетей: 1,5 месяца Итого: 4
Оглавление

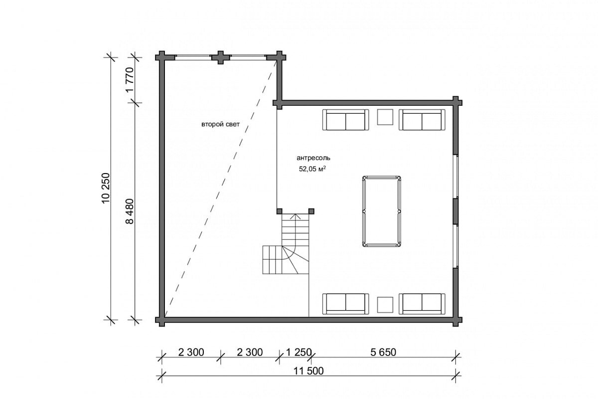
Проект «Бавария» — просторный загородный дом из клеёного бруса площадью 148 м² для счастливой жизни небольшой семьи из 3-4 человек.

Все необходимые помещения при нём: в «сердце» первого этажа — огромная кухня-гостиная со вторым светом, а также две жилых комнаты, санузел и открытая терраса с выходом в сад. На втором этаже проектом задумана антресоль в 52 квадрата, которую можно использовать как игровую зону, рабочий кабинет или домашний кинотеатр.

Сколько будет стоить этот дом в «тёплом контуре» с коммуникациями? Ответ — в нашем новом разборе в рубрике #анатомия_стройки.

Цена на «тёплый контур» (с коммуникациями) – 7 200 000 рублей

Этапы стройки по времени:

1 этап – фундаментные работы: 1 месяц

2 этап – возведение стенового комплекта: 1,5 месяца

3 этап – обустройство тёплой кровли, установка обсадных коробок, окон, входной двери, подшивка лобовой доски планкеном, устройство межэтажного перекрытия, наличников окон снаружи дома и водосточной системы, разводка сетей: 1,5 месяца

Итого: 4 месяца на строительство дома в «тёплом контуре» с сетями

-3

Поэтапная оплата:

1 этап – 40% от стоимости дома: оплата пиломатериала – 2 880 000 рублей

2 этап 30% от стоимости дома: оплата материалов для фундамента + его изготовление – 2 160 000 рублей

3 этап – 30% от стоимости дома: оплата материалов для кровли + работы по установке и многое другое – 2 160 000 рублей

А если в кредит? Дом можно купить в семейную ипотеку, примерный расчёт будет выглядеть так:

  • Первоначальный взнос 15% – 1 080 000 рублей
  • Ипотечные средства – 6 120 000 рублей
  • Срок – 30 лет
  • Ставка – 7,3 %
  • Ежемесячный платеж – 41 956,94 рублей

Что думаете? Пишите своё мнение в комментарии, обсудим.