Добавить в корзинуПозвонить
Найти в Дзене

Изысканный таунхаус на 2 семьи

Проект таунхауса «Витория» впитал в себя всю изысканность классического домостроения. Эркеры и декоративные фронтоны над окнами, колонны и кованные ограждения крыльца и балконов, сложность конфигурации крыши в совокупности создают эстетику образа и подчеркивают безупречность вкуса владельцев дома. Для наружной отделки был выбран нежный кремовый оттенок, который будет особенно сиять в солнечную погоду, а в пасмурную – напоминать о тепле солнечных лучей. Внутреннее пространство также радует своей гармонией и продуманностью. Каждый член семьи сможет насладиться полноценным отдыхом в комфортной и уютной обстановке. Планировка Специалисты компании Stone Wood House всегда готовы построить этот дом специально для Вас на максимально выгодных условиях с гарантией 5 лет. Чтобы узнать стоимость проекта и строительства дома, а также более подробные его характеристики проходите по ссылке => проект «Витория». Оставляйте заявку или связывайтесь с нашими менеджерами ⭐ Больше проектов Вы можете увидеть

Проект таунхауса «Витория» впитал в себя всю изысканность классического домостроения. Эркеры и декоративные фронтоны над окнами, колонны и кованные ограждения крыльца и балконов, сложность конфигурации крыши в совокупности создают эстетику образа и подчеркивают безупречность вкуса владельцев дома. Для наружной отделки был выбран нежный кремовый оттенок, который будет особенно сиять в солнечную погоду, а в пасмурную – напоминать о тепле солнечных лучей. Внутреннее пространство также радует своей гармонией и продуманностью. Каждый член семьи сможет насладиться полноценным отдыхом в комфортной и уютной обстановке.

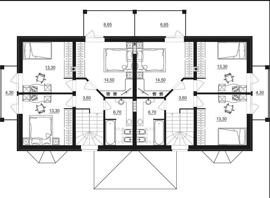
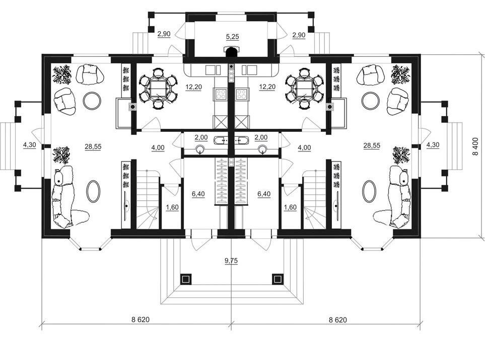
Планировка

  • Площадь дома - 217 кв.м.
  • Габариты - 17.2 x 8.4 м.

Специалисты компании Stone Wood House всегда готовы построить этот дом специально для Вас на максимально выгодных условиях с гарантией 5 лет.

Чтобы узнать стоимость проекта и строительства дома, а также более подробные его характеристики проходите по ссылке => проект «Витория». Оставляйте заявку или связывайтесь с нашими менеджерами

Больше проектов Вы можете увидеть на нашем сайте stone-wood-house.ru

Если среди просмотренных вариантов Вы так и не нашли подходящий проект дома, наши архитекторы готовы создать индивидуальный проект, предусматривающий все Ваши задумки и пожелания.

⭐ Мы спроектируем и построим «под ключ» дом Вашей мечты высокого качества!

☎ Позвоните нам для консультации: 8-965-199-61-04

#проектдома #проектирование #коттедж #строимдом #строительствоиремонт #ремонт #недвижимость #строительство #загороднаянедвижимость #проекты загородного дома #проект частный дом #загородные дома проекты #проектдома #двухэтажный дом #проектдвухэтажногодома #коттедж #архитектор #дизайн #загородныйдом