Добавить в корзинуПозвонить
Найти в Дзене
INMYROOM

Идеальный интерьер на стыке классики и стиля фьюжн

Вкратце Дизайнер Полина Глебова создала интерьер для заказчицы и ее сына 14 лет. Хозяйка этой просторной квартиры профессионально занимается конным спортом — это увлечение повлияло на выбор стиля, тканей и аксессуаров. Так появились кожаные ремни на пуфах, крючки для одежды в виде лошадей, «цветущий сад» на стенах спальни, жокеи на подушках. Основной задачей было создание «вкусного» классического интерьера с элегантной отделкой, ванной у окна и большим количеством мест для хранения. Подробности Изначально это был большой двухуровневый пентхаус, который разделили и узаконили два собственника. Заказчице принадлежит весь второй этаж с прихожей, кухней-гостиной, спальней, гостевой и ванной комнатами, лестницей на первый этаж и расположенной там комнатой сына с выходом на террасу и санузел. Остальное пространство первого этажа принадлежит другому человеку. Планировка получилась очень удачной. Есть общее пространство кухни-столовой-гостиной, приватный блок спальни с гардеробной. Дл
Оглавление

Вкратце

Дизайнер Полина Глебова создала интерьер для заказчицы и ее сына 14 лет. Хозяйка этой просторной квартиры профессионально занимается конным спортом — это увлечение повлияло на выбор стиля, тканей и аксессуаров. Так появились кожаные ремни на пуфах, крючки для одежды в виде лошадей, «цветущий сад» на стенах спальни, жокеи на подушках. Основной задачей было создание «вкусного» классического интерьера с элегантной отделкой, ванной у окна и большим количеством мест для хранения.

 📷
📷

Подробности

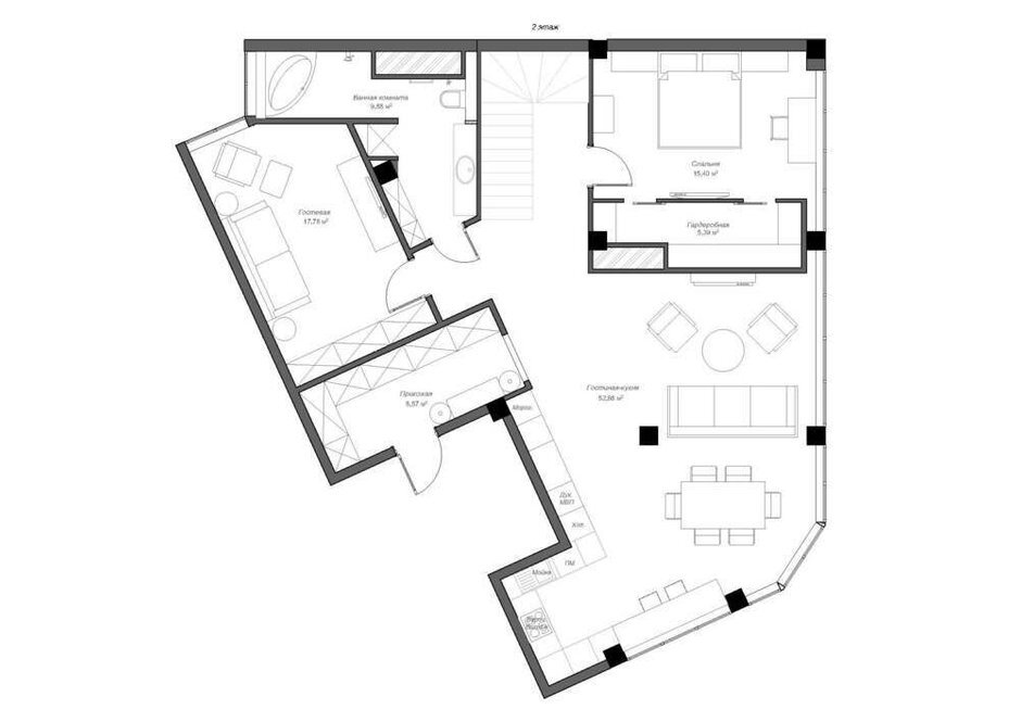
Изначально это был большой двухуровневый пентхаус, который разделили и узаконили два собственника. Заказчице принадлежит весь второй этаж с прихожей, кухней-гостиной, спальней, гостевой и ванной комнатами, лестницей на первый этаж и расположенной там комнатой сына с выходом на террасу и санузел. Остальное пространство первого этажа принадлежит другому человеку.

 📷
📷

 📷
📷

 📷
📷

 📷
📷

Планировка получилась очень удачной. Есть общее пространство кухни-столовой-гостиной, приватный блок спальни с гардеробной. Для сына-подростка обустроили собственную комнату с санузлом на отдельном этаже.

Кухонное наполнение довольно стандартное: варочная поверхность, вытяжка, мойка, посудомоечная машина расположены в П-образной части гарнитура и спрятаны от глаз гостей. Встраиваемый холодильник, морозилка, духовой шкаф и СВЧ вписаны в ансамбль шкафов, которые выстроены вдоль гостиной. Центр этой композиции — буфет для посуды. Кухня заказана в столярном производстве.

 📷
📷

Дизайнер предложила сделать кухонные антресоли со стеклянными вставками — в вечернее время они служат подсветкой.

 📷
📷

Во всех помещениях использованы карнизы и плинтусы из полиуретана. Стены покрашены и декорированы молдингами. Фартук и камин облицованы керамогранитом, на полу — паркетная доска.

 📷
📷

 📷
📷

«Хотелось больше индивидуальности и значимости хозяйки в этом проекте, поэтому я предложила разработать личную монограмму, которую разместили на стекле портала между прихожей и гостиной», — рассказывает дизайнер.

 📷
📷

 📷
📷

 📷
📷

 📷
📷

 📷
📷

Прихожая — покраска, зеркальное панно с фацетом тонированное, на полу — метлахская плитка, очень прочный и красивый материал.

 📷
📷

 📷
📷

Практически все системы хранения — это встраиваемые шкафы. Идея была в том, чтобы их не выделять, а сделать частью стен, поэтому фасады имитируют панели. В прихожей фасады сделаны до пола с небольшим зазором, двери обозначены ручками из кожи и латуни. В гостевой комнате тот же прием, но сами фасады выполнены из дубового шпона с зеркальными вставками.

 📷
📷

«Шкафы-тумбы по бокам от изголовья должны были быть не громоздкими, но вместительными, чтобы хранить парфюмерию и сумки хозяйки. Они выполнены в китайском стиле, с нишей для удобства использования, выдвижным ящиком и полками в верхнем отделении за фасадами. Золотые короны мы сделали из полиуретановых карнизов — это сэкономило бюджет», — рассказывает дизайнер.

 📷
📷

 📷
📷

 📷
📷

«Я пыталась использовать пространство по максимуму, учитывая геометрию помещения. Предусмотрены кондиционеры и рулонные шторы на электроприводе для защиты от жаркой погоды, датчики протечки, система теплых полов, доступы к коммуникациям через скрытые люки и двери», — говорит автор проекта.

В ванной использовали широкоформатный керамогранит и мозаику на торце ванны. На полу — имитация мозаики, но это тоже керамогранит. Латунная решетка установлена на подиум ванны и маскирует доступ к радиатору перед окном.

Основная задача в детской комнате — сделать выход на террасу, которая по уровню пола выше, чем комната, на 400 мм. «Я решила установить подиум вдоль стены в уровень с балконной дверью, где расположила спальное место 130×200 см, выдвижные секции для хранения, и визуально «оторвала» его от пола с помощью подсветки», — рассказывает дизайнер.

Больше фото тут:

Идеальный интерьер на стыке классики и стиля фьюжн