Найти в Дзене

Формула дизайна спальни, которая закроет все потребности

Дизайн интерьера современной уютной спальни: планировка, дизайн, мебель. Реальные фото Наши заказчики любят принимать гостей, их дети и внуки живут в другой стране и часто приезжают к ним. Они хотели интерьер в зеленых оттенках с деревянными текстурами. Мы сделали дизайн и ремонт этого интерьера, где реализовали все их идеи. Меня зовут Карен Карапетян, я — архитектор и интерьерный дизайнер. Мы в компании Alexander Tischler проектируем и реализуем интерьеры, а также проектируем и производим корпусную мебель. Планировка спальни Площадь спальни составляла 24,7 м², но мы её уменьшили, так как нужно было организовать отдельное помещение прачечной. Мы сделали хозяйственный блок за счет санузла и спальни. Теперь у хозяев есть место, где они могут решать все бытовые вопросы. Сейчас площадь спальни 21,9 м², в ней есть всё для комфортного пребывания. Компоновка спальни Эта спальня универсальная, она закрывает все потребности. Большая кровать, две прикроватные тумбы с беспроводной зарядкой, косме
Оглавление

Дизайн интерьера современной уютной спальни: планировка, дизайн, мебель. Реальные фото

Наши заказчики любят принимать гостей, их дети и внуки живут в другой стране и часто приезжают к ним. Они хотели интерьер в зеленых оттенках с деревянными текстурами. Мы сделали дизайн и ремонт этого интерьера, где реализовали все их идеи.

Меня зовут Карен Карапетян, я — архитектор и интерьерный дизайнер. Мы в компании Alexander Tischler проектируем и реализуем интерьеры, а также проектируем и производим корпусную мебель.

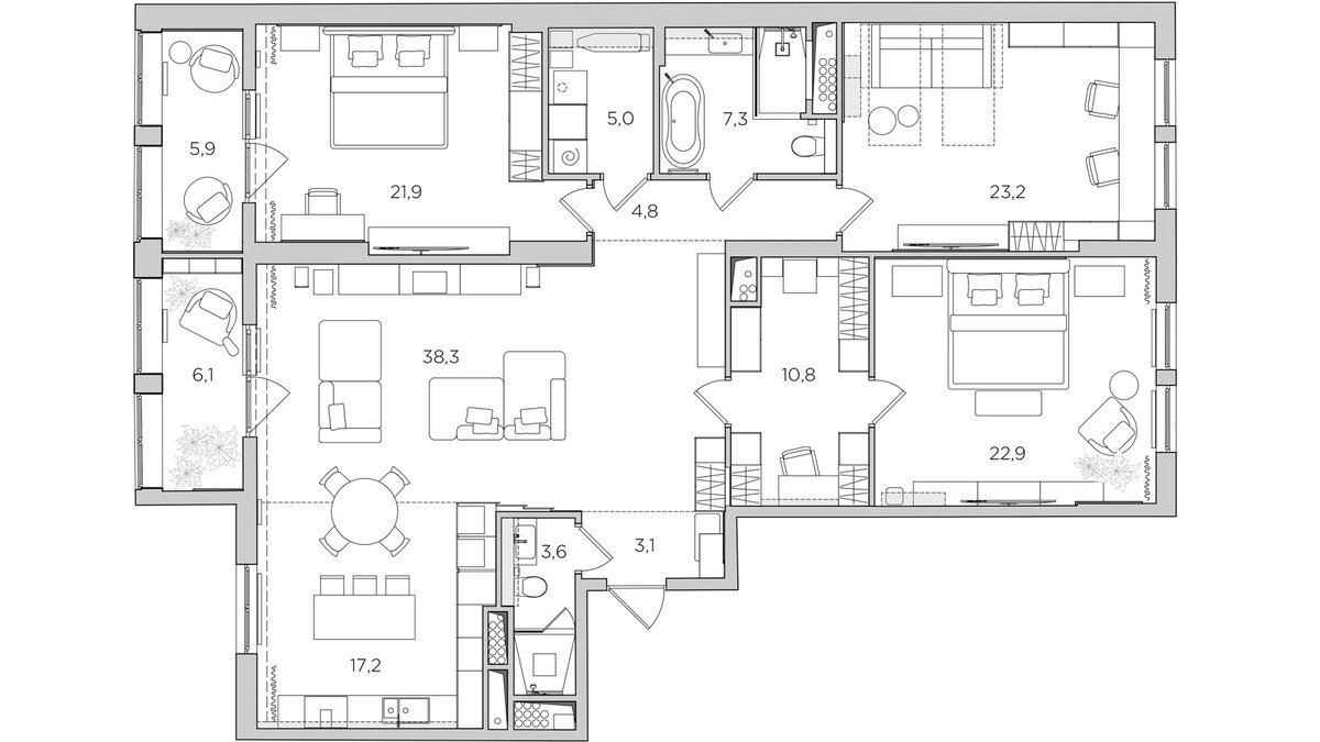
Планировка спальни

Площадь спальни составляла 24,7 м², но мы её уменьшили, так как нужно было организовать отдельное помещение прачечной. Мы сделали хозяйственный блок за счет санузла и спальни. Теперь у хозяев есть место, где они могут решать все бытовые вопросы. Сейчас площадь спальни 21,9 м², в ней есть всё для комфортного пребывания.

Компоновка спальни

Эта спальня универсальная, она закрывает все потребности. Большая кровать, две прикроватные тумбы с беспроводной зарядкой, косметический столик, телевизор, но самое главное — это большой шкаф для одежды со стеклянными фасадами. Посмотрев на нашу компоновку, вы можете изменить детали под себя и сделать свою идеальную спальню.

Гостевая спальня с лоджией
Гостевая спальня с лоджией

Мебель для спальни

Мы хотели сделать это помещение нарядным, поэтому фасады шкафа изготовили из тонированного стекла, а внутри смонтировали подсветку. В шкафу есть полки, штанги для развески длинной и короткой одежды, а также ящики для аксессуаров. Благодаря тонированному стеклу без подсветки содержимое шкафа почти не видно. Но с подсветкой шкаф приобретает объем, вместе с этим интерьер комнаты становится «сложнее» и фактурнее.

Шкаф со стеклянными фасадами
Шкаф со стеклянными фасадами

Он заменяет гардеробную не только благодаря вместительности, но и благодаря подсветке полок, которая делает шкаф эффектным элементом интерьера, он теперь не просто утилитарный предмет.

Большой шкаф для одежды в спальне
Большой шкаф для одежды в спальне

В зоне ТВ в этой спальне мы сделали подвесную полку-консоль и напольную тумбу для хранения постельного белья. Ближе к балкону мы расположили рабочее место и по совместительству столик для макияжа с большим зеркалом.

Косметический стол в спальне
Косметический стол в спальне

Дизайн современной спальни

Для отделки стен мы выбрали глубокий оттенок зеленого. За изголовьем кровати мы установили стеновые панели, сверху у них есть подсветка. К панелям крепятся подвесные прикроватные тумбы со встроенными беспроводными зарядками.

Подвесная прикроватная тумба в спальне
Подвесная прикроватная тумба в спальне

Приятный бонус этой спальни — утепленная лоджия. Благодаря организации хозблока, здесь мы сделали зону отдыха. Для отделки стен и оконных откосов на лоджии мы использовали такие же панели в шпоне дуба, как в остальной квартире. Эту зону гости будут использовать только для отдыха: здесь мы поставили два кресла Mononova и металлический журнальный столик Bonaldo.

Утепленная лоджия
Утепленная лоджия

Такая формула для спальни работает и в помещении меньшей площади. Вы можете изменить детали под себя. Вместо зеленого вы можете выбрать свой любимый цвет, картины заменить постерами или фото, шкаф сделать с любыми другими фасадами, косметический столик заменить на рабочий стол.

Для своей спальни хозяева выбрали комнату с двумя окнами, какой у нее интерьер и как в ней возникла гардеробная читайте в этой статье