Добавить в корзинуПозвонить
Найти в Дзене

Современная спальня с функциональной гардеробной: дизайн и планировка

Интерьер комфортной спальни для любителей музыки Этот интерьер мы спроектировали для взрослой пары, их дети и внуки живут в другой стране и любят приезжать в гости. Заказчики хотели создать теплый интерьер с деревянными текстурами и оттенками зеленого. Привет! Меня зовут Карен Карапетян, я — архитектор и интерьерный дизайнер. Мы в компании Alexander Tischler проектируем и реализуем интерьеры, а также проектируем и производим корпусную мебель. Планировка спальни и гардеробной Знакомство с нашими заказчиками началось с идеи — сделать гардеробную при спальне. Они увидели в одном из наших прошлых проектов гардеробную и уверенно сказали, что хотят такую же. От застройщика нам достался огромный коридор и комната 32,4 м². Мы сделали перепланировку, выделили проходную гардеробную 10,2 м² и комфортную спальню площадью 22,9 м². Современная спальня в спокойных оттенках Вся спальня выполнена в спокойных оттенках, но с активными текстурами. Так, стену за изголовьем мы оформили стеновыми панелями в
Оглавление

Интерьер комфортной спальни для любителей музыки

Этот интерьер мы спроектировали для взрослой пары, их дети и внуки живут в другой стране и любят приезжать в гости. Заказчики хотели создать теплый интерьер с деревянными текстурами и оттенками зеленого.

Привет! Меня зовут Карен Карапетян, я — архитектор и интерьерный дизайнер. Мы в компании Alexander Tischler проектируем и реализуем интерьеры, а также проектируем и производим корпусную мебель.

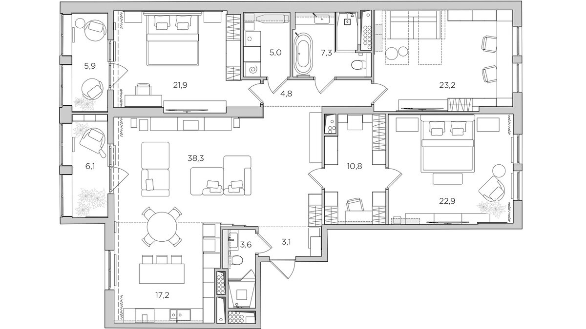
Планировка спальни и гардеробной

Знакомство с нашими заказчиками началось с идеи — сделать гардеробную при спальне. Они увидели в одном из наших прошлых проектов гардеробную и уверенно сказали, что хотят такую же. От застройщика нам достался огромный коридор и комната 32,4 м². Мы сделали перепланировку, выделили проходную гардеробную 10,2 м² и комфортную спальню площадью 22,9 м².

Современная спальня в спокойных оттенках

Вся спальня выполнена в спокойных оттенках, но с активными текстурами. Так, стену за изголовьем мы оформили стеновыми панелями в шпоне ясеня. А для отделки стены за телевизором выбрали керамогранит с каменной текстурой. Случайная разбивка плит и панелей добавляет интерьеру небрежности, облегчая брутальные материалы.

Мы установили аудиосистему с сабвуфером под телевизором. А справа и слева от кровати мы повесили колонки для объемного звучания. Еще одна фишка этой спальни — прикроватные тумбы сделаны с беспроводной зарядкой для телефона.

Гардеробная система с косметическим столиком

Гардеробная отделяет спальню от кухни-гостиной. Здесь есть открытые модули с полками и штангами, шкафы со стеклянными фасадами и подсветкой. Также в этой гардеробной мы разместили стайлер и подвесной косметический столик у большого зеркала.

Мы смонтировали подсветку практически на каждой полке: с таким освещением она становится похожей на гримерную прима-балерины. За зеркалом над столиком скрывается шкаф с неглубокими полками для коллекции парфюмов хозяйки. За нижним зеркалом мы сделали коллекторный узел отопления.

Посмотреть смету и фото интерьера можно на нашем сайте

Подробный видеообзор этого интерьера можно посмотреть по ссылке