Найти в Дзене
INMYROOM

Стильная двушка 58 м² вместо «бабушкиного» ремонта

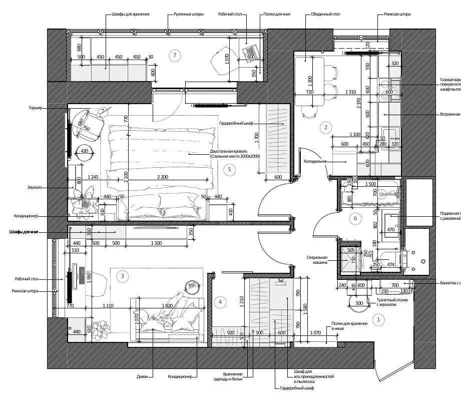
Вкратце Дизайнеры из студии Максимаджи полностью преобразили интерьер типовой двухкомнатной квартиры в доме серии Башня Вулыха 1970 года постройки. Заказчикам, молодой семейной паре, хотелось получить функциональный эргономичный интерьер и разместить все необходимое на небольшой площади. Подробности Квартира маленькой площади, а разместить хотелось много. В результате ремонта создали гардеробную в гостиной, объединенную со шкафом в прихожей — между ними только мебельная стенка шкафа. Такое решение позволило сэкономить площадь, которую бы забрала межкомнатная перегородка. В гостиной выделили рабочее место и дополнительное спальное место для гостей. Дополнительное рабочее место обустроили на лоджии. Единый пол в прихожей, кухне, санузлах позволил избежать большого количества стыков напольных покрытий на такой небольшой площади квартиры и тем самым убрать визуальный шум. «Особенность проекта — это контраст между ремонтом до и интерьером после. «Бабушкин» ремонт со сложными и не
Оглавление

Вкратце

Дизайнеры из студии Максимаджи полностью преобразили интерьер типовой двухкомнатной квартиры в доме серии Башня Вулыха 1970 года постройки. Заказчикам, молодой семейной паре, хотелось получить функциональный эргономичный интерьер и разместить все необходимое на небольшой площади.

 📷
📷

Подробности

Квартира маленькой площади, а разместить хотелось много. В результате ремонта создали гардеробную в гостиной, объединенную со шкафом в прихожей — между ними только мебельная стенка шкафа. Такое решение позволило сэкономить площадь, которую бы забрала межкомнатная перегородка. В гостиной выделили рабочее место и дополнительное спальное место для гостей. Дополнительное рабочее место обустроили на лоджии.

 📷
📷

 📷
📷

 📷
📷

 📷
📷

Единый пол в прихожей, кухне, санузлах позволил избежать большого количества стыков напольных покрытий на такой небольшой площади квартиры и тем самым убрать визуальный шум.

 📷
📷

«Особенность проекта — это контраст между ремонтом до и интерьером после. «Бабушкин» ремонт со сложными и неудобно расположенными коммуникациями (стояки отопления, газовые трубы) превратили в легкий современный минималистичный интерьер с голубыми и синими благородными успокаивающими оттенками», — говорят дизайнеры.

 📷
📷

 📷
📷

 📷
📷

 📷
📷

 📷
📷

Так как цветовая гамма достаточно прохладная, важно было создать уют с помощью тканей и фактур. Кровать и кресло в материале крупная рогожка, хлопковое постельное белье, много зелени — все вместе создает ту самую домашнюю атмосферу.

 📷
📷

В основе интерьера — нейтральная светлая гамма с яркими благородными голубыми и синими оттенками. Синий цвет успокаивает и остужает после трудового дня. В такой квартире свежо, прохладно и просторно.

 📷
📷

Санузел изначально был раздельным, его объединили — удалось разместить стиральную машину, места хранения и все необходимые хозяйственные вещи. Интерьер выполнен в спокойных нейтральных цветах с синими акцентами. Использован широкоформатный керамогранит на стенах и полу.

Шкаф в прихожей имеет двойную функцию: шкафа для верхней одежды и для хозяйственных принадлежностей, в нем хранzтся швабра, сушилка, пылесос.

Больше фото тут:

Стильная двушка 58 м² вместо «бабушкиного» ремонта