Найти в Дзене
INMYROOM

Маленькая студия 38 м² с богемной атмосферой в старом доме

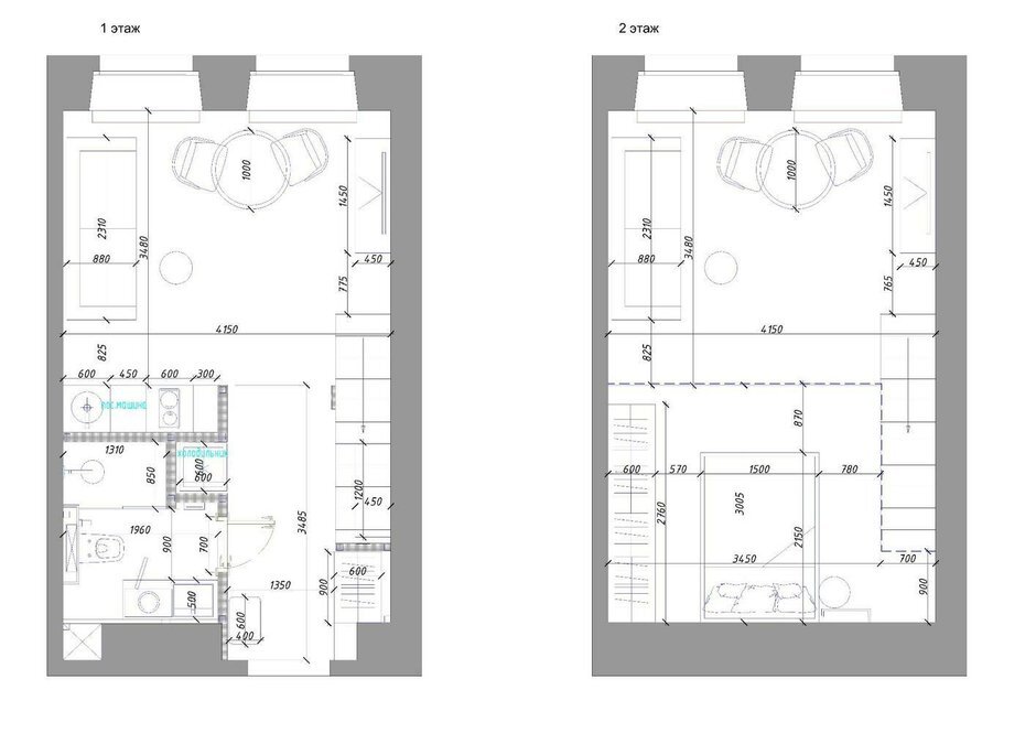
Вкратце Эти апартаменты дизайнер Ирина Лагода оформила под сдачу. Они находятся в старом доме на Петровке. Большая высота потолков позволила спроектировать второй этаж-антресоль, чтобы разместить полноценную спальню. Бюджет на ремонт был скромный, поэтому в интерьере недорогая отделка и наполнение. Подробности Изначальная площадь апартаментов — 27 кв. м. Чтобы построить второй этаж, сделали усиление перекрытия и спроектировали сварную конструкцию таким образом, чтобы стойки попали в перегородки. За счет антресоли увеличили площадь до 38 кв. м. В интерьере большое значение имеет сочетание материалов и предметов между собой, так можно сделать недорогие вещи визуально дороже. Для кухни спроектировали нишу четко по ширине и высоте шкафов — кажется, что данная позиция заказная, но это стандартные модели из Hoff. Техника встроенная — посудомоечная машина, духовой шкаф и варочная панель. Отдельностоящий холодильник находится в нише. В качестве напольного покрытия выбрали недорогой к
Оглавление

Вкратце

Эти апартаменты дизайнер Ирина Лагода оформила под сдачу. Они находятся в старом доме на Петровке. Большая высота потолков позволила спроектировать второй этаж-антресоль, чтобы разместить полноценную спальню. Бюджет на ремонт был скромный, поэтому в интерьере недорогая отделка и наполнение.

 📷
📷

Подробности

Изначальная площадь апартаментов — 27 кв. м. Чтобы построить второй этаж, сделали усиление перекрытия и спроектировали сварную конструкцию таким образом, чтобы стойки попали в перегородки. За счет антресоли увеличили площадь до 38 кв. м.

 📷
📷

В интерьере большое значение имеет сочетание материалов и предметов между собой, так можно сделать недорогие вещи визуально дороже. Для кухни спроектировали нишу четко по ширине и высоте шкафов — кажется, что данная позиция заказная, но это стандартные модели из Hoff. Техника встроенная — посудомоечная машина, духовой шкаф и варочная панель. Отдельностоящий холодильник находится в нише.

 📷
📷

 📷
📷

 📷
📷

В качестве напольного покрытия выбрали недорогой керамогранит Kerama Marazzi — его уложили в санузле и в жилой части студии. Стены покрасили: одну из них сделали акцентной с помощью насыщенного темного оттенка и эффектной композиции из зеркал. Они не только расширяют пространство, но и добавляют богемности обстановке. Две стены оставили в кирпичной кладке.

 📷
📷

В рамках ограниченного бюджета подбирали стандартные модели мебели из наличия в магазинах. На втором этаже шкафы из детской серии мебели Ноff. Зеркальный шкаф в прихожей, комод под лестницей, комод под ТВ — тоже бюджетные. Открытая вешалка и полка для обуви заказаны на Ozon.

 📷
📷

 📷
📷

 📷
📷

Люстра из муранского стекла — из коллекции заказчицы. Она добавила роскоши интерьеру.

На антресоли разместили спальное место и шкаф, предусмотрели все для максимального комфорта — большую кровать, тумбу, бра с ридером.

В санузле разместили раковину со столешницей, под которой прячется стиральная машина. Предусмотрели нишу для хозяйственных вещей плюс полки для декора и коробок с хранением.

Больше фото тут:

Маленькая студия 38 м² с богемной атмосферой в старом доме