Добавить в корзинуПозвонить
Найти в Дзене
INMYROOM

Классная переделка трешки 52 м² в хрущевке

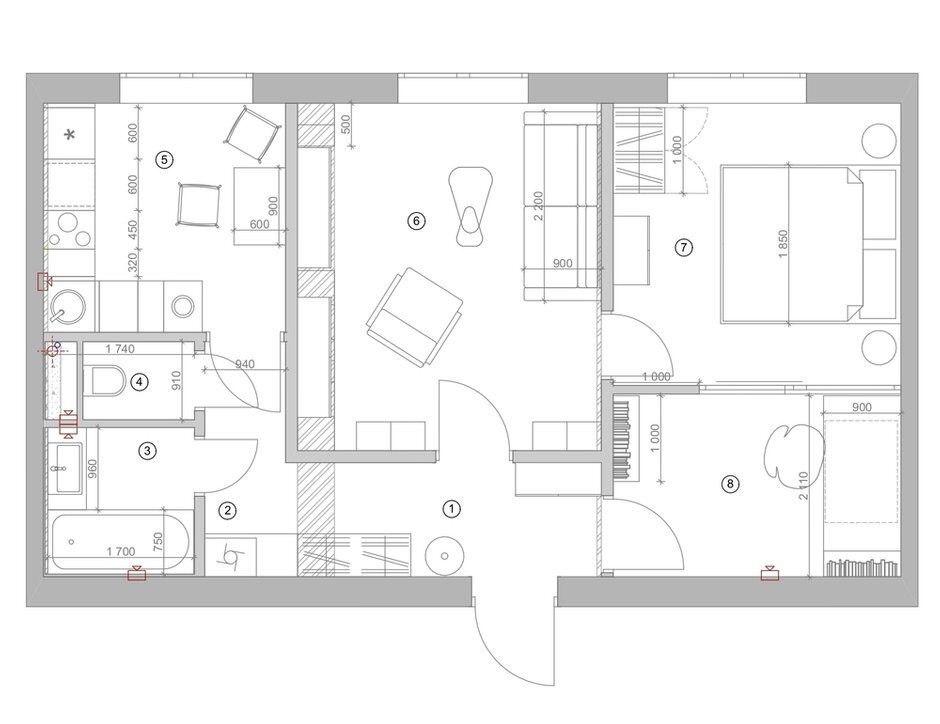
Вкратце Дизайнер Лидия Напреенко превратила типовую двушку в хрущевке серии II-14 1959 года постройки в трешку для преподавателя ВУЗа. Из квартиры в ужасном состоянии сделали уютный интерьер в скандинавском стиле. Оставили изолированную кухню 7 кв. м, но из двух отдельных комнат сделали три: гостиную, спальню и кабинет. Подробности Квартира находится в типовой хрущевке, но ее особенность в том, что потолки здесь высокие — около 3 м. Чтобы сделать пространство более функциональным, придумали новую планировку: сделали проход из гостиной в спальню, из спальни в кабинет, а из кабинета — в прихожую. Таким образом получилась трехкомнатная квартира с круговой планировкой и изолированной кухней. Санузлы оставили раздельными. В свободное время заказчик любит готовить выпечку, поэтому нужно было на небольшой кухне предусмотреть много систем хранения и рабочую столешницу. Гарнитур расположили углом, холодильник отдельностоящий, а духовой шкаф и микроволновая печь встроенные в шкаф-колонну.
Оглавление

Вкратце

Дизайнер Лидия Напреенко превратила типовую двушку в хрущевке серии II-14 1959 года постройки в трешку для преподавателя ВУЗа. Из квартиры в ужасном состоянии сделали уютный интерьер в скандинавском стиле. Оставили изолированную кухню 7 кв. м, но из двух отдельных комнат сделали три: гостиную, спальню и кабинет.

 📷
📷

Подробности

Квартира находится в типовой хрущевке, но ее особенность в том, что потолки здесь высокие — около 3 м. Чтобы сделать пространство более функциональным, придумали новую планировку: сделали проход из гостиной в спальню, из спальни в кабинет, а из кабинета — в прихожую. Таким образом получилась трехкомнатная квартира с круговой планировкой и изолированной кухней. Санузлы оставили раздельными.

 📷
📷

 📷
📷

В свободное время заказчик любит готовить выпечку, поэтому нужно было на небольшой кухне предусмотреть много систем хранения и рабочую столешницу. Гарнитур расположили углом, холодильник отдельностоящий, а духовой шкаф и микроволновая печь встроенные в шкаф-колонну. Газовая варочная панель на две конфорки — этого хватает. Из недостатков — мойку пришлось расположить в углу, но здесь есть посудомоечная машина, поэтому никаких трудностей не возникает.

 📷
📷

Фартук выполнен из керамогранита. Его выложили на столешницу из ЛДСП, шов заделали герметиком.

 📷
📷

 📷
📷

В гостиной есть несущая балка, которую не стали маскировать, а, наоборот, выделили ярким желтым цветом. Такой же «цветной пояс» повторили во всех помещениях. Радиаторы отопления покрасили.

 📷
📷

 📷
📷

В интерьере много ярких желтых акцентов, они создают позитивную обстановку. Здесь всегда солнечно и радостно.

 📷
📷

 📷
📷

Для акцентной стены в изголовье кровати выбрали необычные обои с экзотическим принтом. Во время сна такое буйство цвета не мешает, так как взгляд падает на спокойную стену с ТВ и комодом.

 📷
📷

 📷
📷

Зону кабинета отделили стеклянной перегородкой — так проходит больше света из окон. Стол и книжную полку сделали из ЛДСП на заказ. Предусмотрели несколько сценариев освещения — для отдыха и для работы.

В прихожей разместили шкаф, небольшую консоль и пуф. Система хранения большая, состоит из нескольких секций: для верхней одежды, для запасов продуктов для выпечки, еще одна зона — постирочная. Стиральную машину вынесли в коридор и освободили место в ванной.

В ванной повторили горчичный оттенок в отделке. Использовали керамогранит из той же коллекции, из которой сделан кухонный фартук.

Больше фото тут:

Классная переделка трешки 52 м² в хрущевке