Добавить в корзинуПозвонить
Найти в Дзене
Дизайн интерьера ArtGart

Дизайн квартиры в ЖК Prime Park

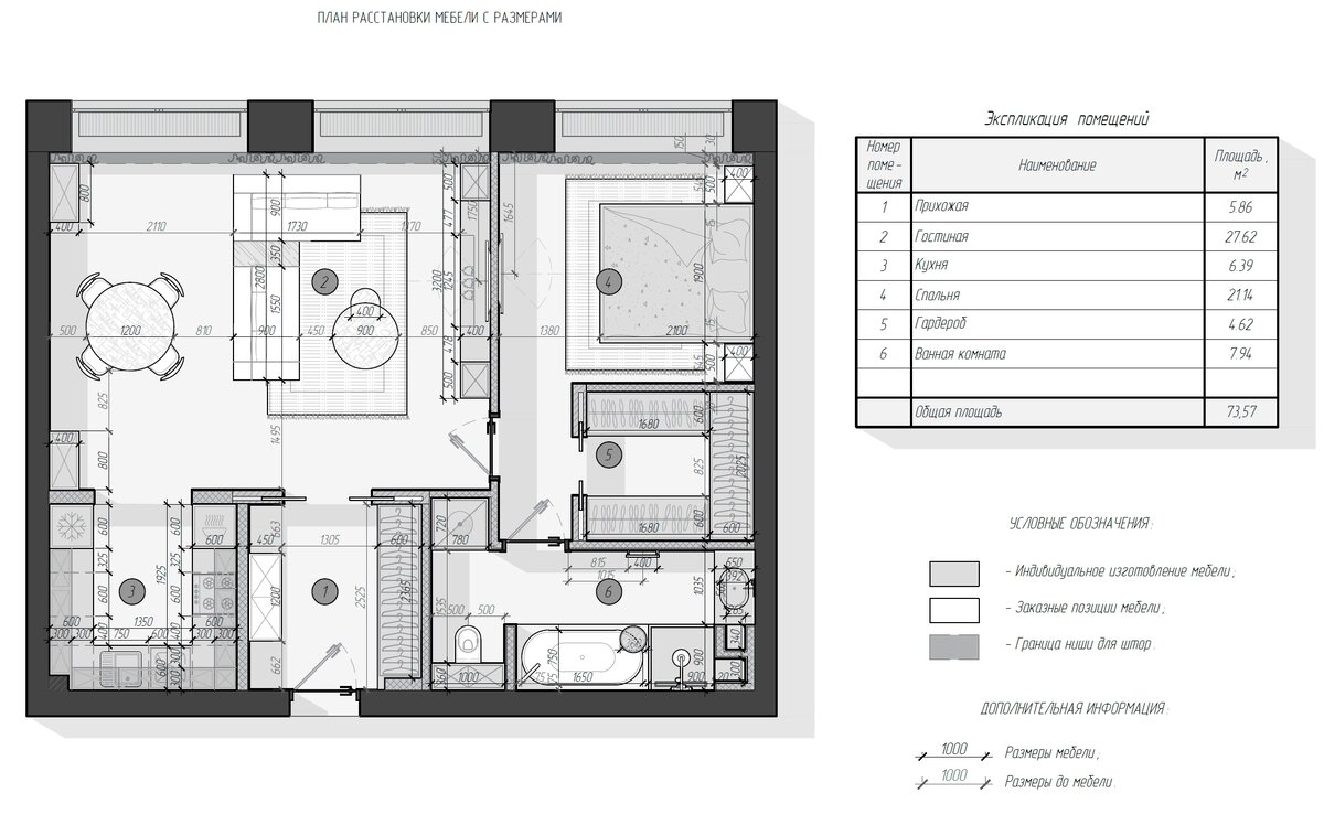
Светлая квартира площадью 73 метра для молодой девушки. Смотрите полный видео обзор этой квартиры: https://rutube.ru/video/58ff397ae655a96c4453a29485e8216b/ Квартира в светлых тонах, белая основа, бежевый и в небольших дозах приглушённый пыльно-розовый оттенок. Стены оформили рифлёными полиуретановыми панелями, которые чередуем с зеркалами и золотыми вставками. Между окнами обязательное в наших проектах зеркало, не теряем роскошную возможность усложнить пространство! Минимальное количество мебели. Столовая зона на 4 персоны, диванная группа с камином и кухня. Диван необычный: состоит из двух частей, одна из которых раскладывается. Столик поддерживает эту двойственность и тоже составной. Каминная зона получилось очень стильной: тумба, камин, рифлёные шкафы – очень гармонично. За телевизором молдинги с подсветкой. Свет во всём любимом нами многообразии: магнитные трековые, встроенные и подвесные люстры. Плитка на полу одинаковая во всей квартире с нежным рисунком мрамора. Раздвижная дв

Светлая квартира площадью 73 метра для молодой девушки.

Смотрите полный видео обзор этой квартиры: https://rutube.ru/video/58ff397ae655a96c4453a29485e8216b/

-2

Квартира в светлых тонах, белая основа, бежевый и в небольших дозах приглушённый пыльно-розовый оттенок.

Стены оформили рифлёными полиуретановыми панелями, которые чередуем с зеркалами и золотыми вставками. Между окнами обязательное в наших проектах зеркало, не теряем роскошную возможность усложнить пространство!

-3

Минимальное количество мебели. Столовая зона на 4 персоны, диванная группа с камином и кухня. Диван необычный: состоит из двух частей, одна из которых раскладывается. Столик поддерживает эту двойственность и тоже составной. Каминная зона получилось очень стильной: тумба, камин, рифлёные шкафы – очень гармонично. За телевизором молдинги с подсветкой.

-4
-5

-6

Свет во всём любимом нами многообразии: магнитные трековые, встроенные и подвесные люстры.

-7
-8
-9
-10

Плитка на полу одинаковая во всей квартире с нежным рисунком мрамора.

-11

Раздвижная дверь из стекла с матовым эффектом прячется в пенал. Перегородка пропускает свет в коридор и позволяет отделить пространство.

-12

П-образная кухня компактно устроена в нише. Ниша была изначально, но её мы слегка увеличили за счёт коридора. Начинается с колонн: холодильник с одной стороны, духовой шкаф с другой – и движется к центру, заполняя местами хранения, посудомоечная машина, варочная панель и раковина. Лаконичная, с тонким золотистым обрамлением, с игрой чередования гладких и рифлёных фасадов. Фартук из крупноформатного керамогранит✨

-13
-14
-15
-16
-17

Прихожая была больше, её площадь мы перераспределили в пользу кухни и ванной комнаты.

-18

Прихожую от гостиной отделает раздвижная перегородка из стекла с матовым эффектом, которая прячется в пенал. Перегородка пропускает свет в коридор, но при этом позволяет разделить пространство.

За консолью профили с подсветкой и рассеиватели. В качестве обрамления рифлёные панели.

Большой шкаф с рифлёными фасадами, с разнонаправленной фрезеровкой.

-19
-20
-21
-22

Спальня с гардеробной в проекте #праймпарк_розовоешампанское

Интерьер лаконичный, сочетание цветов как брызги розового шампанского🥂

-23

Подвесные капли-светильники – топовый вариант для спальни! Они красиво отражаются в зеркалах, обрамлённых рифлёными панелями. Люстра по своей форме напоминает густо цветущие ветви сакуры, опустившиеся над водой.

-24
-25

Панель за кроватью – мягкая, она же изголовье.

Тумбочки визуально лёгкие и компактные, но имеют два полноценных ящика каждая.

Стена напротив также состоит из реечных панелей и золотых вставок.

-26

Из спальни через полупрозрачные двери, такие же, как в гостиной, можно попасть в гардеробную. Была задача сделать максимально большую гардеробную, и мы с ней справились, благодаря грамотной перепланировке.

Шкафы частично закрытые и открытые. Есть место для мелочей, внизу много места для обуви. Полки оснащены подсветкой. Зеркало решили сделать на центральных фасадах шкафа.

-27
-28
-29

В ванной комнате белая основа, розовые вкрапления и золотая отделка тотал: от полотенцесушителя до крючков для полотенец.

-30

Керамогранит за ванной нежного оттенка, за ним прячется светодиодная подсветка.

Люстра напоминает произведение рук ювелира✨ Такой элемент добавляет помещению уюта, делает ванную комнату ближе к гостиной или спальне. Столик рядом с ванной, где можно расположить вазу с фруктами, свечи, расставить баночки с косметикой для SPA.

-31
-32
-33

Над раковиной и в душе предусмотрели ниши. Тумба под раковиной большая с выдвижным ящиком. Фасады были придуманы специально для этого проекта: стеклянные вставки выполнены из розового стекла. Зеркало от пола и до потолка. Заказчица не побоялась такого решения.

-34

Ванная и душ установлены на одном подиуме для того, чтобы расположить коммуникации.

-35

Унитаз отделяет перегородка, над ним шкаф с доступом к гребёнкам. Напротив ниша для стиральной, сушильной машины и бойлера.

-36
-37

Смотрите полный видео обзор этой квартиры: https://rutube.ru/video/58ff397ae655a96c4453a29485e8216b/

Не забудьте подписаться на канал

Сайт

INSTAGRAM

YOU TUBE

РУТУБ

ТЕЛЕГРАМ

РИТМ

ЗАКАЗАТЬ ДИЗАЙН И РЕМОНТ

Заказать дизайн и ремонт: +7 (495) 128-13-51 ; +7 (969) 034-60-46

#дизайнинтерьера #дизайнинтерьерамосква #дизайнпроект #дизайнквартиры #дизайндома #дизайнеринтерьерамосква #планировка #ремонтдома #крона #неоклассика #классика #праймпарк