Добавить в корзинуПозвонить
Найти в Дзене
INMYROOM

Семейная квартира с кухней в нише и тремя спальнями

Вкратце Квартира предназначена для семьи из четырех человек: родителей и двух детей-подростков. У сына не было своей отдельной комнаты, он занимал гостиную, что фактически не давало ему личного пространства, а остальных лишало общей зоны отдыха. Дизайнерам из студии Set Bureau необходимо было выделить всем членам семьи по отдельной спальне, организовать зону отдыха и приема гостей. В итоге кухню перенесли на место коридора. Подробности Планировка была от застройщика, не устраивал огромный нефункциональный холл — в него и перенесли кухню. Гарнитур выполнен на заказ, но с учетом стандартных размеров секций. В боковых колоннах располагаются холодильник, духовой шкаф и СВЧ. Угловые секции дополнены выкатанными секциями, в ящиках располагается хранение посуды и продуктов. Для гостиной-столовой выбрали контрастное сочетание желтых и синих оттенков — хорошее настроение обеспечено в любое время года. «Очень любим постеры художницы Ирины Петровой, которые она написала специально д
Оглавление

Вкратце

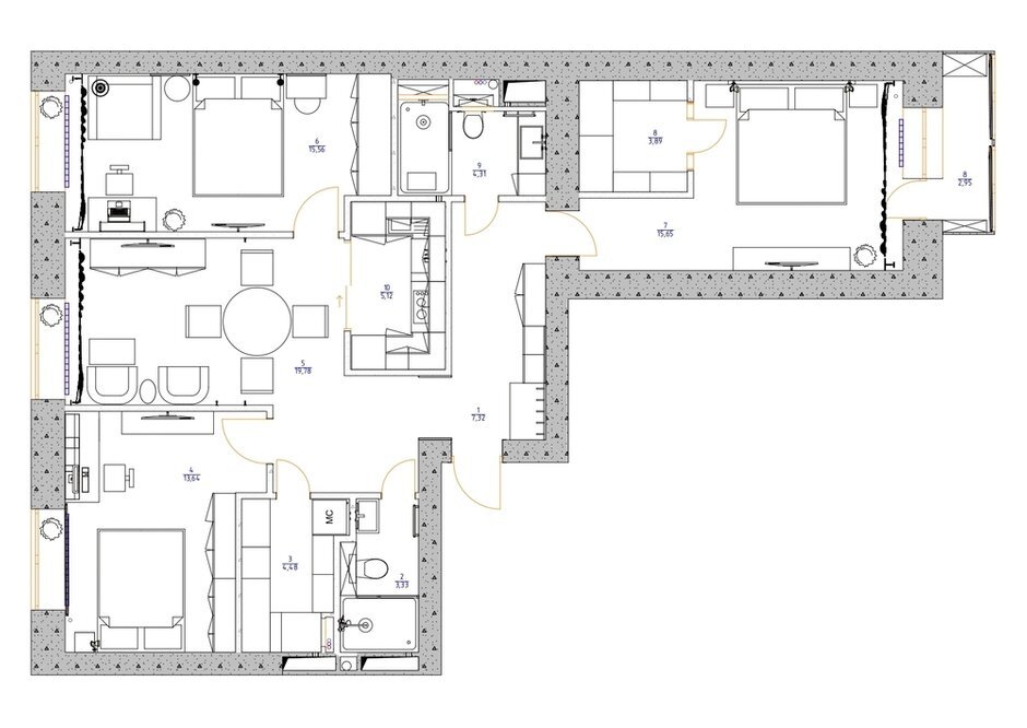
Квартира предназначена для семьи из четырех человек: родителей и двух детей-подростков. У сына не было своей отдельной комнаты, он занимал гостиную, что фактически не давало ему личного пространства, а остальных лишало общей зоны отдыха. Дизайнерам из студии Set Bureau необходимо было выделить всем членам семьи по отдельной спальне, организовать зону отдыха и приема гостей. В итоге кухню перенесли на место коридора.

 📷
📷

Подробности

Планировка была от застройщика, не устраивал огромный нефункциональный холл — в него и перенесли кухню. Гарнитур выполнен на заказ, но с учетом стандартных размеров секций. В боковых колоннах располагаются холодильник, духовой шкаф и СВЧ. Угловые секции дополнены выкатанными секциями, в ящиках располагается хранение посуды и продуктов.

 📷
📷

 📷
📷

 📷
📷

 📷
📷

Для гостиной-столовой выбрали контрастное сочетание желтых и синих оттенков — хорошее настроение обеспечено в любое время года.

 📷
📷

 📷
📷

«Очень любим постеры художницы Ирины Петровой, которые она написала специально для этого проекта», — рассказывают дизайнеры.

 📷
📷

Вместо традиционного дивана в зоне отдыха разместили кресла с пуфиками для ног.

 📷
📷

 📷
📷

В квартире одна несущая стена со стандартным проемом высотой 2000 мм. Высота остальных дверей — 2100 мм. Чтобы визуально скрыть разницу в высотах, сделали цветные порталы за счет выкраса дверей и места над ними. По всей квартире сделан скрытый плинтус, который поддержали тонким молдингом по стенам, придав графичность интерьеру.

 📷
📷

 📷
📷

Спальня дочери — буйство цвета и настроения. При всем разнообразии оттенков спальная зона все-таки выполнена в пастельных тонах. На противоположной стене — роспись декораторов.

 📷
📷

 📷
📷

 📷
📷

Необходимо было предусмотреть несколько функциональных зон: для сна, рабочую, дополнительное спальное место для гостей, зону хранения, туалетный столик. Очень хотелось много зеркал, света и цвета. Все зоны разделились по цветам. Зона хранения — шкаф, фасады которого выкрашены в цвет стен.

 📷
📷

В спальне сына акцент сделали на фреску в изголовье — рисунок похож на водопад в любимых цветах хозяина комнаты. Противоположная рабочая зона отделена цветовым порталом. Молодому человеку хотелось создать необычное пространство — дизайнерам удалось уйти от стандартных решений с помощью комбинаций оттенков.

 📷
📷

 📷
📷

На тумбе стоит картина, которая перешла по наследству от дедушки и бабушки и идеально вписалась в комнату.

 📷
📷

Большой платяной шкаф не требовался, поэтому остановились на невысоком варианте с горизонтальной навеской. Основное хранение переехало в комод.

 📷
📷

В спальне родителей в зоне ТВ использована декоративная штукатурка с эффектом замши, а входная зона и гардероб «отсечены» цветом, чтобы придать спальне правильную геометрию и добавить спокойствия — с помощью зеленого цвета. Основная цветовая гамма комнаты получилась спокойной, хотелось добавить яркости, поэтому в изголовье кровати располагается фреска с журавлями и закатным солнцем.

В квартире предусмотрена отдельная постирочная с системой хранения, с наполнением на металлических направляющих. В спальне есть большой гардероб, который выполнен на заказ. Наполнение предусмотрено таким образом, чтобы одной половиной пользовался заказчик, второй — заказчица. В проекте вся корпусная мебель выполнена на заказ по индивидуальным чертежам.

Больше фото тут:

Семейная квартира с кухней в нише и тремя спальнями