Добавить в корзинуПозвонить
Найти в Дзене

Двухкомнатная квартира на Лиговском 64-66 - "второй свет" и сад Сан-Галли за углом.

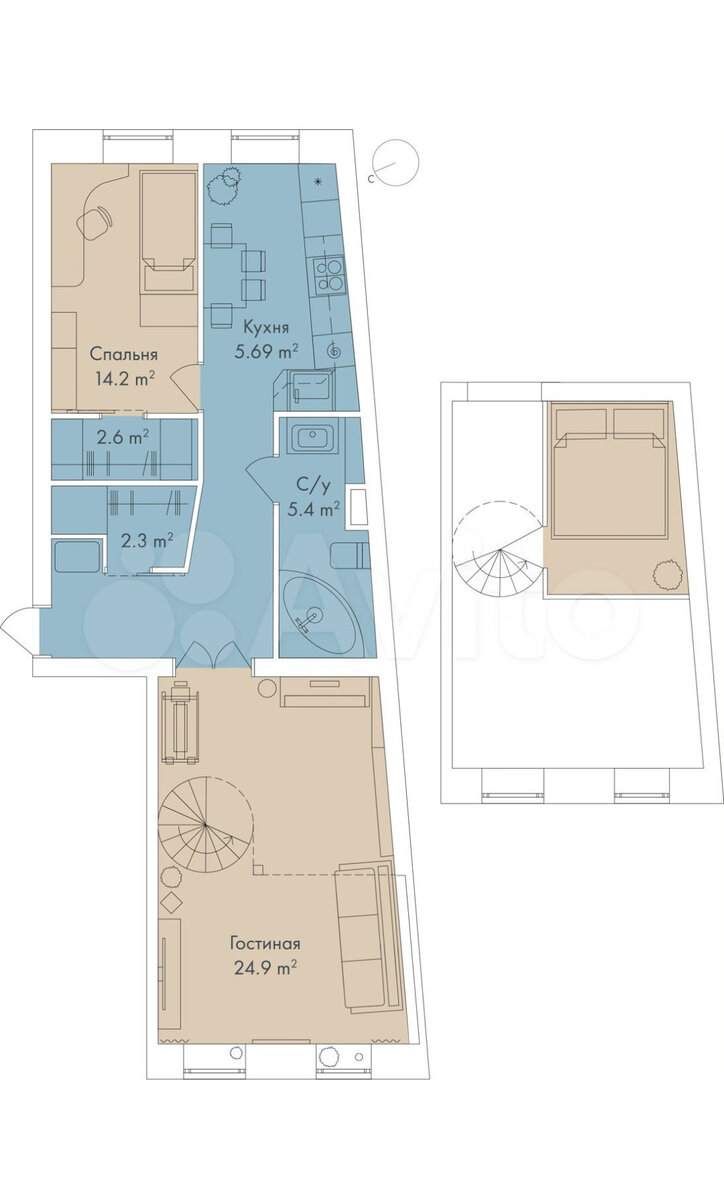
Симпатичная квартира продаётся на Лиговском проспекте, в бывшем жилом доме при заводе Сан-Галли. Нынешние работники заводов и предприятий явно не отказались бы от таких домов) Квартира расположилась по адресу: Лиговский проспект 64-66, на втором этаже. Помещение 69.1 метров квадратных - двухстороннее, с высокими потолками, почти четыре метра. Такие потолки позволили оборудовать в гостиной ещё одно спальное место, на втором ярусе. Как вы можете заметить, в квартире сделан довольно приятный, современный ремонт, все чистенько и аккуратно. Вторая комната, которая примыкает к кухне, сделана под детскую. В квартире есть несколько мест для хранения - одно в детской, второе в коридоре, что без сомнения удобно. Кухня не большая, но вмещает в себя все необходимое, как пишут в объявление - вся техника останется покупателю. Санузел совмещенный, выполнен в общем с остальной квартирой стиле. За такую приятную квартиру, в историческом центре, хотят 14.6 миллиона рублей. Хорошая цена за возможно

Симпатичная квартира продаётся на Лиговском проспекте, в бывшем жилом доме при заводе Сан-Галли. Нынешние работники заводов и предприятий явно не отказались бы от таких домов)

Квартира расположилась по адресу: Лиговский проспект 64-66, на втором этаже. Помещение 69.1 метров квадратных - двухстороннее, с высокими потолками, почти четыре метра.

-2

Такие потолки позволили оборудовать в гостиной ещё одно спальное место, на втором ярусе.

-3
-4
-5
-6
-7
-8
-9
-10

Как вы можете заметить, в квартире сделан довольно приятный, современный ремонт, все чистенько и аккуратно.

Вторая комната, которая примыкает к кухне, сделана под детскую.

-11
-12
-13

В квартире есть несколько мест для хранения - одно в детской, второе в коридоре, что без сомнения удобно.

-14

Кухня не большая, но вмещает в себя все необходимое, как пишут в объявление - вся техника останется покупателю.

-15
-16
-17

Санузел совмещенный, выполнен в общем с остальной квартирой стиле.

-18
-19
-20

За такую приятную квартиру, в историческом центре, хотят 14.6 миллиона рублей. Хорошая цена за возможность заехать семьёй и сразу жить. Так же такая квартира подойдёт и для сдачи в аренду, Московский вокзал и множество достопримечательностей в округе, сделают её привлекательной для будущих арендаторов.

Если заинтересовало - ссылка на объявление ниже.

2-к. квартира, 69,1 м², 2/3 эт. на продажу в Санкт-Петербурге | Купить квартиру | Авито

В окрестностях этого места есть ещё несколько интересных мест , если любопытно ссылки будут здесь.

Фотографии квартиры взяты из открытых источников, на сайтах недвижимости.