Добавить в корзинуПозвонить
Найти в Дзене
INMYROOM

Смелый интерьер трешки 80 м² для семьи из четырех человек

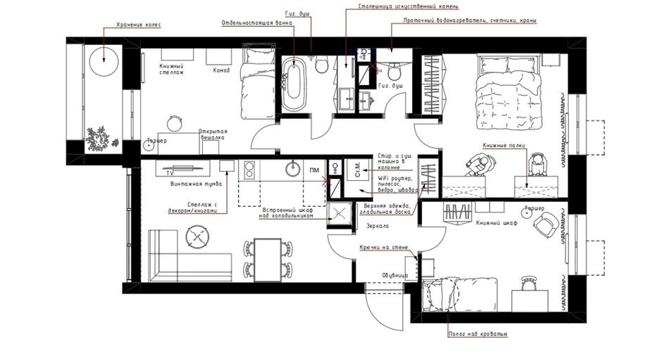
Вкратце Надежда Токарева оформила трехкомнатную квартиру для семьи из четырех человек. Заказчица — фотограф Анна Ковалева, ее муж — инженер, они хотели нестандартный, небанальный интерьер с хорошо проработанной технической стороной. Фишкой интерьера стало использование темных оттенков в покраске стен, обоях, которых боятся многие заказчики. Подробности В изначальную планировку были внесены небольшие изменения. Это позволило организовать встроенные шкафы в спальне родителей и в прихожей, а также выиграть немного места для холодильника на довольно компактной кухне. Площадь кухни-гостиной всего 18 кв. м: удалось разместить кухонный гарнитур, обеденную зону и просторную зону отдыха для всей семьи. «Помещение имеет форму прямоугольника, который мы мысленно разбили на два квадрата. Квадрат у окна отвели для ТВ-зоны с огромным телевизором (в семье все любят компьютерные игры), в квадрате у входа в комнату логично расположилась зона готовки и приема пищи», — рассказывает дизайнер. Кухонн
Оглавление

Вкратце

Надежда Токарева оформила трехкомнатную квартиру для семьи из четырех человек. Заказчица — фотограф Анна Ковалева, ее муж — инженер, они хотели нестандартный, небанальный интерьер с хорошо проработанной технической стороной. Фишкой интерьера стало использование темных оттенков в покраске стен, обоях, которых боятся многие заказчики.

 📷
📷

Подробности

В изначальную планировку были внесены небольшие изменения. Это позволило организовать встроенные шкафы в спальне родителей и в прихожей, а также выиграть немного места для холодильника на довольно компактной кухне. Площадь кухни-гостиной всего 18 кв. м: удалось разместить кухонный гарнитур, обеденную зону и просторную зону отдыха для всей семьи.

«Помещение имеет форму прямоугольника, который мы мысленно разбили на два квадрата. Квадрат у окна отвели для ТВ-зоны с огромным телевизором (в семье все любят компьютерные игры), в квадрате у входа в комнату логично расположилась зона готовки и приема пищи», — рассказывает дизайнер.

 📷
📷

 📷
📷

Кухонный гарнитур выполнен на заказ. Он очень компактный, но это сознательный выбор заказчиков. Они сами называют себя минималистами, не делают больших запасов продуктов и не готовят сложные блюда. В гарнитуре отсутствуют верхние шкафы. Во-первых, это сделано для визуального облегчения помещения. Во-вторых, заказчица всегда мечтала об открытых полках на кухне, где она сможет красиво расставлять декор и посуду.

 📷
📷

Несмотря на размеры, в гарнитуре предусмотрена полноразмерная посудомоечная машина (справа от мойки), духовой шкаф выполняет по совместительству функцию СВЧ. Мойка укомплектована фильтром для воды и измельчителем отходов.

 📷
📷

 📷
📷

 📷
📷

У заказчиков были два огромных армейских сундука, с которыми они не хотели расставаться. Они заменили журнальный столик в гостиной и прикроватную тумбочку в комнате сына.

Для стен выбрали краску. В качестве напольного покрытия взяли винил со специальными замками, который можно уложить «елочкой», его никто не отличит от натурального дерева.

 📷
📷

 📷
📷

 📷
📷

 📷
📷

Кролик над столом — картина художницы Лиды Железняк.

«Я предложила отказаться от стандартного мебельного изголовья кровати, а сделать за изголовьем гипсокартоновую конструкцию с вертикальными рейками из дюрополимера. Верхняя поверхность этой конструкции выполняет функцию полки для картин, фотографий в рамках и декора», — делится дизайнер.

 📷
📷

 📷
📷

 📷
📷

 📷
📷

Черный стул для рабочего стола дизайнер подарила заказчице.

 📷
📷

Еще одна фишка интерьера — использование дверной коробки и наличников, контрастных по цвету с полотнами дверей. Эту идею дизайнер почерпнула, рассматривая интерьеры старинных викторианских особняков. Плинтусы покрасили в один тон с обрамлением двери, создав тем самым единый контур «плинтусы-наличники».

«Хозяйка показывала мне в качестве референсов интерьера детской фотографии с шикарными, необычными, завораживающими обоями за изголовьем детской кровати. Оказалось, что это шведские обои Sandberg, их мы и использовали в проекте», — рассказывает дизайнер.

Особенностью мастер-санузла является отдельностоящая ванна. Планировка продумана таким образом, чтобы поместилась большая тумба с длинной столешницей — это красиво и удобно. Стиральная и сушильная машины расположены в коридоре, в большом встроенном шкафу, поэтому ничего не нарушает красоты.

Все системы хранения продумывались еще на этапе планировки. «Я не очень люблю отдельностоящие шкафы, особенно когда при входе в комнату упираешься взглядом в торец шкафа. Эту проблему решаю, используя встроенные шкафы. Была задача облегчить санузел, убрав из него постирочную технику — для нее предусмотрели большой хозяйственный шкаф в коридоре. Для шкафов использовали лайфхак, позволивший немного сэкономить бюджет. Фасады заказывали из МДФ без покрытия, их заказчики покрасили самостоятельно в цвет стен», — рассказывает Надежда Токарева.

Больше фото тут:

Смелый интерьер трешки 80 м² для семьи из четырех человек