Добавить в корзинуПозвонить
Найти в Дзене

Небольшая баня 50 кв.м., с двумя верандами, комнатой отдыха и балконом.

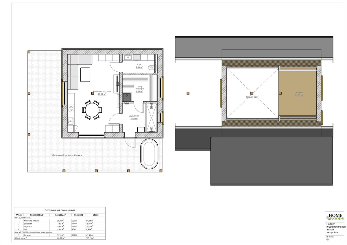
Небольшая баня на 50 квадратных метров с комнатой отдыха, двумя верандами и небольшим балконом является отличным выбором для тех, кто хочет насладиться спокойной атмосферой и отдохнуть от суеты городской жизни. Эта сауна спроектирована, чтобы обеспечить комфортную и расслабляющую обстановку для тех, кто хочет отдохнуть и восстановить силы. Комната отдыха в бане оборудована удобной мебелью, диванами и столиками, чтобы создать комфортное пространство для отдыха и общения. Две веранды предлагают прекрасную возможность провести время на свежем воздухе, наслаждаясь панорамным видом и пейзажами. Так же предусмотрен небольшой балкон для лежанки, поэтому в бане можно и немного поспать. Удобный санузел со стиральной машинкой, просторная душевая, сразу на двух человек. Уютная парилка, где может отлично попарится до 4 человек, с большим окном на природу, плюс отдельный выход из душевой на веранду, где прекрасно можно разместить фурако или уличное джакузи. Почти все мои проекты размещаются на это
Вид бани на веранды
Вид бани на веранды

Небольшая баня на 50 квадратных метров с комнатой отдыха, двумя верандами и небольшим балконом является отличным выбором для тех, кто хочет насладиться спокойной атмосферой и отдохнуть от суеты городской жизни. Эта сауна спроектирована, чтобы обеспечить комфортную и расслабляющую обстановку для тех, кто хочет отдохнуть и восстановить силы.

Планировка бани
Планировка бани

Комната отдыха в бане оборудована удобной мебелью, диванами и столиками, чтобы создать комфортное пространство для отдыха и общения. Две веранды предлагают прекрасную возможность провести время на свежем воздухе, наслаждаясь панорамным видом и пейзажами.

Так же предусмотрен небольшой балкон для лежанки, поэтому в бане можно и немного поспать.

Удобный санузел со стиральной машинкой, просторная душевая, сразу на двух человек.

Уютная парилка, где может отлично попарится до 4 человек, с большим окном на природу, плюс отдельный выход из душевой на веранду, где прекрасно можно разместить фурако или уличное джакузи.

Вид на веранды
Вид на веранды
Вид на веранды
Вид на веранды
Вид на одну из веранд и окна из душевой и парилки
Вид на одну из веранд и окна из душевой и парилки
Задняя стена бани
Задняя стена бани
Задняя стена бани
Задняя стена бани

Почти все мои проекты размещаются на этом канале, так что если не хотите пропустить новинки, подписывайтесь!

Home in the Woods готовые проекты домов Казань