Найти в Дзене
INMYROOM

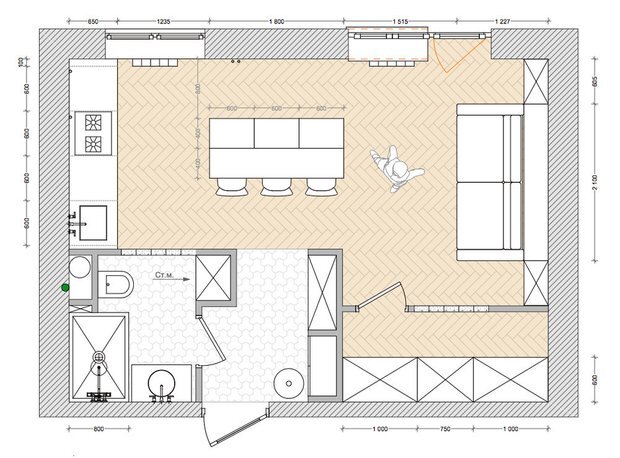
Микросанузел с душевой в хрущевке

Дизайнер Дарья Назаренко полностью переделала типовой санузел в хрущевской однушке 28 кв. м. Чтобы сделать шкаф для стиральной машины, санузел расширили за счет коридора. Стену, смежную с кухней, выложили частично из стеклоблоков, чтобы улучшить освещение и интереснее оформить интерьер. Вместо ванной установили душевой поддон и стеклянную перегородку. Короб для коммуникаций и инсталляции унитаза довели до потолка и сделали в нем ниши-полки для шампуней и других средств — это удобно. Для отделки короба выбрали мозаику — она намного проще в укладке, плюс швы в районе люка не так заметны. К тому же квадратики мозаики отлично сочетаются с квадратными стеклоблоками. Тумба и раковина простые по дизайну, визуально растворяются в маленьком помещении. Зеркало с подсветкой позволяет обойтись без дополнительного бра. Больше фото тут: Микросанузел с душевой в хрущевке

Дизайнер Дарья Назаренко полностью переделала типовой санузел в хрущевской однушке 28 кв. м. Чтобы сделать шкаф для стиральной машины, санузел расширили за счет коридора. Стену, смежную с кухней, выложили частично из стеклоблоков, чтобы улучшить освещение и интереснее оформить интерьер.

 📷
📷

Вместо ванной установили душевой поддон и стеклянную перегородку. Короб для коммуникаций и инсталляции унитаза довели до потолка и сделали в нем ниши-полки для шампуней и других средств — это удобно.

 📷
📷

Для отделки короба выбрали мозаику — она намного проще в укладке, плюс швы в районе люка не так заметны. К тому же квадратики мозаики отлично сочетаются с квадратными стеклоблоками.

Тумба и раковина простые по дизайну, визуально растворяются в маленьком помещении. Зеркало с подсветкой позволяет обойтись без дополнительного бра.

Больше фото тут:

Микросанузел с душевой в хрущевке