Добавить в корзинуПозвонить
Найти в Дзене
INMYROOM

Нескучная трехкомнатная квартира для семьи с двумя детьми

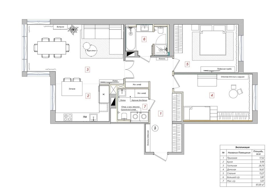
Вкратце Екатерина Никитина оформила трехкомнатную квартиру в новостройке для семьи с двумя детьми. На первой встрече заказчики обозначили, что не боятся цвета и не хотят белые стены. Дизайнер предложила использовать яркие, но приглушенные оттенки мягкой мебели, а вместо белых стен — цвет капучино и топленого молока. Подробности В квартире изначально была хорошая планировка, ее только довели до ума. Есть приватная часть со спальнями, есть общая зона. Для семейного времяпрепровождения идеально подходит большая кухня-гостиная, разделенная на три зоны: зона кухни с островом, за которым можно готовить и общаться, светлая зона столовой, окруженная окнами с дубовыми откосами, и ТВ-зона с большим мягким терракотовым диваном, где поместится вся семья. Кухонная мебель выполнена на заказ. Изначально планировался один большой распашной холодильник, но в процессе подбора техники его заменили на два отдельных встроенных. Шторы изготовлены на заказ. Контрастный кант подобран к дивану.
Оглавление

Вкратце

Екатерина Никитина оформила трехкомнатную квартиру в новостройке для семьи с двумя детьми. На первой встрече заказчики обозначили, что не боятся цвета и не хотят белые стены. Дизайнер предложила использовать яркие, но приглушенные оттенки мягкой мебели, а вместо белых стен — цвет капучино и топленого молока.

 📷
📷

Подробности

В квартире изначально была хорошая планировка, ее только довели до ума. Есть приватная часть со спальнями, есть общая зона. Для семейного времяпрепровождения идеально подходит большая кухня-гостиная, разделенная на три зоны: зона кухни с островом, за которым можно готовить и общаться, светлая зона столовой, окруженная окнами с дубовыми откосами, и ТВ-зона с большим мягким терракотовым диваном, где поместится вся семья.

 📷
📷

 📷
📷

Кухонная мебель выполнена на заказ. Изначально планировался один большой распашной холодильник, но в процессе подбора техники его заменили на два отдельных встроенных.

 📷
📷

 📷
📷

 📷
📷

Шторы изготовлены на заказ. Контрастный кант подобран к дивану.

 📷
📷

 📷
📷

На полу — инженерная доска и плитка. Двери, подоконники и откосы в гостиной в шпоне дуба, кухня и шкафы изготовлены из крашеного МДФ. Мебель сделали на заказ из шпона дуба и шпона американского ореха. Ручки на шкафах в прихожей и спальне выполнены из латуни.

 📷
📷

 📷
📷

 📷
📷

 📷
📷

Для кухни-гостиной изготовили распашную дверь из рифленого стекла, чтобы добавить естественного света в прихожей, при этом сохранив шумоизоляцию, что важно для клиентов с маленькими детьми.

 📷
📷

 📷
📷

 📷
📷

 📷
📷

Заказчица занимается росписью стен, с особой теплотой она изобразила космические корабли, планеты и звезды на стенах детской.

В детской использовали более игривые цвета — под стать их маленьким хозяевам. Предусмотрели стеллаж для хранения: на нем свободно разместятся книжки и игрушки. Звездочки у кровати служат ночниками: включить их можно как с первого, так и со второго яруса кровати.

Два санузла удалось разделить по функционалу: основной санузел — с ванной и душем, а второй — хозблок с постирочной и системой хранения для уборочного инвентаря. Также добавили рейлинг для вещей, не предназначенных для машинной сушки.

Межкомнатные двери в потолок выполнены в шпоне дуба. Над входной дверью высокий наличник — для имитации высокой двери.

Больше фото тут:

Нескучная трехкомнатная квартира для семьи с двумя детьми