Найти в Дзене
Войти
Функция Архитектура
2487 подписчиков
Подписаться
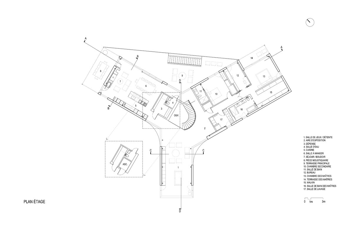
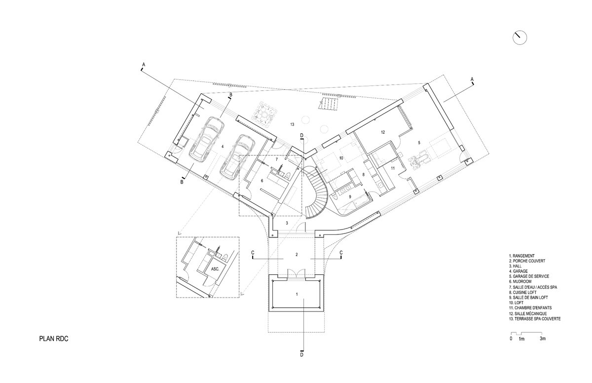
Проект. Des Forges Residence.
11 мая 2023
11 мая 2023
4
...
Читать далее
6