Найти в Дзене
INMYROOM

Трехкомнатная квартира 58 м², которая кажется намного больше

Оглавление

Дизайнер Анна Лубкова оформила евротрешку площадью 58 кв. м для семьи с дочерью 11 лет. Интерьер нужно было сделать удобным, вместительным, так как у заказчиков много вещей, при этом не загроможденным. Хозяйка очень любит цвет, чувствует себя комфортно в ярком и насыщенном пространстве. А для супруга было важно продумать всю техническую часть и грамотно проработать электрику.

Город: МоскваМетраж: 58 кв. мКомнаты: 3Санузлы: 1Высота потолков: 2,8 мБюджет: 7,5 млн рублейДизайнер: Анна ЛубковаФотограф и стилист: Юлия Гордеева

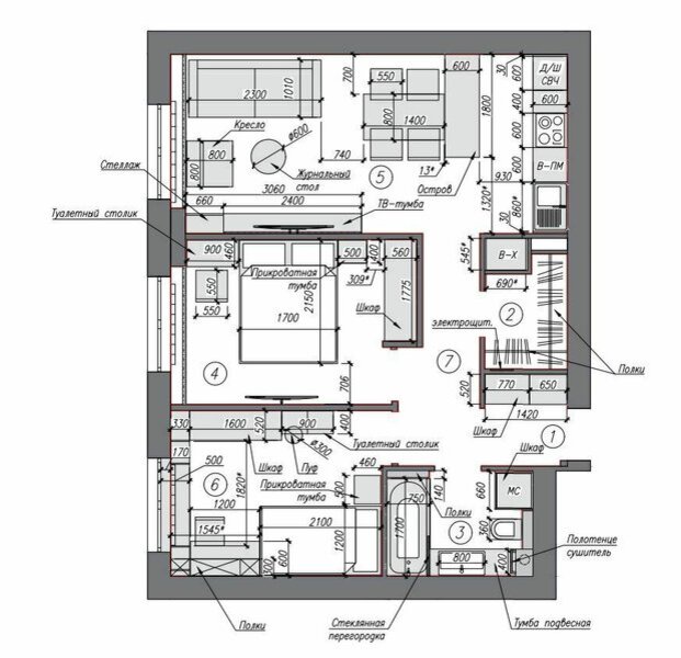
Планировка

Квартира была куплена только с отмеченными санузлами, поэтому дизайнер спроектировала пространство с учетом пожеланий заказчиков. Например, отказались от второго санузла, отдав эту зону под гардероб — таким образом решили проблему со шкафами. Немного передвинули перегородки, чтобы сделать более комфортные проходы.

Комната под кухню-гостиную была непропорционально длинной. Кухонный остров визуально разделил пространство на зону гостиной и зону кухни, приблизив их к более комфортным квадратам. Ванная осталась в своих размерах, но туда удалось вместить все необходимое — даже колонну со стиральной и сушильной машинами.

 📷
📷

Кухня-гостиная

Кухня осталась там, где и был вывод для мойки, плита электрическая. Холодильник не помещался в основную линейку кухни, поэтому во время ремонта сделали проем в будущий гардероб по размеру встроенного холодильника. Накладные двери окрасили в цвет стен. Таким образом удалось разместить и скрыть большой холодильник.

 📷
📷

Есть посудомоечная машина, фильтр для воды, измельчитель отходов, большой встроенный холодильник, духовой шкаф, микроволновая печь, чайник. Блендер и разная мелкая утварь помещаются в верхних полках.

Вся кухня выполнена на заказ, так как верхние шкафы до потолка нестандартных размеров. Плюс отдельностоящий остров. Столешница и фартук — из кварцевого агломерата. В столешницу встроен дозатор для чистящего средства. Мойка из стали с покрытием под латунь и смеситель для кухни с подключением к фильтру.

 📷
📷

В острове 6 выкатных объемных ящиков, что позволяет разместить все необходимые сухие продукты, кастрюли, крышки и сковородки.

 📷
📷

«Фишка интерьера — в его яркости и сочетании фактур. Со слов заказчиков, когда гости заходят в кухню-гостиную, то кажется, что в этой зоне все 50 кв. м, хотя вся квартира 58,3 кв. м. Думаю, такой эффект создают темная кухня и ряд одинаковых молдингов на стене. Стены не перегружены декором, а кухня выглядит миниатюрной на фоне длинной однотонной по цвету стены», — говорит Анна Лубкова.

 📷
📷

 📷
📷

Заказчики сразу обозначили, что хотят цвет, не боятся темных насыщенных тонов, а на стенах им нравятся молдинги. Краска используется в коридоре, кухне-гостиной и частично в спальне. На полу в жилых помещениях — паркетная доска, а в мокрых зонах — керамогранит.

 📷
📷

Спальня

В спальне много приятных тактильных вещей. Перьевая люстра, бра с бахромой и разнообразный текстиль.

 📷
📷

В спальне разместили яркое, активное панно, которое связывает между собой все предметы в интерьере.

 📷
📷

 📷
📷

 📷
📷

Детская

Детская комната должна была вмещать рабочий стол, большой шкаф, отдельное место для чтения и кровать. Благодаря низкому подоконнику удалось организовать место для чтения: верхняя часть сидушки поднимается и можно легко убрать пыль с батареи.

 📷
📷

В детской использовали флизелиновые обои российской фабрики Loymina. Обои хоть и кажутся темными, но работают как нейтральный фон, на котором светлая мебель выглядит более четкой. А черная тумба — наоборот, показывает и раскрывает цвет и сложный оттенок самих обоев. Мелкий рисунок в ромбики создает в комнате уютную атмосферу. А фиолетовый фриз по периметру всего помещения усложняет и дополняет пространство.

В рабочей зоне есть все необходимое для школьницы: полки, выкатные ящики и место для хранения. Под туалетным столиком возле шкафа есть крючки для хранения рюкзака. Поместилось даже большое зеркало. Мягкая кровать по размеру в ширину 1200 мм. Весь интерьер был сделан уже с оглядкой на будущее — комната будет «взрослеть» вместе с хозяйкой, не теряя своей актуальности.

Санузел

Санузел общий, всего 4,3 кв. м. Поместилась ванна стандартного размера 1700×750 мм. Нашлось место и для полки под шампуни. Столешница почти в полтора метра длиной с большой встроенной раковиной: под ней выкатные ящики, много мест для хранения.

Больше фото тут:

Трехкомнатная квартира 58 м², которая кажется намного больше