Найти в Дзене

Проект дома 2 этажа 148 кв.м. с тремя спальнями и верандой.

Планировка довольно стандартная, со своими небольшими нюансами. На первом этаже одна спальня, и еще пара на втором. Над гостиной второй свет, шикарная веранда, вполне уютная гостиная с лестницей на верх. Дом проектировался на существующий фундамент, в остальном есть полная рабочая документация. Основной наш сайт находится по адресу: https://homeinthewood.wixsite.com/home Если возникнут вопросы или предложения, если возникнет желание просто пообщаться, добро пожаловать в комментарии или к нам на сайт, в раздел контакты. Спасибо за уделенное внимание❗👍
Лайк и комментарий приветствуются❗👍
Подписывайтесь
Вид дома на веранду
Вид дома на веранду

Планировка довольно стандартная, со своими небольшими нюансами. На первом этаже одна спальня, и еще пара на втором. Над гостиной второй свет, шикарная веранда, вполне уютная гостиная с лестницей на верх.

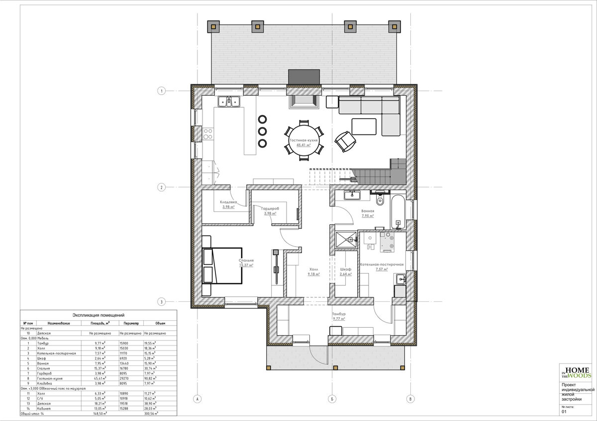
Планировка 1 этажа
Планировка 1 этажа
Планировка 2 этажа
Планировка 2 этажа

Дом проектировался на существующий фундамент, в остальном есть полная рабочая документация.

Вид на входную группу
Вид на входную группу
Вид справа, частично видно веранду и входную группу
Вид справа, частично видно веранду и входную группу
Вид на входную группу
Вид на входную группу
Вид слева частично на веранду
Вид слева частично на веранду
Вид на веранду.
Вид на веранду.

Основной наш сайт находится по адресу:

https://homeinthewood.wixsite.com/home

Если возникнут вопросы или предложения, если возникнет желание просто пообщаться, добро пожаловать в комментарии или к нам на сайт, в раздел контакты.

Спасибо за уделенное внимание❗👍

Лайк и комментарий приветствуются❗👍

Подписывайтесь