Добавить в корзинуПозвонить
Найти в Дзене

Дом с сюрпризом 132 кв.м. и огромная веранда

Дом с сюрпризом, отличная планировка, возможность пристроить навес для машины сразу к дому, раздельные зоны родителей и детей, удобная гостиная, два полноценных санузла, к кухне пристроена кладовка-котельная, полноценная мастер-спальня, с санузлом и гардеробной. А еще огромная веранда на всю длину дома и сюрприз в виде шикарного балкона с лестницей из гостиной. Кстати сзади дома есть пара выходов на небольшой внутренний дворик, который планируется сделать в тех самых пресловутых трех метрах от забора, которые нас заставляют делать и в которых у многих попросту растет бурьян. Основной наш сайт находится по адресу: https://homeinthewood.wixsite.com/home Если возникнут вопросы или предложения, если возникнет желание просто пообщаться, добро пожаловать в комментарии или к нам на сайт, в раздел контакты. Спасибо за уделенное внимание❗👍 Лайк и комментарий приветствуются❗👍 Подписывайтесь
Оглавление
Вид на веранду
Вид на веранду

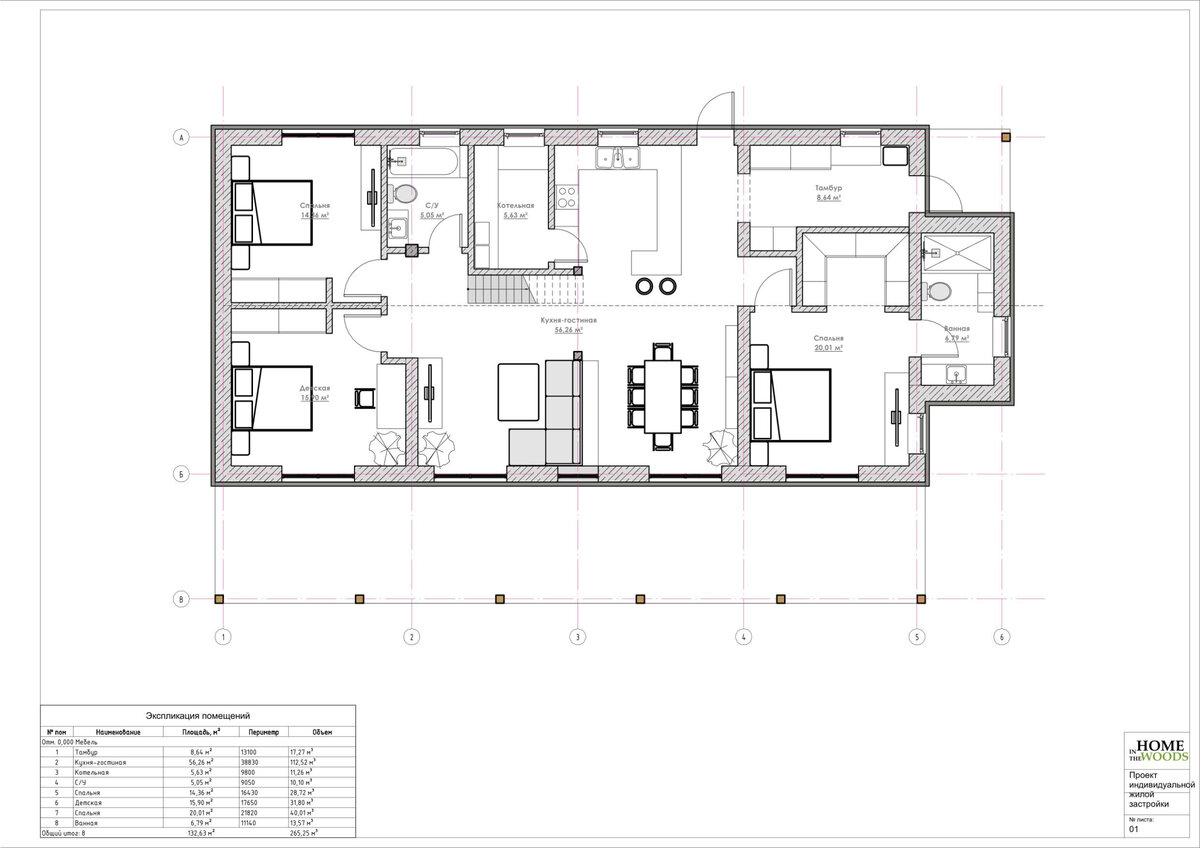
Дом с сюрпризом, отличная планировка, возможность пристроить навес для машины сразу к дому, раздельные зоны родителей и детей, удобная гостиная, два полноценных санузла, к кухне пристроена кладовка-котельная, полноценная мастер-спальня, с санузлом и гардеробной.

А еще огромная веранда на всю длину дома и сюрприз в виде шикарного балкона с лестницей из гостиной.

Планировка дома
Планировка дома
Вид на входную зону
Вид на входную зону
Вид на веранду
Вид на веранду
Вид на веранду
Вид на веранду
Вид на дом сверху
Вид на дом сверху
Вид на заднюю часть дома
Вид на заднюю часть дома

Кстати сзади дома есть пара выходов на небольшой внутренний дворик, который планируется сделать в тех самых пресловутых трех метрах от забора, которые нас заставляют делать и в которых у многих попросту растет бурьян.

Основной наш сайт находится по адресу:

https://homeinthewood.wixsite.com/home

Если возникнут вопросы или предложения, если возникнет желание просто пообщаться, добро пожаловать в комментарии или к нам на сайт, в раздел контакты.

Спасибо за уделенное внимание❗👍

Лайк и комментарий приветствуются❗👍

Подписывайтесь