Найти в Дзене

Классический одноэтажник с тремя спальнями, шикарной гостиной и верандой.

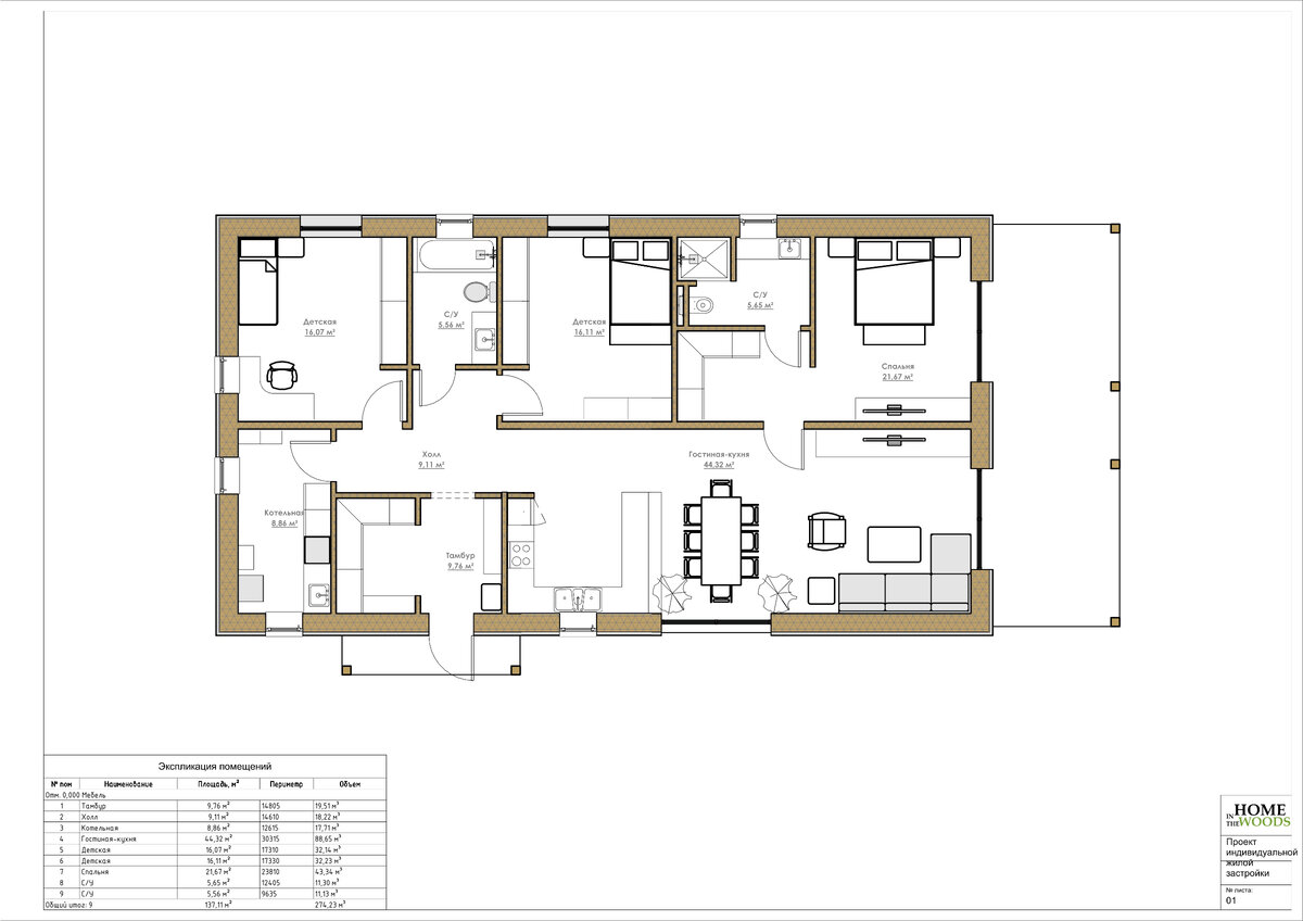
Дом площадью 137 квадратных метров - это просторное и функциональное жилье, которое идеально подходит для семьи из 4-6 человек. В доме расположены три спальни, два санузла и удобная гостиная, а также большая веранда, которая станет прекрасным местом отдыха для всей семьи.
Гостиная имеет просторную зону для отдыха и общения, которая дополнена просторной обеденной зоной и открытой кухней. Кухня оборудована всей необходимой кухонной техникой и имеет достаточно места для приготовления пищи. Высокие потолки и большие окна, создают чувство простора и уюта.
Три спальни расположены отдельно друг от друга для большей приватности. Два санузла оборудованы современными удобствами и просторными душевыми, что делает их очень функциональными и удобными в использовании.
Веранда, расположенная в фасадной части дома, отлично подходит для отдыха на свежем воздухе и занятий спортом. Ее пространство достаточно велико, чтобы разместить мебель для отдыха или стол для еды, что позволит сделать
Оглавление

Дом площадью 137 квадратных метров - это просторное и функциональное жилье, которое идеально подходит для семьи из 4-6 человек. В доме расположены три спальни, два санузла и удобная гостиная, а также большая веранда, которая станет прекрасным местом отдыха для всей семьи.
Гостиная имеет просторную зону для отдыха и общения, которая дополнена просторной обеденной зоной и открытой кухней. Кухня оборудована всей необходимой кухонной техникой и имеет достаточно места для приготовления пищи. Высокие потолки и большие окна, создают чувство простора и уюта.
Три спальни расположены отдельно друг от друга для большей приватности. Два санузла оборудованы современными удобствами и просторными душевыми, что делает их очень функциональными и удобными в использовании.
Веранда, расположенная в фасадной части дома, отлично подходит для отдыха на свежем воздухе и занятий спортом. Ее пространство достаточно велико, чтобы разместить мебель для отдыха или стол для еды, что позволит сделать отдых более комфортным.
В целом, это прекрасный дом, идеально подходящий для семьи, которая ценит комфорт, функциональность и красоту внутреннего пространства. Он обладает всеми удобствами и дополнительными удобствами, необходимыми для комфортного и расслабленного образа жизни.

M137 Большая семья

Вариант дома в соломенных панелях, фасадная отделка в этом случае дерево и глиняная штукатурка.
Вариант дома в соломенных панелях, фасадная отделка в этом случае дерево и глиняная штукатурка.
Вариант дома в соломенных панелях, фасадная отделка в этом случае дерево и глиняная штукатурка.
Вариант дома в соломенных панелях, фасадная отделка в этом случае дерево и глиняная штукатурка.
Вариант дома в соломенных панелях, фасадная отделка в этом случае дерево и глиняная штукатурка.
Вариант дома в соломенных панелях, фасадная отделка в этом случае дерево и глиняная штукатурка.

А это вариант дома из газобетона, фасадная отделка дерево.

Вариант дома из газобетона
Вариант дома из газобетона
Вариант дома из газобетона
Вариант дома из газобетона
Вариант дома из газобетона
Вариант дома из газобетона
Вариант дома из газобетона
Вариант дома из газобетона
Вариант дома из газобетона
Вариант дома из газобетона
Вариант дома из газобетона
Вариант дома из газобетона
Вариант дома из газобетона
Вариант дома из газобетона

Если вам нужен проект этого дома из газобетона, то необходимо обращаться ко мне, на него есть полная рабочая документация.

Home in the Woods готовые проекты домов Казань

Если же вам понадобится дом из соломенных панелей, то следует обратиться в компанию GreenCube

Главная

Если возникнут вопросы или предложения, или возникнет желание просто пообщаться, добро пожаловать в комментарии или к нам на сайт, в раздел контакты.

Спасибо за уделенное внимание❗👍

Лайк и комментарий приветствуются❗👍

Подписывайтесь