Найти в Дзене
INMYROOM

Уютнейшая трешка в Балашихе для большой семьи

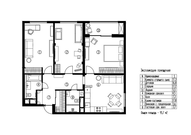
Вкратце Дизайнер Наталья Коренева оформила трехкомнатную квартиру в ЖК «Акварели» для большой семьи. Ее заказчики — пара с тремя детьми: нужно было предусмотреть комфортное прсотранство для всех. Планировку от застройщика усовершенствовали, а в отделке сделали ставку на отсылку к стилю современная классика с элементами прованса. Подробности Первоначальный план этой квартиры площадью 96 квадратных метров предполагал одну гостиную и две спальни. Дизайнер и заказчики единогласно решили внести изменения: в итоге пространство разделили на спальню родителей с прилегающей к ней лоджией, две детских комнаты и кухню, включающую в себя небольшую гостевую зону. Два санузла и гардеробная в холле завершают образ комфортного жилища для большой семьи. В квартире с маленькими детьми важно, чтобы отделка была не только экологичной, но и долговечной. Поэтому на пол положили практичный керамогранит и износоустойчивую инженерную доску медового оттенка. На стенах — краска, декоративная штукатурка и о
Оглавление

Вкратце

Дизайнер Наталья Коренева оформила трехкомнатную квартиру в ЖК «Акварели» для большой семьи. Ее заказчики — пара с тремя детьми: нужно было предусмотреть комфортное прсотранство для всех. Планировку от застройщика усовершенствовали, а в отделке сделали ставку на отсылку к стилю современная классика с элементами прованса.

 📷
📷

Подробности

Первоначальный план этой квартиры площадью 96 квадратных метров предполагал одну гостиную и две спальни. Дизайнер и заказчики единогласно решили внести изменения: в итоге пространство разделили на спальню родителей с прилегающей к ней лоджией, две детских комнаты и кухню, включающую в себя небольшую гостевую зону. Два санузла и гардеробная в холле завершают образ комфортного жилища для большой семьи.

 📷
📷

 📷
📷

В квартире с маленькими детьми важно, чтобы отделка была не только экологичной, но и долговечной. Поэтому на пол положили практичный керамогранит и износоустойчивую инженерную доску медового оттенка. На стенах — краска, декоративная штукатурка и обои в качестве акцентов. Потолок везде — натяжной, тканевый.

 📷
📷

 📷
📷

 📷
📷

Для создания необходимой атмосферы дизайнер использовала в отделке преимущественно пастельные тона. В холле это пудровый «шелк» штукатурки и оливковый бархат диванчика в нише, на кухне — сочетание мятного и бежевого. В спальне родителей за весеннее настроение отвечают обои в синих и нежно-розовых оттенках.

 📷
📷

Дизайнер сделала ставку на мебель, изготовленную на заказ. В прихожей поместился уютный диванчик в нише, в спальне родителей поставили кровать с изящным мягким изголовьем. Остальную мебель подбирали в интерьерных магазинах Москвы, а консоль в холле — единственный винтажный предмет интерьера — нашли на одной из подмосковных барахолок.

 📷
📷

 📷
📷

 📷
📷

 📷
📷

Комната старшего сына стилистически кардинально отличается от всех остальных помещений квартиры: для стиля лофт выбрали брутальный декоративный кирпич.

Системам хранения уделили особое внимание: все-таки в семье пять человек. В холле организовали гардеробную для верхней одежды и обуви. Просторные встроенные шкафы в спальне родителей и комнате старшего сына отлично справляются со своей задачей. «Системы хранения позволили скрыть с глаз все лишнее и „освободить“ пространство так, что осталось место и для декора», — говорит дизайнер.

Больше фото тут:

Уютнейшая трешка в Балашихе для большой семьи