Добавить в корзинуПозвонить
Найти в Дзене

Как строится дом из ЛСТК? Что нужно делать поэтапно? Что это дает?

Строительство дома из ЛСТК поможет вам получить надежный дом в сжатые сроки и с полностью прозрачной сметой расходов. Наглядно на каждом этапе можно увидеть экономию сил и средств. Итак, строительства из ЛСТК может проходить по следующим этапам: Работы по участку: геология для проверки грунтов, топографическая съемка - мы рекомендуем всегда выполнять этап геологии, чтобы обеспечить безопасность и правильно выбрать тип фундамента. Проектирование/архитектура: на этом этапе разрабатывается проект будущего дома, включающий в себя все необходимые параметры и спецификации. Проект разрабатывается исходя из ваших пожеланий. Также этот и следующий этапы могут и не быть в вашей стройке, если вы выбрали типовой уже готовый проект. Конструирование: так как мы работаем с BIM-технологиями, то мы всегда разрабатываем цифровую модель каркаса будущего здания, которая позволяет заранее все проверить. Далее файл с моделью отправляет в наш станок. Подготовка фундамента: фундамент для дома из ЛСТК может б

Строительство дома из ЛСТК поможет вам получить надежный дом в сжатые сроки и с полностью прозрачной сметой расходов. Наглядно на каждом этапе можно увидеть экономию сил и средств.

Итак, строительства из ЛСТК может проходить по следующим этапам:

Работы по участку: геология для проверки грунтов, топографическая съемка - мы рекомендуем всегда выполнять этап геологии, чтобы обеспечить безопасность и правильно выбрать тип фундамента.

Забор образцов грунта с участка для дальнейшей экспертизы
Забор образцов грунта с участка для дальнейшей экспертизы

Проектирование/архитектура: на этом этапе разрабатывается проект будущего дома, включающий в себя все необходимые параметры и спецификации. Проект разрабатывается исходя из ваших пожеланий. Также этот и следующий этапы могут и не быть в вашей стройке, если вы выбрали типовой уже готовый проект.

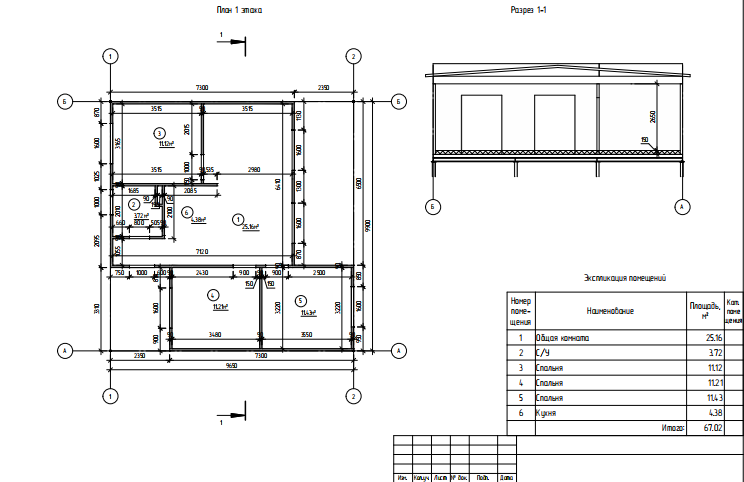
По итогу проектирования вы получаете документ с полными размерами и габаритами вашего здания
По итогу проектирования вы получаете документ с полными размерами и габаритами вашего здания

Конструирование: так как мы работаем с BIM-технологиями, то мы всегда разрабатываем цифровую модель каркаса будущего здания, которая позволяет заранее все проверить. Далее файл с моделью отправляет в наш станок.

Далее на основе эскизного проекта наши конструктора занимаются разработкой модели каркаса вашего здания
Далее на основе эскизного проекта наши конструктора занимаются разработкой модели каркаса вашего здания

Подготовка фундамента: фундамент для дома из ЛСТК может быть сделан из различных материалов, таких как монолитная плита или сваи. Рекомендуем выбирать фундамент исходя из проведенных геологических изысканий.

Изготовление каркаса: каркас дома из ЛСТК изготавливается из легких стальных профилей, которые могут быть предварительно смонтированы в заводских условиях или собраны на месте строительства. В комплект каркаса входят: профили, демпферная лента, цинковый баллончик, штрипс (при необходимости), документация для сборки.

На фото комплекты каркасов для 2 домов более 100 м2
На фото комплекты каркасов для 2 домов более 100 м2

Монтаж: сборка каркаса настолько проста, что его может собрать любой человек без знаний в сфере строительства. Также можно обратиться в наше региональное подразделение или в стороннюю организацию для осуществления монтажа.

-6

Далее этапы строительства могут меняться по вашему желанию.

Установка окон и дверей: Окна и двери могут быть установлены на месте сразу же после монтажа стен. При этом заказывать окна можно сразу после получения эскизного проекта. Так как каркас не имеет усадки, то размеры снимать не нужно.

-7

Монтаж крыши: Крыша дома из ЛСТК может быть покрыта различными материалами, такими как металлочерепица или профнастил.

-8

Обшивка наружных стен: здесь могут быть применены разные материалы. Для обшивки снаружи: ЦСП, аквапанель, сэндвич и т.п.

Обшивка плитами ЦСП в процессе
Обшивка плитами ЦСП в процессе

Электрика и сантехника: на этом этапе проводятся провода и трубы в теле каркаса, делается теплый пол. Если на этапе проектирования заказали проект инженерных сетей, то все работы пройдут быстрее и без заминок.

Пример стены с коммуникациями
Пример стены с коммуникациями

Утепление: минеральная вата, эковата, пенополиуретан, пенобетон - самые часто применяемые материалы утепления каркаса ЛСТК.

Так выглядит стена с утеплением пенобетоном - предварительно каркас обшивается листовым материалом и затем этапами заливается пенобетон. Здесь листовой материал сняли в период проведения заливки для демонстрации стены
Так выглядит стена с утеплением пенобетоном - предварительно каркас обшивается листовым материалом и затем этапами заливается пенобетон. Здесь листовой материал сняли в период проведения заливки для демонстрации стены

Отделка: После установки всех основных элементов дома, начинается работа по его отделке. Внутри стены обычно обшиваются двойным слоем гипсокартона. Потолок также может быть подшит гипсокартоном.

Стоит отметить, что такие моменты как теневые зазоры гораздо проще и дешевле выполнить по технологии ЛСТК, чем по любой другой.

Так выглядит здание из ЛСТК в предчистовой отделке
Так выглядит здание из ЛСТК в предчистовой отделке

А вот как будет выглядеть ваше здание дальше - зависит лишь от вас и вашего дизайнера интерьеров.

***

Пишите свои вопросы по этапам строительства по технологии ЛСТК и чтобы вы хотели отметить.

Подписывайтесь на наш канал и узнайте больше о нашей системе строительства!