Добавить в корзинуПозвонить
Найти в Дзене

Ошибки при строительстве дома. Дом наоборот или почему нельзя оставлять стройку без внимания...

Добрый день, уважаемые читатели. Живя в нашей стране с возрастом начинаешь понимать, что для того, чтобы тебя не обманули, нужно иметь минимальные познания в различных областях. Например, если ты хочешь что-то купить, то нужно иметь базовые понятия о товаре, иначе тебе навяжут ненужные функции, либо продадут удобные для продажи товары (те с которых магазин получит больше прибыли), а не действительно нужный тебе товар. Со строительством абсолютно такая же история. Слепо доверять строителям не стоит если ты строишь свое единственное жилье. Минимальный контроль в любом случае необходим. С одним из моих Заказчиков произошла на первый взгляд очень удивительная история. Он проживая на севере нашего региона, довольно таки трудно доступном районе, решил построить себе дом в пригороде нашего города. Обычная история, когда отработав 30-40 лет на крайнем севере люди переезжают в более спокойный климат. Т.к. человек работает, а чтобы добраться до Тюмени нужно пару дней (вертолет + такси + самолет/

Добрый день, уважаемые читатели.

Живя в нашей стране с возрастом начинаешь понимать, что для того, чтобы тебя не обманули, нужно иметь минимальные познания в различных областях. Например, если ты хочешь что-то купить, то нужно иметь базовые понятия о товаре, иначе тебе навяжут ненужные функции, либо продадут удобные для продажи товары (те с которых магазин получит больше прибыли), а не действительно нужный тебе товар.

Со строительством абсолютно такая же история. Слепо доверять строителям не стоит если ты строишь свое единственное жилье. Минимальный контроль в любом случае необходим.

С одним из моих Заказчиков произошла на первый взгляд очень удивительная история. Он проживая на севере нашего региона, довольно таки трудно доступном районе, решил построить себе дом в пригороде нашего города. Обычная история, когда отработав 30-40 лет на крайнем севере люди переезжают в более спокойный климат.

Т.к. человек работает, а чтобы добраться до Тюмени нужно пару дней (вертолет + такси + самолет/поезд), то Заказчик приехав в Тюмень в отпуск купил земельный участок в коттеджном поселке.

В нашем городе земельные участки в коттеджных поселках начинают продавать на стадии чистого поля с расставленными столбами ЛЭП. Обещая в скором (как правило относительно скором) времени построить дороги, провести газ, иногда еще благоустроить территорию. Иногда это так и происходит иногда новоиспеченные собственники ЗУ остаются наедине со своими проблемами.

Купив земельный участок, Заказчик обратился, как ему показалось в "серьёзную" фирму по строительству домов. Где он выбрал проект для строительства.

Вот такой дом выбрал Заказчик.
Вот такой дом выбрал Заказчик.

Дом для него показался идеальным вариантом.

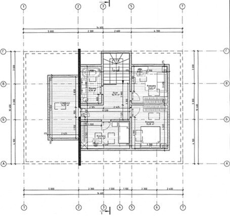
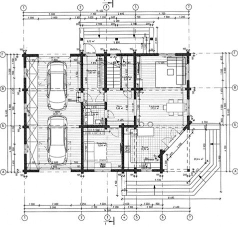
Вот планировка дома (листайте карусель)

Строители составили договор и смету (листайте карусель)

Заказчик внес оплату за строительство дома из профилированного бруса 145х195 и уехал обратно на север на работу.

Тем временем шло строительство. По договору уже было пора принимать объект, однако строители все время, как часто это бывает, кормили его завтраками. И вот как-то приехав в очередной отпуск он увидел это:

Сказать, что Заказчик был в шоке - ничего не сказать. Заплатив в общей сложности 3 млн. предоплаты, приехать на объект, в свой строящийся дом, который был таким притягательным для него на предоставленных ему визуализациях и увидеть вот это вот. Строители по собственному убеждению решили изменить конструктив дома. И вместо дома из профилированного бруса построить дом из керамзитобетонных блоков, это конечно привело и к другим конструктивным изменениям.

В добавок деревянное перекрытие подполья они заменили на плиту по грунту.

Но, главная беда заключалась не в этом. Я уже говорил об этом выше, участок находится в новом КП, в котором вместо дорог условные направления в виде столбов. И строители, не разобравшись должным образом где дорога, не смогли правильно сориентироваться на местности (вот тебе и профессиональные участники рынка). И залили фундамент ориентировав въезд в гараж на смежный участок выходящий на другую улицу (со стороны заднего фасада).

Осознав свою ошибку, ну или может быть им кто то подсказал, они решили залить пол по грунту, а дом построить в нужную сторону. То есть, они приняли решение строить стены не на фундаменте, а по сути частично на фундаменте, частично прям по полу.

И начали возводить стены из керамзитобетонных блоков. Которые разумеется начали трещать еще не достигнув высоты одного этажа.

Чем было продиктовано решение изменить материал стен - неизвестно, так как Застройщик исчез в туман, перестал выходить на связь, офис переехал в неизвестном направлении, то и пояснений от них добиться не удалось. Впереди Заказчика ждет долгий суд.

К чему я это все. Если вы оплачиваете работы и услуги, которые тем более стоят существенных денег, то необходимо хоть как то контролировать этот процесс, а не пускать все на самотек. Благо сейчас с развитием интернета фотоотчет можно отправлять в любую точку планеты, где бы вы не находились. Лучше конечно нанять независимого специалиста, который проконтролирует процесс, но таких на словах "Львов Толстых" сейчас развелось также не маленько.

И главное правило. На стройке если невозможно начать работу без аванса, то никогда не оплачивайте работы целиком. Оплачивайте поэтапно, чтобы минимизировать возможные потери.

Спасибо, что дочитали!