Найти в Дзене
INMYROOM

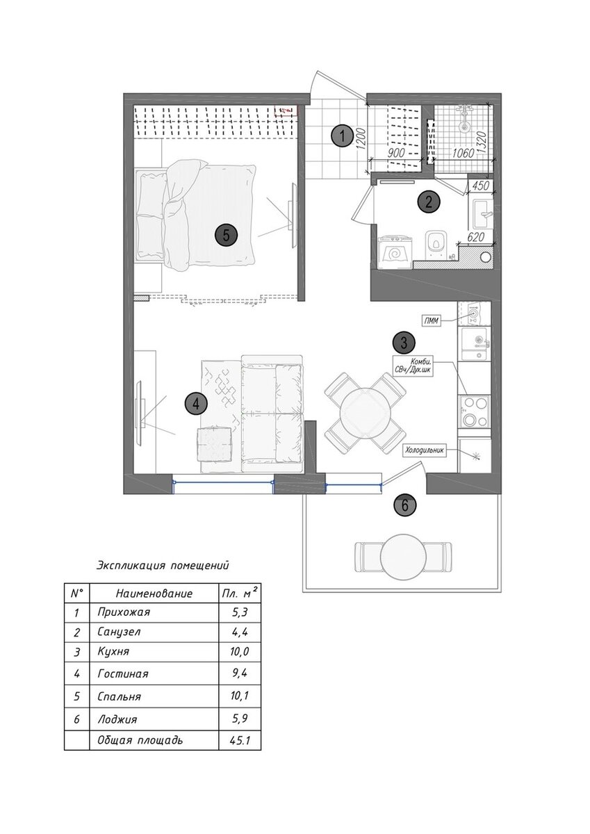
Как из типовой однушки сделали комфортную студию 45 м²

Вкратце Евгения Чучарина и Александр Родин из студии BLACK WALL Interior оформили студию площадью 45 кв. м в новостройке. Квартира планировалась для сдачи в аренду, а в дальнейшем — для дочки заказчиков. Дизайнеры предложили сделать перепланировку и превратить стандартную однушку в стильную и удобную студию с изолированной спальной зоной. Подробности Изначально эта квартира была с довольно стандартной планировкой: небольшая кухня со входом из коридора, неудобная прихожая, из которой можно было попасть в жилую комнату, и стандартный блок санузла и ванной. Дизайнеры предложили полностью переделать пространство и объединили кухню и комнату. Получилась небольшая кухня-гостиная, а спальню отделили от общей зоны красивой раздвижной перегородкой с белыми матовыми стеклами. Кухня небольшая, но функциональная, мебель разместили линейно. Есть вся необходимая бытовая техника — холодильник, ПММ, варочная панель, духовой шкаф, совмещенный с СВЧ. Фасады сделали двух цветов: нижние шкафы — в шп
Оглавление

Вкратце

Евгения Чучарина и Александр Родин из студии BLACK WALL Interior оформили студию площадью 45 кв. м в новостройке. Квартира планировалась для сдачи в аренду, а в дальнейшем — для дочки заказчиков. Дизайнеры предложили сделать перепланировку и превратить стандартную однушку в стильную и удобную студию с изолированной спальной зоной.

 📷
📷

Подробности

Изначально эта квартира была с довольно стандартной планировкой: небольшая кухня со входом из коридора, неудобная прихожая, из которой можно было попасть в жилую комнату, и стандартный блок санузла и ванной. Дизайнеры предложили полностью переделать пространство и объединили кухню и комнату. Получилась небольшая кухня-гостиная, а спальню отделили от общей зоны красивой раздвижной перегородкой с белыми матовыми стеклами.

 📷
📷

Кухня небольшая, но функциональная, мебель разместили линейно. Есть вся необходимая бытовая техника — холодильник, ПММ, варочная панель, духовой шкаф, совмещенный с СВЧ.

 📷
📷

Фасады сделали двух цветов: нижние шкафы — в шпоне дерева, верхние — однотонные графитовые. Столешницу и кухонный фартук выполнили из одного материала. Сантехника и фурнитура в черном цвете.

 📷
📷

 📷
📷

Обеденный стол фирмы «TOK» стал настоящим украшением и отлично вписался в общую концепцию.

Все стены в квартире окрашены в светло-серый оттенок краски Little Greene. Несущую колонну со стороны гостиной выделили рейками с вертикальным узором и дополнили графичным светильником.

 📷
📷

 📷
📷

 📷
📷

Раздвижные перегородки с черным каркасом дополнили матовыми белыми стеклами — они позволяют создать нужную степень приватности. В закрытом виде они больше напоминают высокий шкаф.

 📷
📷

В спальне изголовье кровати декорировано деревянными геометрическими панелями. Они придают динамики интерьеру, делают пространство интереснее и фактурнее. На панелях удобно размещать искусство — картины можно менять по настроению.

В санузле сделали душ, от ванной отказались. Такое решение помогло выделить площадь для шкафа в прихожей. Также предусмотрено место для стирально-сушильной машины.

Больше фото тут:

Как из типовой однушки сделали комфортную студию 45 м²