Найти в Дзене
INMYROOM

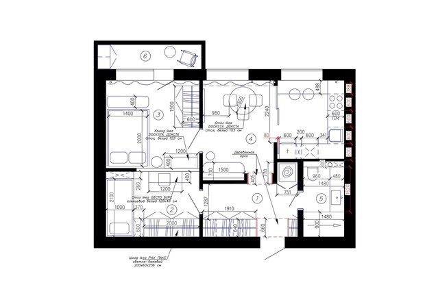
Невероятно стильная и функциональная кухня 6,6 м²

Дизайнер Анна Акшевская сделала перепланировку в двухкомнатной квартире, превратив ее в трешку. В результате ремонта обустроили более просторную кухню-гостиную, которую зонирует стеклянная перегородка в стиле лофт.

 📷
📷

Чтобы упростить передвижение по квартире, отказались от обычных дверей и сделали арочные проемы, а кухню отделили от гостиной раздвижной перегородкой. Газ убрали и поставили электрическую плиту — так безопаснее.

 📷
📷

Кухню изготовили на заказ. В шкафах-колоннах находится встроенная техника на удобной высоте. Верхние шкафы расположили по центру стены, зеркальные цветные фасады смотрятся необычно и расширяют пространство. Рамка фасадов черного цвета перекликается с черными элементами на раздвижной перегородке.

 📷
📷

Для кухонного фартука и пола взяли керамогранит с рисунком терраццо. Обратите внимание, что масштаб рисунка на полу немного больше, чем на фартуке. За счет того, что фасады кухни однотонные, без фрезеровки и рамок, яркий узор не раздражает.

Подоконник выполнили из искусственного камня и увеличили ширину, чтобы сделать барную стойку у окна. Радиатор немного перенесли в сторону, чтобы оставить удобное пространство для ног.

Больше фото тут:

Невероятно стильная и функциональная кухня 6,6 м²