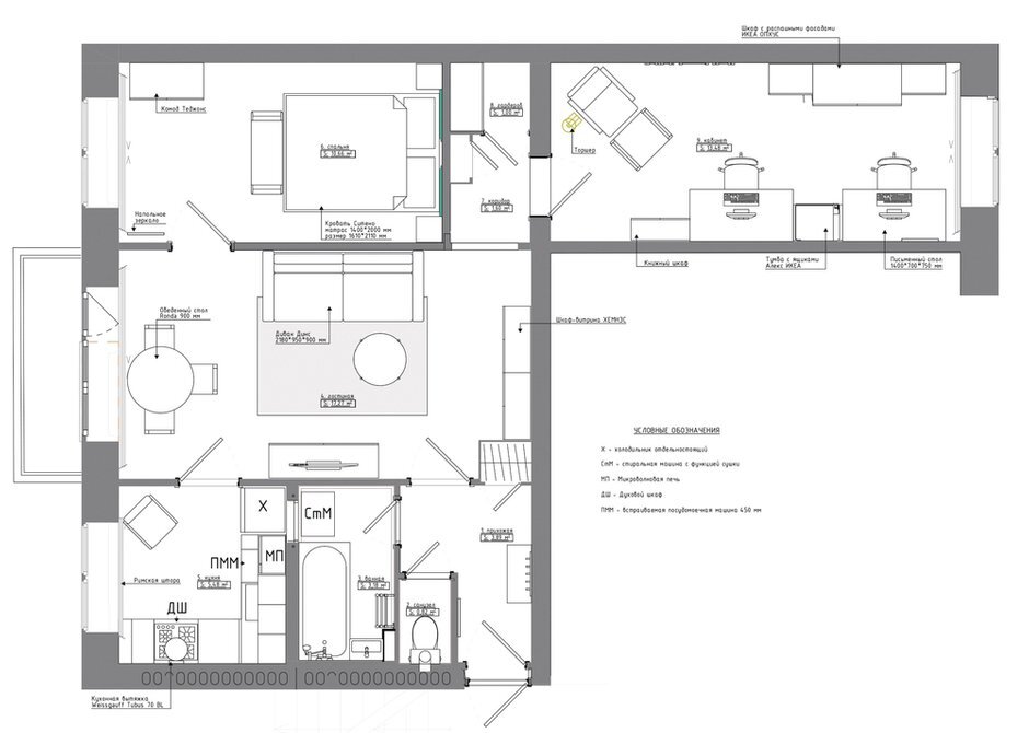
Вкратце Владелица квартиры — девушка, дизайнер мебели на заказ. Ее производство комплектует мебелью практически все объекты дизайнера Полины Андреевой. Заказчица получила квартиру в наследство от своего отца-архитектора, который своими силами на протяжении десяти лет делал ремонт и жил в ней. Задача дизайнера была при ограниченном бюджете сделать квартиру уютной с легким намеком «старины», вписать уже существующие двери, паркет, плитку. Одно из важных пожеланий заказчицы — оставить существующий потолок и отказаться от верхнего точечного света. Подробности Перепланировка была уже выполнена отцом заказчицы: он закрыл вход на кухню, тем самым увеличил ванную комнату. Кухня осталась на своем месте, в квартире газ, поэтому двери оставили. Здесь три комнаты: проходная гостиная, спальня и кабинет. Гарнитур угловой. Напротив входа отказались от навесных шкафов, чтобы не загромождать пространство. Разместили только вытяжку в форме цилиндра, а фартук выложили практически до потолка, сделали
Хрущевка с душой: камерный интерьер с нотками старины (смотрите фото до и после)
9 апреля 20239 апр 2023
20 тыс
2 мин
