Найти в Дзене
INMYROOM

Как дизайнер преобразила квартиру в старом фонде для себя (фото до и после)

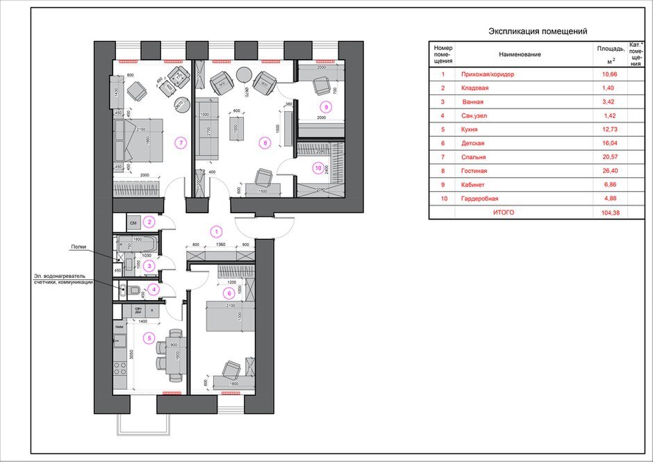
Вкратце Эту светлую и уютную квартиру архитектор и дизайнер Ольга Золотухина оформила для себя и своей семьи — мужа, дочери и собаки породы французский бульдог. Идея была спроектировать комфортное и эргономичное пространство для трех человек, а также организовать достаточное количество мест для хранения. Вдохновением послужили исторический статус дома и его особенная атмосфера. Подробности Изначально гостиная в квартире была проходной: через нее попадали в небольшую вытянутую комнату шириной 2 м и длиной 6 м. Помещение было абсолютно нефункциональным. Дизайнер разделила его примерно пополам, получив таким образом два помещения — кабинет для хозяина квартиры и гардеробную. Чтобы гостиная выглядела центральным, парадным помещением, межкомнатные двери установили симметрично относительно центральной оси комнаты. В отделке использовали композиции из молдингов и потолочные карнизы, подчеркивающие высоту потолков и масштабность интерьера. Все стены покрашены английскими красками Little
Оглавление

Вкратце

Эту светлую и уютную квартиру архитектор и дизайнер Ольга Золотухина оформила для себя и своей семьи — мужа, дочери и собаки породы французский бульдог. Идея была спроектировать комфортное и эргономичное пространство для трех человек, а также организовать достаточное количество мест для хранения. Вдохновением послужили исторический статус дома и его особенная атмосфера.

 📷
📷

Подробности

Изначально гостиная в квартире была проходной: через нее попадали в небольшую вытянутую комнату шириной 2 м и длиной 6 м. Помещение было абсолютно нефункциональным. Дизайнер разделила его примерно пополам, получив таким образом два помещения — кабинет для хозяина квартиры и гардеробную. Чтобы гостиная выглядела центральным, парадным помещением, межкомнатные двери установили симметрично относительно центральной оси комнаты.

 📷
📷

 📷
📷

В отделке использовали композиции из молдингов и потолочные карнизы, подчеркивающие высоту потолков и масштабность интерьера. Все стены покрашены английскими красками Little Greene. В колористике спокойные тона перекликаются с яркими цветовыми акцентами, отражающими настроение и характер хозяев квартиры.

 📷
📷

Центральным помещением является парадная гостиная, которая делится на зону для гостей и небольшое рабочее место. Здесь разместили яркие бордовые кресла и изумрудный диван. Золотые оттенки в предметах мебели и декора привносят элемент торжественности в пространство.

 📷
📷

 📷
📷

 📷
📷

Яркие сложные оттенки дивана в гостиной перекликаются с цветом стен в кабинете. Сложный зеленый оттенок дополнили мебельным гарнитуром из натурального дерева — дизайн для тех, кто хочет ощутить аристократический дух. Стол выполнен по индивидуальному заказу, имеет интересную систему открывания ящиков. Несмотря на свой, казалось бы, классический дизайн, абсолютно функционален и удобен для работы на компьютере.

 📷
📷

 📷
📷

 📷
📷

Кухня осталась в прежних границах. Плита газовая: подвод газа со счетчиком расположен низко, доступ к нему осуществляется через нижний ящик кухонного гарнитура. Мебель изготовили на заказ. Есть встроенная посудомоечная машина, встроенная газовая плита. Духовой шкаф и микроволновка электрические, расположены рядом с холодильником. Холодильник отдельностоящий. Контрастным акцентом стал блок под электрические приборы.

 📷
📷

На кухне и в жилых комнатах лежит дубовый паркет теплого оттенка.

 📷
📷

 📷
📷

Спальню зонировали с помощью цвета и латунных полос, а также разных сценариев освещения. Этот дизайнерский прием помог придать пространству более уютный масштаб для человека.

 📷
📷

 📷
📷

Все системы хранения изготавливались под заказ по эскизам дизайнера. Да, это увеличило бюджет реализации, но незначительно. В каждой комнате есть шкаф для личных вещей: в спальне он разделен на две зоны для хозяина и хозяйки, посередине система выдвижных ящиков для белья.

У окна в спальне расположена ниша — это заложенный проход в другое здание. По обеим сторонам квартиры имеются заложенные проходы в другое здание, свидетельствующие об первоначальной планировке анфиладного типа.

Ольга Золотухина — творческий человек, не равнодушна к живописи. Картину в спальне она написала сама, так как не видела там ничего другого. Так появился необычный портрет семьи. В спальню также удачно вписалась скульптурная копия любимого питомца.

При планировке детской хотелось, чтобы она была универсальной — без лишней детской мебели, удобно трансформируемая в дальнейшем в подростковую, с полноценной кроватью. «Убираем балдахин, птичек и получаем уже взрослую сдержанную спальню. Небольшой детский столик и стеллаж можно заменить на рабочую зону. При желании стены легко перекрасить, — рассказывает дизайнер. — Это наш основной принцип проектирования детских: ничего лишнего, четкое планирование на будущее».

Система хранения в прихожей состоит из шкафа и консоли: не хотелось акцентировать внимание на этих предметах мебели, поэтому они выполнены в цвете стен.

Больше фото тут:

Как дизайнер преобразила квартиру в старом фонде для себя (фото до и после)