Добавить в корзинуПозвонить
Найти в Дзене
INMYROOM

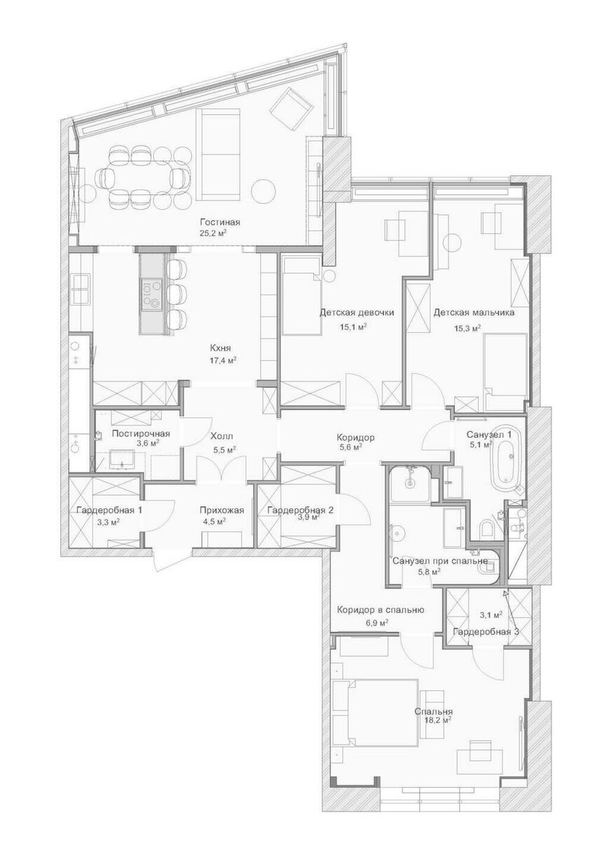
Из бетонной коробки в стильную и комфортную квартиру для семьи

Вкратце Команда студии Pakina Design оформила очень стильную, уютную, комфортную квартиру для семьи с двумя детьми. Из окна гостиной на 30 этаже открывается потрясающий вид на «Триумф-палас» — это стало решающим аргументом при выборе квартиры. Заказчица хотела сохранить это впечатление воздушности и объема, когда она впервые открыла дверь в «бетонную коробку». Поэтому первым условием стало отсутствие перегородок между прихожей и окном в гостиной, расстояние между которыми 11 метров. Перед дизайнерами стояла задача — при проектировании квартиры оставить пространство воздушным и пронизанным светом. Подробности Перепланировка была масштабной и потребовала дополнительных согласований. Главная идея планировки парадной части квартиры — это анфилада из прозрачных дверей и порталов, обрамляющих вид из огромных окон и ведущих от самой прихожей в гостиную. Это позволило сохранить воздушность основной части квартиры, при этом получить несколько функциональных помещений. Перепланировка продумыва
Оглавление

Вкратце

Команда студии Pakina Design оформила очень стильную, уютную, комфортную квартиру для семьи с двумя детьми. Из окна гостиной на 30 этаже открывается потрясающий вид на «Триумф-палас» — это стало решающим аргументом при выборе квартиры. Заказчица хотела сохранить это впечатление воздушности и объема, когда она впервые открыла дверь в «бетонную коробку». Поэтому первым условием стало отсутствие перегородок между прихожей и окном в гостиной, расстояние между которыми 11 метров. Перед дизайнерами стояла задача — при проектировании квартиры оставить пространство воздушным и пронизанным светом.

 📷
📷

Подробности

Перепланировка была масштабной и потребовала дополнительных согласований. Главная идея планировки парадной части квартиры — это анфилада из прозрачных дверей и порталов, обрамляющих вид из огромных окон и ведущих от самой прихожей в гостиную. Это позволило сохранить воздушность основной части квартиры, при этом получить несколько функциональных помещений.

Перепланировка продумывалась так, чтобы у каждого члена семьи было свое пространство. Для родителей была отведена отдельная приватная часть квартиры со своими гардеробной и санузлом. А для двух детей пришлось разделить большую комнату с одним широким окном на две части.

 📷
📷

Хозяйка обожает готовить, при этом любит быть в кругу семьи, поэтому доступ в кухню есть из холла и из зала. Кухня имеет три основных зоны. Зона готовки оформлена в пыльно-розовом оттенке, состоит из двух рабочих поверхностей друг напротив друга. Одна часть в виде острова с имитацией барной стойки — она закрывает плиту от тех, кто проходит мимо.

 📷
📷

Ящики в острове на немецких доводчиках, с открыванием от нажатия. Фасады на острове рельефные с имитацией реек. Из техники есть индукционная варочная поверхность со встроенной вытяжкой и шкаф для подогрева посуды.

Напротив острова в нише расположена часть гарнитура с рабочей поверхностью и мойкой с измельчителем. Посудомоечная машина на 60 см и удобные ящики для сортировки мусора предусмотрены в нижней части кухни. Фасады имеют простую неоклассическую филенку, объединяющую несколько дверок сразу. Верхние дверки открываются гармошкой в стороны — это очень удобно.

 📷
📷

Вторая кухонная зона — это высокие шкафы нежно-голубого цвета со встроенным холодильником, отдельной морозильной камерой, духовым шкафом и СВЧ. Там же сделана высокая выездная колонна 30 см для круп и других продуктов.

Третья зона — для хранения продуктов и красивой посуды напротив острова, также решена в голубом цвете с неоклассическими фасадами. Витрина в центральной части с подсветкой и ниша с зеркальным фартуком для красивой инсталляции делают эту зону кухни очень изысканной.

 📷
📷

 📷
📷

Зонирование в парадной части квартиры получилось за счет порталов. Кухня и гостиная разделены условно двумя порталами со стеклом теплого серого цвета. Приватная часть квартиры отделена коридором со своим цветовым решением дверей глубокого синего оттенка. Также различается паркетная доска из дуба: в парадной части она уложена французской елочкой, а в спальнях это более спокойная палубная укладка.

 📷
📷

 📷
📷

 📷
📷

Окна идут вдоль всей стены с поворотом, подоконник делали на заказ из шпонированного МДФ с прорезями для вентиляции. Под окнами экран из листов МДФ, окрашенный в тон стен. В оконную фрамугу врезан бризер, у заказчиков есть склонность к сезонной аллергии, он не только фильтрует воздух, но и охлаждает его.

 📷
📷

 📷
📷

«Дверные порталы я считаю украшением квартиры. Стекло с эффектом воды, тонкие строгие раскладки и мягкие скругленные углы. Когда сквозь стекло проходит солнечный свет, все пространство словно опускается под воду», — делится Мария Пакина.

 📷
📷

В прихожей на полу плитка с кантом, она уходит в гардеробную. На стенах — краска Little Greene. Молдинг, плинтус и карниз Orac Decor: лепнина нестандартная, так как собиралась из частей и имитирует более широкие линии за счет покраски — этот прием использован во всех помещениях.

Небольшой холл — место пересечения приватной и парадной частей квартиры. Он специально выкрашен в более яркий синий оттенок, чтобы соединить все помещения. Здесь и далее в сторону гостиной положили паркетную доску, она покрыта маслом, тактильно очень приятна и проста в уходе. Дверные проемы в холле выкрашены в два цвета и имеют разные формы. Двойные стеклянные двери и арочный портал в кухню — в сером оттенке, а дверь в построчную и арка в коридор — в синем цвете.

 📷
📷

 📷
📷

 📷
📷

 📷
📷

 📷
📷

«Хозяйке понравилась винтажная люстра из синего стекла и латуни, которую мы выбрали в холл. Это люстра-каскад СССР «Кварц» 80-х годов. После этого мы решили оставшийся свет найти в винтажных магазинах. В прихожей висит люстра от немецкой фабрики Wofi Leuchten. В спальне — люстра «Северное Сияние» времен СССР. Причем ее мы купили дважды! Первая была целая, но латунь сильно почернела, а разбирать и чистить долго и дорого. Тогда мы купили новую, предварительно запросив увеличенное фото металла. Свет от нее мягкий и с эффектом расходящихся лучей, очень атмосферно. Бра в прихожей, свет над кухней и люстра в гостиной и в детских — современные. Похожие можно приобрести на маркетплейсе INMYROOM», — рассказывает дизайнер.

 📷
📷

 📷
📷

«При оформлении комнаты для сына заказчиков хотелось создать пространство для учебы и занятий музыкой. Вдохновение для подрастающего музыканта — это уплывающие за горизонт улицы Москвы, усыпанные по вечерам огнями. Как раз у окна расположились пианино и рабочая зона. Кровать уютно встала в нише справа от входа. Коллекция ретромобилей и «Лего» теперь живет за стеклом в ярко-желтом стеллаже-витрине», — рассказывает Мария Пакина.

На стенах в детской дочери покраска в бежево-розовых тонах с контрастным карнизом и плинтусом зеленого оттенка. Напротив кровати — панно Affresco с полевыми травами и цветами. Подоконник так же, как и в гостиной, из дубового шпона на МДФ, он достаточно широкий — 55 см — и на нем можно удобно сидеть и смотреть в окно.

Светильник в виде шара со стеклянными бусинами купили в INMYROOM, он очень хорошо сочетается с панно. Система хранения в комнате встроенная, с обеих сторон от входа и сверху, образует единую композицию с дверью. Даже выключатель света разместили на стенке шкафа при входе. Ручки покупали отдельно в Zara home.

В квартире два санузла и постирочная. Один из санузлов находится рядом с хозяйской спальней. Вместо ванны сделали душевую. Для отделки использовали итальянскую плитку под мрамор и мелкоформатную испанскую плитку. В душевой и в нише для унитаза углы скруглены. Плитка с глянцевым неровным покрытием красиво переливается на круглых поверхностях и придает мягкости этому помещению. Светлые, почти белые стены и пол делают этот санузел очень легким и воздушным, а если открыть дверь в спальню, то сюда попадает дневной свет.

Больше фото тут:

Из бетонной коробки в стильную и комфортную квартиру для семьи