Добавить в корзинуПозвонить
Найти в Дзене

Доли в квартирах, кто рискнет? Часть 1.

🤞купить квартиру, разделить на студии, провести в каждую санузел и VOILA , каждую из студий можно продать дороже, или если их сдать ,то выгода несколько больше, чем сдать просто квартиру. Особенно, это сейчас пользуется спросом в Москве и в Санкт-Петербурге. Конечно, ведь можно купить целую отдельную студию ,метров этак от 9, со всеми удобствами, с московской пропиской и недалеко от метро. По стоимости даже привлекательной, от 3'5 млн.рублей. В том же подъезде стандартной панельки года 1978, 1 комнатная квартира будет стоить от 7 млн, рублей. И даже есть возможность приобрести это чудо в ипотеку (Росбанк, например). Еще один плюс МОСКОВСКАЯ ПЕНСИЯ, ты можешь купить долю, сдавать, прописаться сам, а потом получить МОСКОВСКУЮ ПЕНСИЮ и прочие плюшки. И для многих это реально привлекательный вариант - лучше, чем платить аренду какому-нибудь дяде👍Из стандартной трёхкомнатной хрущевки получаются 4 студии🤔да да, все правильно именно 4 студии, так как из кухни тоже делают отдельную студ
Оглавление
Это я в рабочей форме: каска и жилетка, без них на стройки не пускают.
Это я в рабочей форме: каска и жилетка, без них на стройки не пускают.

Итак, есть теперь такой ВОЛШЕБНЫЙ БИЗНЕС

🤞купить квартиру, разделить на студии, провести в каждую санузел и VOILA , каждую из студий можно продать дороже, или если их сдать ,то выгода несколько больше, чем сдать просто квартиру.

Особенно, это сейчас пользуется спросом в Москве и в Санкт-Петербурге.

Конечно, ведь можно купить целую отдельную студию ,метров этак от 9, со всеми удобствами, с московской пропиской и недалеко от метро. По стоимости даже привлекательной, от 3'5 млн.рублей. В том же подъезде стандартной панельки года 1978, 1 комнатная квартира будет стоить от 7 млн, рублей. И даже есть возможность приобрести это чудо в ипотеку (Росбанк, например).
Еще один плюс МОСКОВСКАЯ ПЕНСИЯ, ты можешь купить долю, сдавать, прописаться сам, а потом получить МОСКОВСКУЮ ПЕНСИЮ и прочие плюшки.

И для многих это реально привлекательный вариант - лучше, чем платить аренду какому-нибудь дяде👍Из стандартной трёхкомнатной хрущевки получаются 4 студии🤔да да, все правильно именно 4 студии, так как из кухни тоже делают отдельную студию.

В ЧЕМ ПОДВОХ ❓❓❓

А в том, что по документам вы получаете право собственности на ДОЛЮ в квартире. Ну например 33% из 💯. Ну и,обычно, плюсом согласование между содольщиками о праве пользования помещениями. Ну в принципе, неплохо. У вас отдельное жилье, после работы есть возможность закрыть за собой дверь, залезть в душ и лечь перед телевизором. Есть ещё нюансы, которые вытекают из такого права собственности как ДОЛЯ: на продажу,прописку и пр, надо согласие любимых соседей.

И, наверное, многих и эти условия устраивают. Но есть ещё много НО🙈Если наших хозяев прекрасных студий вполне устраивает их положение, ведь это гораздо лучше, чем коммуналка🙄 то соседей по парадной и государство такой расклад устраивает не всегда. О чем я и расскажу в следующем посте.

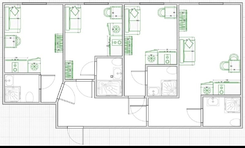
На фото пример перепланировок👇

4 студии, переделанные из обычной хрущевки
4 студии, переделанные из обычной хрущевки

+79043234181 Наталья
@Nata_broker_rielt