Добавить в корзинуПозвонить
Найти в Дзене
Конструктор Ольга

Школьные недельки

Отчитаюсь кратко: жива, не пропала, пашу в поте лица под девизом "Сажай, что есть" относительно школы. Судя по всему, это вообще фраза последнего года, потому что мы постоянно, чтобы прибить дату выдачи гвоздями, выдаем промежуточное, чтобы потом спокойно доделать и довыдать заказчикам. Подход не очень, но куда деваться. Что характерно - конторы разные, ГИПы разныер, заказчики разные - а трюк повторяется раз за разом. Ну что ж, один фокус мы выучили, )) Все это очень напоминает финальные кадры фильма "Горячие головы" Суть в том, что летчик сажает самолет, но у него то крылья отваливаются, то хвост. И герой Лесли Нильсена кричит с земли "Топпер, сажай, что есть!". Вот и мы с коллегами - блин Топпер. Объясню: конструкторы мыслят чертежами, а конечный результат нашего труда - альбом чертежей. Сейчас, по школе я гоню большой объем, где расписывается каждый чих (каждое сопряжение, узелок, с разных видов). Считается, что я тем самым облегчаю работу строителям, тк все решения приняты за н

Отчитаюсь кратко: жива, не пропала, пашу в поте лица под девизом "Сажай, что есть" относительно школы. Судя по всему, это вообще фраза последнего года, потому что мы постоянно, чтобы прибить дату выдачи гвоздями, выдаем промежуточное, чтобы потом спокойно доделать и довыдать заказчикам. Подход не очень, но куда деваться.

Что характерно - конторы разные, ГИПы разныер, заказчики разные - а трюк повторяется раз за разом. Ну что ж, один фокус мы выучили, ))

Все это очень напоминает финальные кадры фильма "Горячие головы"

Скрин из фильма
Скрин из фильма

Суть в том, что летчик сажает самолет, но у него то крылья отваливаются, то хвост. И герой Лесли Нильсена кричит с земли "Топпер, сажай, что есть!".

Вот и мы с коллегами - блин Топпер.

Объясню: конструкторы мыслят чертежами, а конечный результат нашего труда - альбом чертежей. Сейчас, по школе я гоню большой объем, где расписывается каждый чих (каждое сопряжение, узелок, с разных видов). Считается, что я тем самым облегчаю работу строителям, тк все решения приняты за них и надо просто построить как в проекте. По факту, конечно, все иначе: то строители думают, что знают лучше и гонят отсебятину. То они реально знают лучше и поправляют тупости конструктора. То наша рабочка нафиг никому не нужна, кроме заказчика, потому что строители именно таких зданий именно этим составом выполнили кучу, поэтому наша макулатура им - просто прикрыть нежные места.

Не суть. Формально или реально, но людям нужна рабочка, а заказчику, чтобы мы уложились в сроки. Однако, есть мой любимый нюанс - смежники.

Представьте. У тебя срок месяц, ты спокойно пилишь свои 4 альбома (АС1 - фундаменты, АС3 - крылечки, АС4 - площадки, мусорки, фундаменты под КНС, насосную, септик), наконец ТС (теплотрасса: лотки, неподвижные опоры, тепловые камеры).

Работаешь себе спокойно, никого не трогаешь. Потихоньку радуешься, что 6 листов ТС готовы, 30 листов АС4 готовы, 40 листов АС3 (не люблю входные группы) в муках и сопротивлении, но родились. И осталось тебе самое вкусное, понятное, родное, любимое - фундаменты.

Спуск в подвал
Спуск в подвал

А фундаменты, чтобы вы понимали, это 2 листа говорильни и геологии, а потом:

- план расположения подушек (вон они, на разрезе спуска, самые раздутые элементы, снизу);

- план раскладки ФБС (фундаментные блоки сплошные) по 1му ряду

- план раскладки ФБС (фундаментные блоки сплошные) по 2му ряду

- план раскладки ФБС (фундаментные блоки сплошные) по 3му ряду

- план раскладки ФБС (фундаментные блоки сплошные) по 4му ряду

- развертки по каждому ряду (в идеале)

- разрезы по фундаментам

Фрагмент раскладки по подушкам
Фрагмент раскладки по подушкам
Раскладка блоков по 1 му ряду. Заценита масштаб - это ватман. Прям вижу радость строителей, когда они с этой бумаженцией носятся по стройке, склоняя меня на все лады
Раскладка блоков по 1 му ряду. Заценита масштаб - это ватман. Прям вижу радость строителей, когда они с этой бумаженцией носятся по стройке, склоняя меня на все лады
Развертка по стене
Развертка по стене
Разрез по наружной
Разрез по наружной

И все со всем должно "биться", опираться, пересекаться. По сути - один огромный конструктор лего, ) Так вот, представьте отчаянье конструктора, когда ты закончил свой титанический труд, все фундаменты разложил, посчитал, в таблицы уложил, чертовы размеры (самое долгое) нанес ... и появляются смежники, которые делают из твоих стен сыр, блин

ФБСки неделю назад (без размеров и обозначений)
ФБСки неделю назад (без размеров и обозначений)
Задание от коллег
Задание от коллег

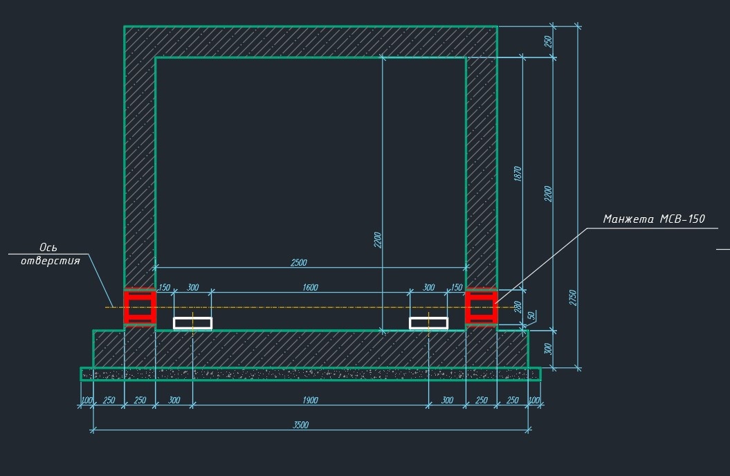
Что характерно, отверстия ВСЕГДА появляются в САМЫЙ последний момент. Это непередаваемо - понимать, что у тебя сутки на то, чтобы перебрать огромный проект, где каждый лист - ватман.

Для меня это звучит так: "дорогая Оля, фиг тебе, а не тренировки, семья, сон, сноси нафиг раскладку верхних рядов и заново веселись с перевязкой блоков. А потом все сведи, пересчитай, проверь. Короче, Золушка, вот тебе три мешка гороху".

Поэтому да, мы сажаем, что есть, чертыхаясь и надеясь потом докинуть листы или заменить что-то.

Ну и силы небесные забросили меня неделю назад на совещание смежников, где я узнала кучу забавного:

- дайте мне 400м на "отводики" (канализации);

- я вам скажу, что электрика канализации - не товарищ. Уберите от меня Марию и двигайте проем; -

смотрите, у вас тут трубы пересеклись;

- Сергей идет с двух сторон коридора. Мы не можем сдвигать Сергея. Давайте двинем Марию с Дмитрием. Пусть Дмитрий Сергеевы трубы как-то обходит;

- надо мои трубы опускать на 400мм, потому что там Мария идет, я в нее попадаю, надо чтобы она спокойно прошла. Поднимите Марию;

- я прям по красному коробу шпарю? Или огибаю трубы Сергея и уворачиваюсь от коробов Марии?

- можно Дмитрия отодвинуть от моих стояков?

- я могу идти трубой вот тут? Или так не ходят? (то же мне, шахматы)

- подвиньтесь, пожалуйста, от моих опусков. Опуски - в приоритете!

Короче, сводный план сетей - адская головоломка, если честно. Люди разводят все виды труб, кабелей, лотков и приямков как плохо расставшихся супругов на свадьбе любимого сына.

Сводный план сетей
Сводный план сетей

Ну а еще в меня продолжают швырять забавные заказы:

  • Ольга, год назад вы сделали мне фундаменты под баню, все прекрасно, давайте теперь сделаем ФУНДАМЕНТЫ ПОД МАНГАЛ. Под мангал!! О боги, вам точно надо просчитать такоэ?? Не самое ответственное сооружение, если честно
  • У нас крыша, мы хотим на ней бассейн, посчитаете?
  • Хочешь фигуры в парке 5м высотой?
Мне эти фигуры кто только не забрасывает уже неделю, с разных сторон
Мне эти фигуры кто только не забрасывает уже неделю, с разных сторон
  • возьмешь насосную на вечномерзлых?
  • давай возьмем крышу около Кремля, правда там памятник и сто тысяч ограничений

Короче, весна пришла, сезон понесся. А мне бы зимнее добить, (((

#будниконструктора #дневникконструктора #проектированиезданий