Добавить в корзинуПозвонить
Найти в Дзене
Реконструкция

Пристройка к дому. Реконструкция с увеличением площади + 65 м2.

Многие люди, переехавшие в загородные дома, со временем обнаруживают, что их новое жильё имеет некоторые недостатки. Это заставляет их искать способы улучшить ситуацию. Большинство людей обращаются к интернету в поисках исполнителей, но есть те, кто предпочитают искать только по рекомендациям, и у них есть на это свои причины. Именно о таком случае я хочу рассказать вам. К нам обратился клиент по рекомендации. Он вкратце описал ситуацию: у него есть загородный дом в прекрасном месте, который его почти во всём устраивает, за исключением одного момента. На первом этаже расположена кухня-столовая, где проходят встречи с друзьями, но она слишком маленькая, и иногда становится тесно. Требуется увеличить площадь кухни-столовой. А на втором этаже нужно помещение для оранжереи. Он хотел, чтобы мы предложили ему концепцию и разработали проект, по которому грамотно, качественно выполнили бы строительные работы по возведению пристройки. Отделка внутри не предполагалась, поскольку в дальнейшем он
Оглавление

Многие люди, переехавшие в загородные дома, со временем обнаруживают, что их новое жильё имеет некоторые недостатки. Это заставляет их искать способы улучшить ситуацию. Большинство людей обращаются к интернету в поисках исполнителей, но есть те, кто предпочитают искать только по рекомендациям, и у них есть на это свои причины. Именно о таком случае я хочу рассказать вам.

История, предшествовавшая реконструкции

К нам обратился клиент по рекомендации. Он вкратце описал ситуацию: у него есть загородный дом в прекрасном месте, который его почти во всём устраивает, за исключением одного момента. На первом этаже расположена кухня-столовая, где проходят встречи с друзьями, но она слишком маленькая, и иногда становится тесно. Требуется увеличить площадь кухни-столовой. А на втором этаже нужно помещение для оранжереи. Он хотел, чтобы мы предложили ему концепцию и разработали проект, по которому грамотно, качественно выполнили бы строительные работы по возведению пристройки. Отделка внутри не предполагалась, поскольку в дальнейшем он планировал разработать дизайн-проект и самостоятельно завершить отделку.

Альбом - Дом до реконструкции

Дом был выполнен со вкусом и на высоком уровне, что не могло не вызвать у нас положительных эмоций. Клиент желал присоединить к зданию необходимые помещения таким образом, чтобы пристройка не выделялась на фоне основного здания, а стала его гармоничным продолжением. При этом все работы по реконструкции должны быть выполнены в строгом соответствии с разработанной документацией.

Суть его желаний мы поняли, и, поскольку мы такие работы проводим на регулярной основе, то решили взяться за осуществление его желаний.

❗️Наша команда АСК ДОМ профессионально занимается любыми реконструкциями загородных домов и строений. Работаем с 1995 года.

Исходные данные:

• Жилой двухэтажный дом площадью 256 м2.
• Фундамент - ленточный, железобетонный.
• Наружные стены - кладка из керамического рядового кирпича со штукатуркой и окраской.
• Внутренние несущие стены и перегородки - кладка из керамического рядового кирпича.
• Перекрытия - сборные железобетонные.
• Стропильная система - из обрезной доски с устройством подстропильных конструкций из бруса.
• Кровля - мягкая битумная черепица.
• Отопление - автономное, от газовой топочной, расположенной в отдельно стоящем гараже, в непосредственной близости от дома.
• Водоснабжение - от скважины.
• Канализация - в септик.
• Электроснабжение - от поселковых сетей.

Чтобы воплотить желания клиента в реальность, нужно представить ему наглядный образ того, как будет выглядеть результат после проведения работ.

Для этого необходимо разработать проект реконструкции дома.

Мы придумали концепцию архитектурного решения для обновления дома и представили её в виде проекта.

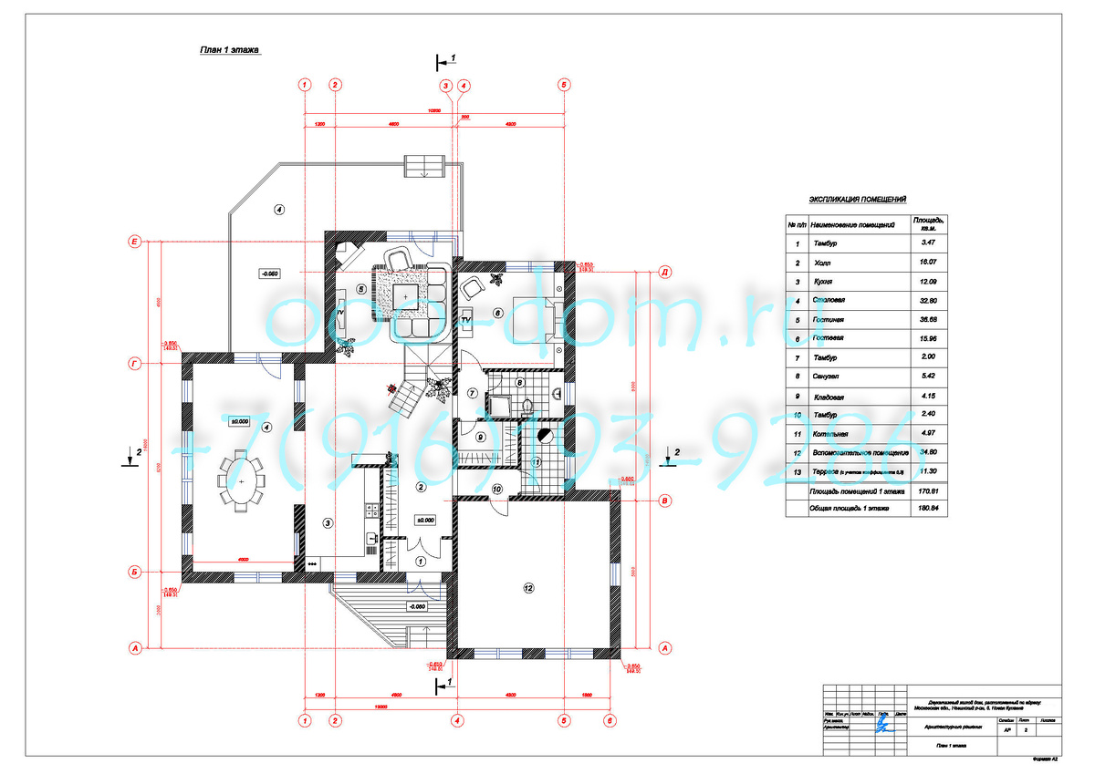
Альбом - Архитектурный проект реконструкции

Хотя расширение здания не было масштабным, мы всё же разработали рабочий проект по запросу клиента.

Альбом - Рабочий проект реконструкции

После того как все проектные работы были выполнены, мы составили строительные сметы и согласовали их, а затем начали реализацию проекта.

Альбом - Процесс реконструкции

Результат реконструкции дома с увеличением площади

Спустя три месяца после начала работ я могу продемонстрировать результат — дом с пристроенными дополнительными помещениями.

Альбом - Дом после реконструкции

В результате проведённых работ заказчик получил:

• Благодаря расширению жилой площади за счёт пристройки, общая площадь дома увеличилась на 65 квадратных метра.
• Благодаря расширению дома, внутри появились новые пространства для гостиной, просторная столовая для приёма гостей, и оранжерея для культивирования экзотических растений.
• Здание с дополнительным строением, которое воспринимается как единое целое.
• Все работы по обновлению дома и его расширению были выполнены одной компанией, специализирующейся в этой области. На все выполненные работы предоставляется гарантия.

Также вы можете посмотреть и другие наши работы по пристройке к различным домам.

✅Подписывайтесь на канал, тут вы найдёте множество полезных сведений о перестройке загородных домов, а также о строительстве, ремонте и дизайне.

Задача моего блога — не пытаться переубедить читателей или навязать им своё мнение. Я делюсь здесь своим опытом в области строительства и размышлениями. Благодарю за понимание.