Добавить в корзинуПозвонить
Найти в Дзене
INMYROOM

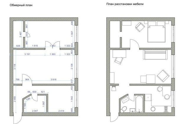
До и после: как преобразили маленькую прихожую в хрущевке

Смотрите и вдохновляйтесь на переделки! Хрущевки, как правило, ассоциируются с небольшой площадью и стандартным, часто устаревшим дизайном. Однако даже в таких квартирах можно создать уютные и стильные пространства. Показываем, как преобразила тесную прихожую дизайнер Мария Качкина в двухкомнатной хрущевке До ремонта стены в прихожей были окрашены в розовый цвет, а полы покрыты рыжей краской — явный признак устаревших дизайнерских решений. Наличие антресоли над дверью придавало входной зоне дополнительную «обремененность», нагромождая пространство. Все это вместе создавало крайне некомфортную и даже подавляющую атмосферу. После проведения ремонта прихожая претерпела удивительное преображение. Стены и потолок теперь окрашены в ярко-синий цвет. Он освежает пространство, придавая ему современный и стильный вид. Насыщенный оттенок уравновесили ламинатом с теплой фактурой дерева. В новой прихожей было решено оставить только самое необходимое. Простые и лаконичные вешалки для одежды и стильн

Смотрите и вдохновляйтесь на переделки!

Хрущевки, как правило, ассоциируются с небольшой площадью и стандартным, часто устаревшим дизайном. Однако даже в таких квартирах можно создать уютные и стильные пространства. Показываем, как преобразила тесную прихожую дизайнер Мария Качкина в двухкомнатной хрущевке

 📷
📷

До ремонта стены в прихожей были окрашены в розовый цвет, а полы покрыты рыжей краской — явный признак устаревших дизайнерских решений. Наличие антресоли над дверью придавало входной зоне дополнительную «обремененность», нагромождая пространство. Все это вместе создавало крайне некомфортную и даже подавляющую атмосферу.

 📷
📷

После проведения ремонта прихожая претерпела удивительное преображение. Стены и потолок теперь окрашены в ярко-синий цвет. Он освежает пространство, придавая ему современный и стильный вид. Насыщенный оттенок уравновесили ламинатом с теплой фактурой дерева.

 📷
📷

В новой прихожей было решено оставить только самое необходимое. Простые и лаконичные вешалки для одежды и стильная консоль для ключей и мелочей не загромождают пространство, а подчеркивают его функциональность. Такой минималистичный подход не только делает прихожую более удобной, но и создает приятное первое впечатление о квартире.

 📷
📷

Ярким акцентом во входной зоне стала цветная картина — ее интересный сюжет создает уютную атмосферу, даря позитивные эмоции с самого порога. Картину дополнили стулом с яркой обивкой и милым ковриком, придающим уют и комфорт.

 📷
📷

Новая прихожая приобрела стильный и яркий вид — она создает позитивное первое впечатление и радует глаз, гармонично сочетая удобство и эстетику.

Сейчас читают: