Добавить в корзинуПозвонить
Найти в Дзене
Каркасник Рулит!

Сколько стоит каркасный дом? Разбираемся в ценах 2025

За 2024 год, согласно данным «ДОМ.РФ», средняя стоимость частного дома в России составляла порядка 5,8 млн рублей. Но как отмечает сама компания, рыночная цена предложения выше на 25-30%. Сколько же на самом деле нужно денег на строительство каркасного дома весной 2025? Делимся с вами небольшим анализом ситуации. Красочные рекламные объявления от Авито до Яндекса обещают построить великолепный коттедж от 1,5 млн. рублей. Мы позвонили в несколько таких компаний и узнали, что входит в стоимость. На словах то же, что и везде. А на самом деле? Непосвященному человеку будет довольно сложно определить из какого пиломатериала соберут дом, какого качества будет утеплитель, применят ли паро-ветрозащиту и гидроизоляцию. Главное, что цена привлекательная. А вот что получается из таких домов, вы можете увидеть в “страшных” видео про каркасники. Средняя стоимость качественного строительства «под ключ» сегодня колеблется в районе 95–110 тысяч рублей за квадратный метр. Сюда входит всё — от фундамен
Оглавление

За 2024 год, согласно данным «ДОМ.РФ», средняя стоимость частного дома в России составляла порядка 5,8 млн рублей. Но как отмечает сама компания, рыночная цена предложения выше на 25-30%. Сколько же на самом деле нужно денег на строительство каркасного дома весной 2025? Делимся с вами небольшим анализом ситуации.

Каркасный дом барн
Каркасный дом барн

Что пишут в объявлениях?

Красочные рекламные объявления от Авито до Яндекса обещают построить великолепный коттедж от 1,5 млн. рублей. Мы позвонили в несколько таких компаний и узнали, что входит в стоимость. На словах то же, что и везде. А на самом деле? Непосвященному человеку будет довольно сложно определить из какого пиломатериала соберут дом, какого качества будет утеплитель, применят ли паро-ветрозащиту и гидроизоляцию. Главное, что цена привлекательная. А вот что получается из таких домов, вы можете увидеть в “страшных” видео про каркасники.

Что говорят участники рынка?

Средняя стоимость качественного строительства «под ключ» сегодня колеблется в районе 95–110 тысяч рублей за квадратный метр. Сюда входит всё — от фундамента до отделки и инженерных коммуникаций. Простая математика подсказывает: за 6 миллионов можно рассчитывать примерно на 55–63 квадратных метра, если говорить о полноценном доме, готовом к заселению.

Почему такая разница в цене и за счет чего?

Первое — качество материалов: пиломатериалы сухой камерной сушки, сертифицированные мембраны, экологичный утеплитель и так далее. Все, чтобы гарантировать длительный срок службы. Подробнее о том, как и чем отличаются пиломатериалы для строительства читайте в нашем следующем обзоре.

Формула успешного дома проста = Чем больше затраты на старте, тем меньше доделок в процессе эксплуатации и расходов на обслуживание.

Второе — квалифицированный персонал: архитекторы, инженеры, руководители работ (прорабы), которые имеют профильное образование, постоянно повышают квалификацию и ответственного подходят к делу. Тоже самое можно сказать и о строителях, которые будут собирать дом.

Третье — юридическая чистота и реальная гарантия застройщика. Застройщик, который дорожит своей репутацией, работает “в белую”, а значит все материалы закупает официально и оплачивает все налоги, НДС и т.п.

Как совместить желания и возможности?

Придется искать компромиссы. Если хочется больше пространства, но бюджет ограничен, один из вариантов — построить дом 100 м², но в состоянии «тёплого контура». Это значит, что каркас, утепление, кровля, окна и двери будут готовы, но отделка и инженерия потребуют дополнительных вложений. Можно выбрать минимальную внутреннюю отделку и базовые инженерные коммуникации, но тогда на фасадные работы бюджета уже не хватит. Или, наоборот, сделать внешний вид завершенным, но пока отложить часть работ внутри.

Если вы идете на компромисс, важно понимать, что экономить стоит не на качестве материалов, а на объемах работ и дополнительных опциях. Использование качественной доски, надежного утеплителя и хороших пленок обеспечивает долговечность и энергоэффективность дома. Компромиссы лучше искать в уровне отделки, инженерных и объемно-планировочных решениях, но не в несущих конструкциях.

Оптимизация - это не урезать нужное, оптимизация проекта - это не строить лишнего

При грамотном планировании бюджета за 6 миллионов можно построить:

  • Двухэтажный дом площадью 80–90 м² с тремя спальнями, но с базовой отделкой внутри.
  • Одноэтажный дом около 70 м², с полной отделкой, инженерией и даже террасой.
  • Дом 90–100 м² с недорогим фасадом и качественной инженерией.
  • Компактный дачный дом с хорошими материалами и максимальным комфортом.

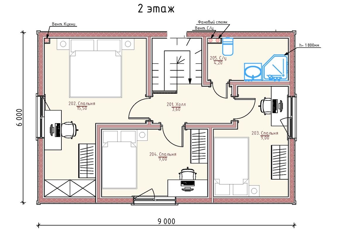
Например, проект, который мы построили нашему клиенту Дмитрию (видеообзор скоро смотрите на нашем канале). Габаритные размеры 6х9 метров, два этажа, 3 спальни, 2 санузла и кухня-гостиная. Дом получился компактный, но вполне вместительный для постоянного проживания семьи из трех человек.

Выводы: построить каркасный дом в бюджете от 6 млн рублей — это реально. При этом не беспокоиться по поводу его обслуживания и ремонта как минимум лет 20. Главное — четко определить приоритеты и продумать проект.

Компания «Город домов» поможет подобрать оптимальное решение, чтобы вы получили комфортный, теплый и долговечный дом!

Понравилась статья? Есть что возразить? Ставьте лайки, пишите свое мнение в комментариях и подписывайтесь на наш канал “Каркасник Рулит!”