Найти в Дзене
INMYROOM

Идея для двушки: перенесли санузел в кухню и получилось здорово

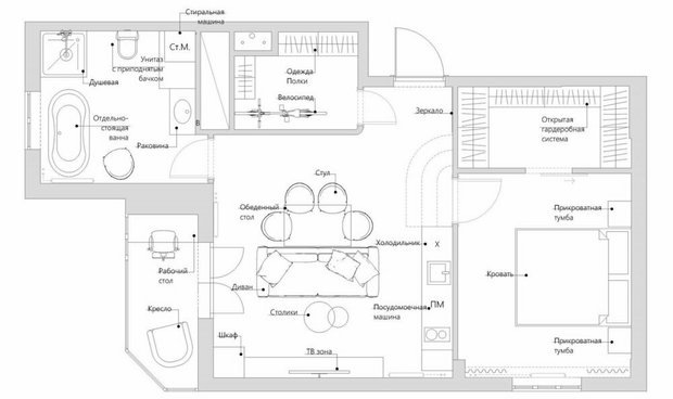
Вдохновляющие идеи для красивого и функционального интерьера Дизайнер Анастасия Потапова создала уникальный интерьер, основанный на глобальной перепланировке двушки 59 кв. м. Одним из ключевых моментов проекта стало решение перенести санузел на место кухни — таким образом осуществили мечту заказчицы о просторной ванной комнате как уютном и комфортном месте для отдыха. Квартира находится в реконструированном московском доме, на втором этаже. Под ней расположены коммерческие помещения, поэтому такая перепланировка соответствует нормам. Плюсы нового решения: Сочетание различных отделочных материалов создает уникальную атмосферу. Часть стен покрашена в природный зеленый оттенок, добавляющему свежести и легкости. Другую часть облицевали плиткой ручной работы, разработанной под заказ с уникальным дизайном, специально для этого проекта. Особое внимание заслуживает акцентная стена, часть которой оставлена в кирпиче. Для дополнительного эффекта она подсвечивается, создавая привлекательную комфо

Вдохновляющие идеи для красивого и функционального интерьера

Дизайнер Анастасия Потапова создала уникальный интерьер, основанный на глобальной перепланировке двушки 59 кв. м. Одним из ключевых моментов проекта стало решение перенести санузел на место кухни — таким образом осуществили мечту заказчицы о просторной ванной комнате как уютном и комфортном месте для отдыха.

 📷
📷

Квартира находится в реконструированном московском доме, на втором этаже. Под ней расположены коммерческие помещения, поэтому такая перепланировка соответствует нормам.

Плюсы нового решения:

  • Создание светлой и просторной ванной комнаты.
  • Возможность установки окна с видом на улицу, что наполняет пространство естественным светом.
  • Улучшение эргономики квартиры за счет оптимального использования площади.
 📷
📷
 📷
📷

Сочетание различных отделочных материалов создает уникальную атмосферу. Часть стен покрашена в природный зеленый оттенок, добавляющему свежести и легкости. Другую часть облицевали плиткой ручной работы, разработанной под заказ с уникальным дизайном, специально для этого проекта. Особое внимание заслуживает акцентная стена, часть которой оставлена в кирпиче. Для дополнительного эффекта она подсвечивается, создавая привлекательную комфортную атмосферу.

 📷
📷

Другие интересные решения:

  • Ванная у окна: одно из главных пожеланий заказчицы было реализовано, что создает атмосферу уюта.
  • Люстра: специально разработана для этого проекта. Кристаллы Swarovski добавляют элегантности, создавая игру света.
  • Ретро-сантехника: привносит в интерьер нотки старинного шарма и очарования.
  • Высокие шкафы: выполнены из натурального дерева, обеспечивают достаточно места для хранения принадлежностей.
  • Плетеные корзины: стильные решения для хранения косметики и аксессуаров гармонично вписываются в общий дизайн.
 📷
📷
 📷
📷

Проект Анастасии Потаповой демонстрирует, как можно преобразовать пространство, учитывая индивидуальные пожелания заказчика. Уникальная перепланировка и стильные дизайн-решения создают функциональный и привлекательный интерьер, в котором гармонично сочетаются уют и стиль.

Сейчас читают: