Добавить в корзинуПозвонить
Найти в Дзене
Ремонт с Прорабом

Обзор дизайнерского ремонта новостройки в ЖК Кристалл

Получил в работу квартиру с интересным дизайн-проектом, которую мне предстояло реализовать. Это "голая" новостройка, где все предстояло реализовать под ключ. Квартира с высокими потолками 3,6 метра и довольно большими окнами. Исходные данные: Москва, ул. Генерала Глаголева 14А, в ЖК Кристалл. Площадь квартиры 50 кв.м, высота потолков 3,6 метра. Буквально в 1-й день, как зашли на объект, увидели такую картину: Перегородки использовались разной толщины, как было указано в дизайн-проекте. В некоторые стены встраивались раздвижные двери, поэтому толщина таких составляла 20 см. После окончания штукатурных работ перешли к инженерным коммуникациям. Разводка электрокабелей была выполнена строго по дизайн-проекту, с учетом расположения розеток, выключателей, светильников и бытовой техники. Трассы водоснабжения и канализации были проложены с учетом будущей расстановки сантехнического оборудования. Системы водоснабжения и отопления были проверены на герметичность. Для этого проводилось опрессовоч
Оглавление

Получил в работу квартиру с интересным дизайн-проектом, которую мне предстояло реализовать.

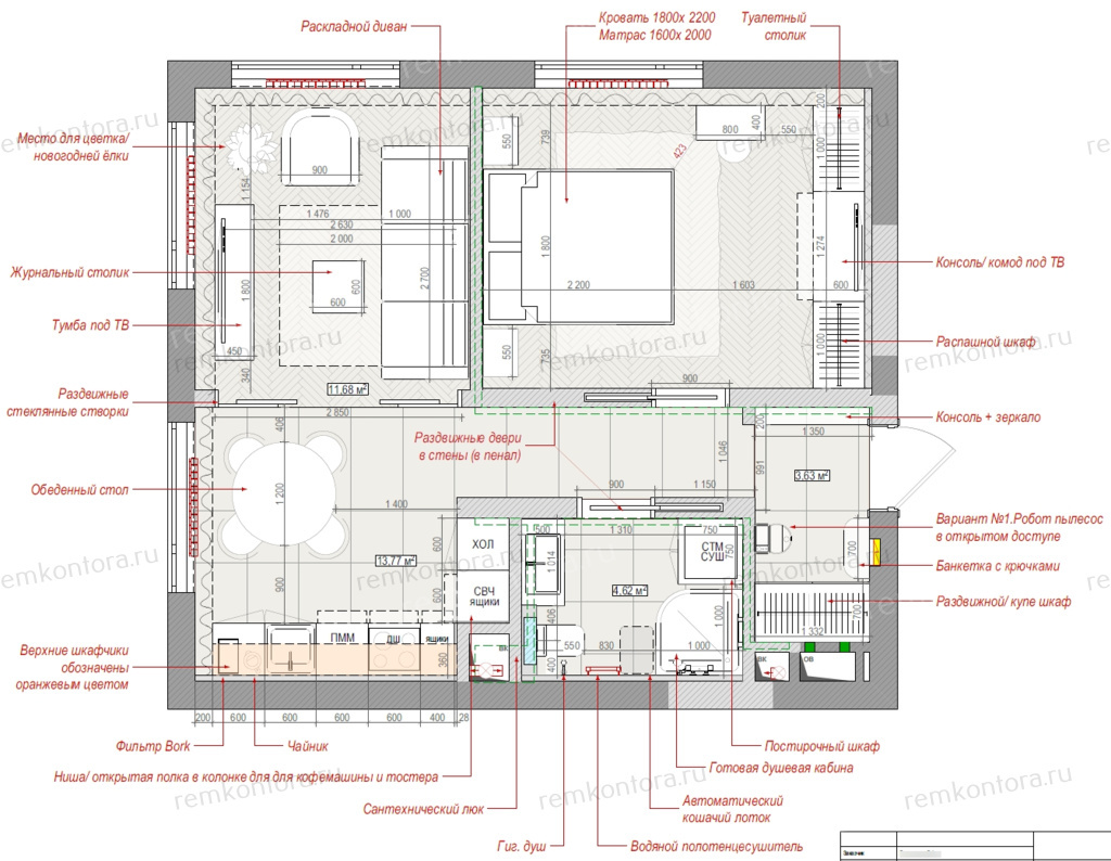
Будущая планировка квартиры
Будущая планировка квартиры

Это "голая" новостройка, где все предстояло реализовать под ключ. Квартира с высокими потолками 3,6 метра и довольно большими окнами.

Вид на окна в Гостиной до и после ремонта
Вид на окна в Гостиной до и после ремонта

Исходные данные: Москва, ул. Генерала Глаголева 14А, в ЖК Кристалл. Площадь квартиры 50 кв.м, высота потолков 3,6 метра.

Начало

Буквально в 1-й день, как зашли на объект, увидели такую картину:

Батареи потекли сразу, как только мы включили отопление (а на улице февраль). Вот такие радиаторы от застройщика. Сообщили об этом в УК (управляющую компанию), где нам буквально в этот же день их заменили. Отопление в любом случае временное, так как в дальнейшем будут новые радиаторы от заказчика.
Батареи потекли сразу, как только мы включили отопление (а на улице февраль). Вот такие радиаторы от застройщика. Сообщили об этом в УК (управляющую компанию), где нам буквально в этот же день их заменили. Отопление в любом случае временное, так как в дальнейшем будут новые радиаторы от заказчика.

1 этап - устройство перегородок, штукатурка

-4

Перегородки использовались разной толщины, как было указано в дизайн-проекте. В некоторые стены встраивались раздвижные двери, поэтому толщина таких составляла 20 см.

После окончания штукатурных работ перешли к инженерным коммуникациям.

2 этап - электрика и сантехника

Разводка электрокабелей была выполнена строго по дизайн-проекту, с учетом расположения розеток, выключателей, светильников и бытовой техники. Трассы водоснабжения и канализации были проложены с учетом будущей расстановки сантехнического оборудования.

Системы водоснабжения и отопления были проверены на герметичность. Для этого проводилось опрессовочное испытание под давлением, чтобы исключить возможные протечки.

3 этап - полусухая стяжка пола

-6
-7
-8

4 этап - плиточные работы

Перед укладкой плиткой постелили маты теплого пола.
Перед укладкой плиткой постелили маты теплого пола.
Практически заканчиваем
Практически заканчиваем

Все работы проводились на специальном плиточном станке:

-12

5 этап - шумоизоляция Спальни

Заказчик попросил шумоизолировать спальную комнату. И это правильно, так как наиболее рациональным решением является шумоизоляция именно спальных комнат, так как сам материал по звукоизоляции не дешевый. Поэтому изолировать лучше внешние стены, которые граничат с соседней квартирой и плюс еще потолок. Для потолков обычно используется каркасная конструкция, которая скрывается за потолком:

-13

И далее потолок обшивается специальным гипсокартоном:

-14

Если все же бюджет позволяет, то можно изолировать все стены в комнате, плюс потолок, так конечно будет лучше, хуже точно не будет.

Для стен используется бескаркасная конструкция, так как она меньше по толщине, чем каркасная, которая начинается от 10 см толщиной. У бескаркасной есть выбор, начинается он от 3 см толщиной, в зависимости от производителя. Чем толще, тем эффективнее.

Бескаркасная шумоизоляция в Спальне
Бескаркасная шумоизоляция в Спальне

6 этап - малярные работы и молдинги

-16
-17

Все стены готовились под покраску. Для тех кто не знает, скажу, что под покраску стены готовить сложнее и дольше, чем под обои. Нужно наносить больше слоев шпаклевки с периодическим ошкуриванием и обеспыливанием стен, включая поклейку стеклохолста, который защищает стены от микротрещин.

По окончании шпаклевочных работ были установлены натяжные потолки, чтобы смонтировать потолочные плинтусы. Далее, следующим этапом, шла установка настенных молдингов.

-18
-19
-20

7 этап - наливной пол

Перед укладкой паркета требуется тщательная подготовка поверхности. Хотя стяжка пола заливается по уровню, она не обеспечивает достаточной ровности для монтажа чувствительных покрытий, таких как паркет или инженерная доска. Некоторые считают, что стяжки достаточно, однако это заблуждение. Для достижения идеального результата и долговечности покрытия обязательно использование наливного пола, который создает гладкое и надежное основание.

Перед началом работ, поверхность тщательно грунтуется и устанавливаются маяки:

-21

При этом стены, которые уже готовы под покраску, укрываются защитной пленкой.

Готовый наливной пол
Готовый наливной пол

На первый взгляд пол кажется ровным, но это не так. При растекании самовыравнивающейся смеси в любом случае возникают неровности, которые мы потом устраняем путем шлифования пола:

-23

8 этап - покраска стен

Покраску стен делали безвоздушным способом. Подготовка к покраске заняла значительное время, так как перед началом работ необходимо было сначала все закрыть пленкой:

-24
-25
-26
-27

9 этап - укладка паркета

Сам процесс укладки паркета, к сожалению, не удалось снять, выкладываю лишь результат работ:

10 этап - установка плинтусов

Плинтусы устанавливаются только после сборки мебели. Иногда этот этап затягивается в связи с задержкой доставки мебели, как это обычно бывает. В нашем случае, мы ждали примерно 3 недели. И как только сборщики мебели сделали свою работу, мы вышли на последний этап - монтаж плинтусов МДФ. Их нам привезли уже крашеными от поставщика.

Финальный этап - завершающие работы

Ремонт практически подошел к концу, остались последние штрихи - это установка розеток, выключателей и чистовой сантехники.

Этот проект в ЖК Кристалл — пример нашего подхода к реализации сложных дизайнерских решений. Если вы планируете дизайнерский ремонт квартиры, ознакомьтесь с нашими услугами, условиями работы и портфолио реализованных проектов на нашем сайте remkontora.ru

Финальные фото окончания ремонта:

Рубрика: концепт - реальность

В данном разделе показываю фото из дизайн-проекта (слева) и что получилось на выходе (справа). На мой взгляд совпадение примерно 90%.

Точная реализация дизайн-проекта — один из главных критериев качества при выполнении дизайнерского ремонта квартир. Мы работаем в тесном контакте с дизайнерами и заказчиками, чтобы воплотить задуманное с максимальной точностью.

Были некоторые изменения, например, гипсокартонный потолок заменили на натяжной. Иногда в процессе ремонта такое происходит, причины на такие изменения бывают разными, не буду сейчас углубляться в эту тему. Итак, слева - концепт, справа - реализация:

Прихожая

-32

Кухня

-33
-34
-35

Гостиная

-36
-37
-38

Спальня

-39
-40
-41

Ванная

-42
-43

Также подготовил видеообзор ремонта этой квартиры:

---

Меня зовут Фёдор Прорабофф — руковожу бригадой по ремонту квартир в Москве. Мы работаем с частными заказчиками и строительными компаниями. Сайт: remkontora.ru

Хотите ремонт с вниманием к деталям или нужна консультация? Оставьте Заявку на бесплатный замер и смету.

Связаться со мной:

Следите за новостями и примерами работ в нашей группе ВК.