Найти в Дзене
INMYROOM

В красках лета: яркий и сочный интерьер в квартире 91 м²

Небанальная четырехкомнатная квартира в старом фонде с продуманной планировкой, яркими решениями и вместительным хранением Интерьер этой квартиры спроектировали дизайнеры студии Petrova l Andronova для актрисы и режиссера Екатерины Замеховской и ее двух детей. Они хотели избежать минимализма и монохромных пространств и создать яркий «живой» интерьер, в который всегда хочется возвращаться. Место: г. Москва
Метраж: 91 м²
Количество комнат: 4
Санузел: 2
Дизайн: Petrova l Andronova Квартира находится в кирпичном доме 1957 года постройки. В ней снесли все стены и возвели их заново, сделав законную перепланировку. В результате получилась просторная квартира с кухней-гостиной, двумя детскими, спальней, гардеробной, холлом и двумя санузлами. Стену, которая хорошо считывается из гостиной, покрасили зеленой моющейся краской. Природный оттенок наполняет интерьер свежестью и энергией. На полу — практичная и стильная плитка с рисунком терраццо. Стены в рабочей зоне полностью облицованы испанской пл
Оглавление

Небанальная четырехкомнатная квартира в старом фонде с продуманной планировкой, яркими решениями и вместительным хранением

Интерьер этой квартиры спроектировали дизайнеры студии Petrova l Andronova для актрисы и режиссера Екатерины Замеховской и ее двух детей. Они хотели избежать минимализма и монохромных пространств и создать яркий «живой» интерьер, в который всегда хочется возвращаться.

Место: г. Москва
Метраж: 91 м²
Количество комнат: 4
Санузел: 2
Дизайн: Petrova l Andronova

Румтур этой квартиры (32 минуты)

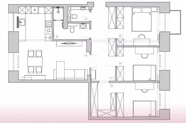
О планировке

Квартира находится в кирпичном доме 1957 года постройки. В ней снесли все стены и возвели их заново, сделав законную перепланировку. В результате получилась просторная квартира с кухней-гостиной, двумя детскими, спальней, гардеробной, холлом и двумя санузлами.

 📷
📷

О кухне

Стену, которая хорошо считывается из гостиной, покрасили зеленой моющейся краской. Природный оттенок наполняет интерьер свежестью и энергией. На полу — практичная и стильная плитка с рисунком терраццо. Стены в рабочей зоне полностью облицованы испанской плиткой с тактильно приятной фактурой.

 📷
📷
 📷
📷
 📷
📷

Давняя мечта Екатерины — кухня в нежном голубом цвете. Ее сделали двухрядной, разместив вдоль окна рабочую столешницу с мойкой и плитой, а напротив — шкафы со встроенной техникой и вместительным хранением. Столешницу продлили на подоконник, увеличив полезную площадь. Кухня оснащена классными технологичными фишечками: встроенной в варочную панель вытяжкой, функциональной раковиной с горизонтальным душем и помывочной для чашек.

 📷
📷
 📷
📷
 📷
📷

О гостиной

Белые стены в гостиной служат отличным фоном для яркой мебели: дивана в обивке насыщенного терракотового оттенка и синего шкафа-витрины. Около окна, рядом с кухней, располагается обеденная зона. Раскладной стол дополнили разномастными цветными стульями и визуально выделили стильными голубыми подвесами. Мягкое объемное кресло служит уютной зоной для отдыха и чтения.

 📷
📷
 📷
📷

О спальне

Центральное место в спальне занимает кровать, напротив хозяйка планирует обустроить рабочее место и поставить пару стеллажей. Для шкафа в этой комнате места не предусмотрено — в квартире есть гардеробная и свою одежду Екатерина хранит в ней.

 📷
📷
 📷
📷
 📷
📷
 📷
📷
 📷
📷

О детских

В детских комнатах предусмотрено все самое необходимое для комфортной учебы, сна, отдыха и игр. Дети самостоятельно выбрали мягкие кровати в ярких обивках. Под высокие шкафы оставлено место, совсем скоро они появятся в комнатах.

 📷
📷
 📷
📷
 📷
📷
 📷
📷
 📷
📷

О холле

Главная фишка холла — пастельно-голубые межкомнатные двери и потолок. Они поддерживают общую концепцию интерьера и привносят в интерьер освежающую прохладу. Ростовое зеркало наполняет помещение светом и «воздухом».

 📷
📷
 📷
📷
 📷
📷

О санузле

В квартире два санузла. Для их отделки использовали квадратную белую плитку с акцентной цветной затиркой. В туалете стену над инсталляцией покрасили зеленой краской. В одном санузле сделали душевую. Сантехнику использовали белую, чтобы она гармонично сочеталась с отделкой. В каждом санузле под раковиной предусмотрели вместительные тумбы для хранения.

 📷
📷
 📷
📷
 📷
📷
 📷
📷

Вот такой жизнерадостной и красивой получилась квартира для творческой семьи. Благодаря яркой цветовой палитре в ней светло и комфортно в течение всего года.

Сейчас читают: