Добавить в корзинуПозвонить
Найти в Дзене
ПСК "Градиент"

Баня с сюрпризом: как совместить приятное с полезным

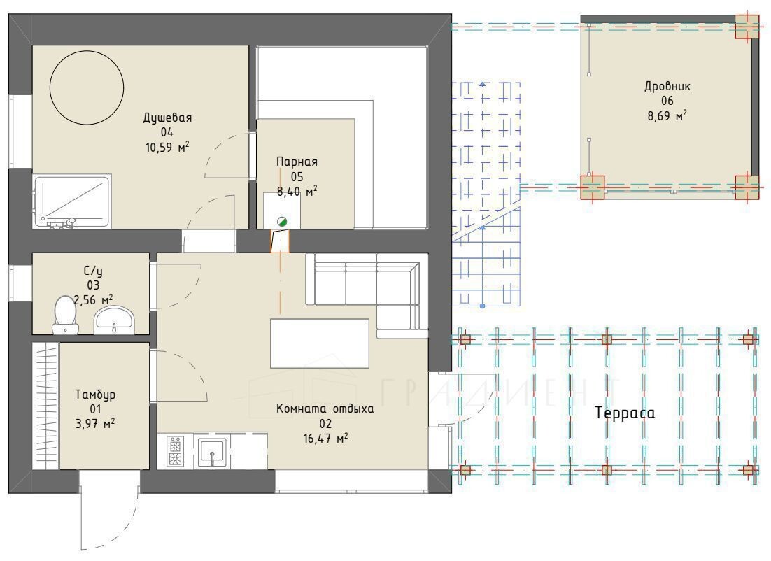
Представляем вашему вниманию интересный проект от ПСК Градиент — баня с эксплуатируемой кровлей. Это не просто место для отдыха и релаксации, а настоящее пространство для наслаждения природой и свежим воздухом. Эксплуатируемая кровля это современное решение, которое позволяет использовать крышу здания как дополнительное пространство. Здесь можно проводить время на свежем воздухе, наслаждаясь красивыми видами или организовать уютное место для отдыха после парной. Общая площадь здания составляет 50,68 м², что позволяет разместить все необходимые помещения для комфортного отдыха. В проекте предусмотрены следующие комнаты: Проект был реализован силами заказчика, воплощая в жизнь все задуманные идеи проекта и создавая уникальное пространство для отдыха, с которым вы можете познакомится ниже:

Представляем вашему вниманию интересный проект от ПСК Градиентбаня с эксплуатируемой кровлей. Это не просто место для отдыха и релаксации, а настоящее пространство для наслаждения природой и свежим воздухом.

Эксплуатируемая кровля это современное решение, которое позволяет использовать крышу здания как дополнительное пространство. Здесь можно проводить время на свежем воздухе, наслаждаясь красивыми видами или организовать уютное место для отдыха после парной.

Общая площадь здания составляет 50,68 м², что позволяет разместить все необходимые помещения для комфортного отдыха. В проекте предусмотрены следующие комнаты:

Планировка
Планировка

Проект был реализован силами заказчика, воплощая в жизнь все задуманные идеи проекта и создавая уникальное пространство для отдыха, с которым вы можете познакомится ниже:

Обзор бани GTC-51
Обзор бани GTC-51