Добавить в корзинуПозвонить
Найти в Дзене
АиФ – Санкт-Петербург

В Пулково останутся лишь две точки, где можно предложить или заказать такси

Оформлять услуги такси в Пулково скоро будет можно лишь в двух специально отведённых для этого местах. Такое решение приняли власти Петербурга, и проект изменений в распоряжение городского комитета по транспорту уже появился на портале антикоррупционной экспертизы. Как следует из документа, предлагать и оформлять услуги перевозчиков можно будет возле специальных стоек на первом этаже пассажирского терминала. Их оборудуют сразу у выходов из зелёного и красного коридоров – это хорошо видно на прилагаемой схеме. Ранее каких-то конкретных мест для заказа такси или предложения своих услуг перевозчика в петербургском аэропорту не было. Водители в большинстве случаев поджидали возможных клиентов сразу на выходе из коридоров или терминала, зазывая их именно в свои авто. К слову, ранее администрация воздушной гавани подняла цены на парковку у аэропорта для частных машин – краткосрочная парковка на 30 минут теперь стоит 400 рублей вместо 350, как это было ранее. Тарифы, как объяснили в пресс-слу
   В Пулково останутся лишь две точки, где можно предложить или заказать такси
В Пулково останутся лишь две точки, где можно предложить или заказать такси

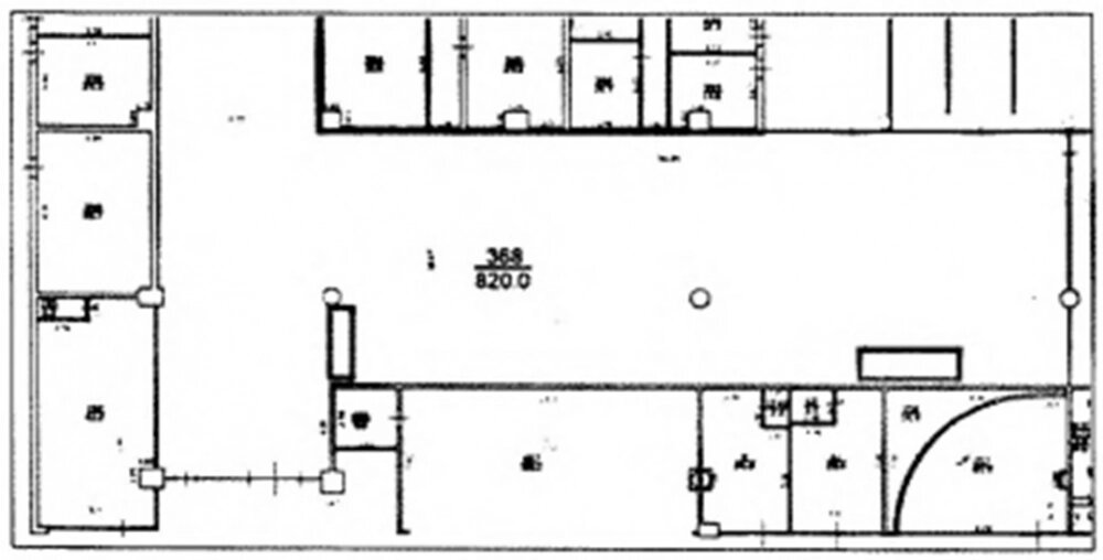
Оформлять услуги такси в Пулково скоро будет можно лишь в двух специально отведённых для этого местах. Такое решение приняли власти Петербурга, и проект изменений в распоряжение городского комитета по транспорту уже появился на портале антикоррупционной экспертизы.

Как следует из документа, предлагать и оформлять услуги перевозчиков можно будет возле специальных стоек на первом этаже пассажирского терминала. Их оборудуют сразу у выходов из зелёного и красного коридоров – это хорошо видно на прилагаемой схеме.

Ранее каких-то конкретных мест для заказа такси или предложения своих услуг перевозчика в петербургском аэропорту не было. Водители в большинстве случаев поджидали возможных клиентов сразу на выходе из коридоров или терминала, зазывая их именно в свои авто.

К слову, ранее администрация воздушной гавани подняла цены на парковку у аэропорта для частных машин – краткосрочная парковка на 30 минут теперь стоит 400 рублей вместо 350, как это было ранее. Тарифы, как объяснили в пресс-службе Пулково, выросли с учётом уровня инфляции – примерно на 50–100 рублей.

   Кликабельно. Фото: Аэропорт Пулково/ скриншот с сайта
Кликабельно. Фото: Аэропорт Пулково/ скриншот с сайта

Что касается такси, новый закон о пассажирских перевозках вступил в силу в 2023 году, частично – с сентября 2024-го. Он определил внешний вид машин, регламентировал их предрейсовые осмотры, правила обслуживания на вокзалах и в аэропортах, оформление полиса обязательного страхования гражданской ответственности перевозчика и прочее. Подробнее об этом можно узнать из материала spb.aif.ru.