Найти в Дзене
Мастерская дизайнера

Изменения в проекте освещения квартиры на Федоскинской: улучшение групп освещения согласно предпочтениям клиента

Это будет краткая заметка в виде отчета по новым корректировкам дизайн-проекта в части освещения. Предыдущий вариант технического дизайн-проекта этой квартиры опубликован здесь: Вот обновленный план освещения квартиры: Этот план выполнен в онлайн-редакторе Remplanner. Заказчик хотел упростить первоначальную схему освещения, объединив существующий потолочный светильник и трек в одну линию с одним выключателем. Я предлагаю полностью отказаться от отдельного потолочного светильника и удлинить трек до входной зоны. Поскольку было желание использовать два типа светильников в треке, которые могут включаться по отдельности (одна группа предназначена для акцентированного освещения картин и постеров), я рекомендую установить двухклавишные проходные переключатели в начале и в конце длинного коридора. Трек должен быть трёхфазным или переделанным для использования двух групп освещения - с некоторыми системами такие решения возможны. Также предусмотрено ночное освещение на уровне пола – два светил
Оглавление

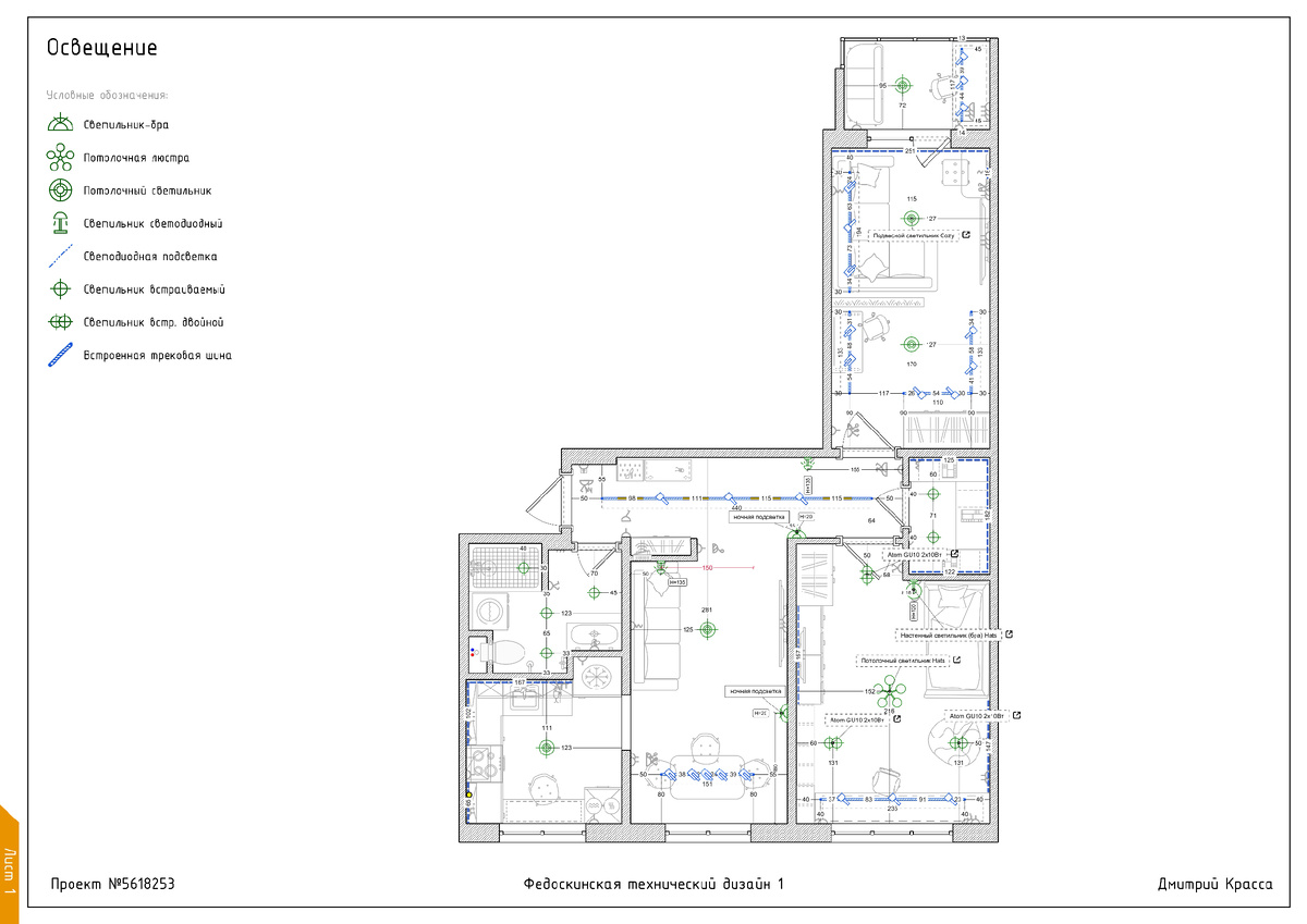
Это будет краткая заметка в виде отчета по новым корректировкам дизайн-проекта в части освещения.

Предыдущий вариант технического дизайн-проекта этой квартиры опубликован здесь:

Вот обновленный план освещения квартиры:

Размещение светильников
Размещение светильников

Этот план выполнен в онлайн-редакторе Remplanner.

Освещение прихожей

Заказчик хотел упростить первоначальную схему освещения, объединив существующий потолочный светильник и трек в одну линию с одним выключателем.

Я предлагаю полностью отказаться от отдельного потолочного светильника и удлинить трек до входной зоны.

Поскольку было желание использовать два типа светильников в треке, которые могут включаться по отдельности (одна группа предназначена для акцентированного освещения картин и постеров), я рекомендую установить двухклавишные проходные переключатели в начале и в конце длинного коридора. Трек должен быть трёхфазным или переделанным для использования двух групп освещения - с некоторыми системами такие решения возможны.

Также предусмотрено ночное освещение на уровне пола – два светильника: один в коридоре, другой в гостиной напротив входа на кухню. Это обеспечит подсветку всего пути к туалету и кухне.

Освещение гостиной и кухни

В гостиной и на кухне в целях улучшения освещения были удалены почти все трековые системы, за исключением одной в обеденной зоне. Она также разделена на фазы – одна группа управляет светильниками над столом, а другая отвечает за подсветку постеров на боковых стенах этой зоны.

Освещение на кухне было упрощено, однако теперь оно стало более функциональным. Свет на кухне, будь то общее потолочное освещение или рабочее, можно включить как при входе на кухню, так и непосредственно у рабочего места через выключатель на кухонном фартуке.

План управление освещением
План управление освещением

Освещение ванной комнаты

Заказчик хотел подключить все светильники к одному выключателю у двери. Я установил дополнительный светильник над душем, но рекомендую управлять им независимо от общего освещения. Поскольку душ отделён перегородкой, логично разместить выключатель для этого светильника прямо на ней, рядом с выключателем вентиляции.

Предложение по освещению спальни и кабинета

Расположение мебели в спальне было изменено, что повлекло за собой изменение освещения.

Комната разделена декоративным экраном на два отдельных пространства, каждое из которых оборудовано собственным потолочным светильником.

Освещение дополняется трековыми системами, установленными над рабочими, гардеробными и спальными секциями. Здесь можно сочетать направленные споты и подвесные светильники.

Это уже второй вариант схемы освещения, но, вероятно, не последний.

Мы продолжим обсуждение и внесём необходимые коррективы.

Все материалы для этого проекта собраны здесь:

Трехкомнатная квартира на Федоскинской | Мастерская дизайнера | Дзен

Подробнее о моих услугах можно узнать здесь.