Найти в Дзене
Мастерская дизайнера

Технический дизайн квартиры на Федоскинской: начальный вариант для утверждения, включающий варианты освещения спальни и детской комнаты

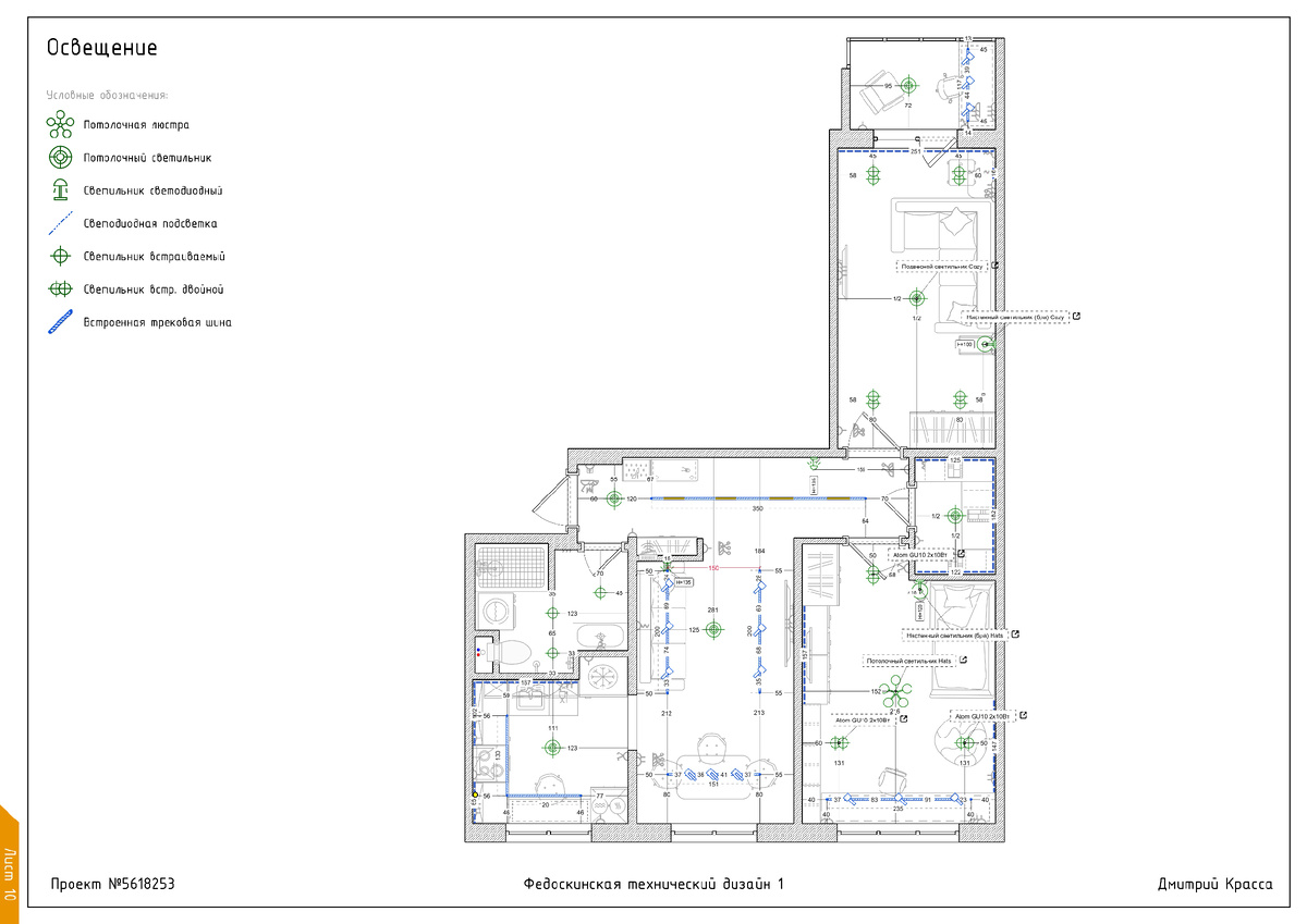
Перед тем как начать ремонтные работы, нужно подготовить техническую документацию проекта, которая включает схемы размещения розеток, выключателей и осветительных приборов. Этот этап проектирования осуществляется согласно общей концепции квартиры – на текущий момент разработаны визуализации общественных зон и служебных помещений, которые можно увидеть в данной подборке: В данном отчете я не стану детально рассматривать все аспекты проектирования; планировку розеток, выключателей и прочие детали можно найти по ссылке на проект в Remplanner. Это весьма удобно, так как позволяет мне и клиенту делиться данными в их исходном формате – полной версии модели квартиры, доступной для онлайн-просмотра: Я отдельно разберу варианты освещения для детской комнаты и спальни, поскольку мы еще не обсудили это с моим клиентом, и необходимо визуально продемонстрировать предложения. Для этой комнаты я предлагаю установить центральную люстру, которая выполняет функции основного и декоративного источника све
Оглавление

Перед тем как начать ремонтные работы, нужно подготовить техническую документацию проекта, которая включает схемы размещения розеток, выключателей и осветительных приборов.

Этот этап проектирования осуществляется согласно общей концепции квартиры – на текущий момент разработаны визуализации общественных зон и служебных помещений, которые можно увидеть в данной подборке:

Трехкомнатная квартира на Федоскинской | Мастерская дизайнера | Дзен

В данном отчете я не стану детально рассматривать все аспекты проектирования; планировку розеток, выключателей и прочие детали можно найти по ссылке на проект в Remplanner. Это весьма удобно, так как позволяет мне и клиенту делиться данными в их исходном формате – полной версии модели квартиры, доступной для онлайн-просмотра:

Демонстрация дизайн-проекта

Я отдельно разберу варианты освещения для детской комнаты и спальни, поскольку мы еще не обсудили это с моим клиентом, и необходимо визуально продемонстрировать предложения.

План светильников в Remplanner
План светильников в Remplanner
План управления освещением в Remplanner
План управления освещением в Remplanner

Освещение детской комнаты.

Для этой комнаты я предлагаю установить центральную люстру, которая выполняет функции основного и декоративного источника света. Она создает мягкое рассеянное освещение, подходящее для жилого помещения, но при этом достаточно оригинальное, чтобы соответствовать интерьеру детской или подростковой комнаты. В дополнение к люстре можно выбрать бра из той же серии. Чтобы обеспечить равномерное освещение остальных участков помещения, рекомендую использовать парные встраиваемые светильники. Для рабочей зоны у окна подойдет трековый светильник. Декоративная подсветка с использованием светодиодной ленты будет реализована в отдельных акцентах, детали которых будут уточняться позже.

Подборка светильников в детскую
Подборка светильников в детскую

Хочу обратить внимание, что в проекте Remplanner доступны ссылки на все представленные модели – так что те, кто заинтересован, могут ознакомиться с ними, перейдя по ссылке на проект, которую я разместил ранее.

Освещение спальни.

В спальне я тоже стремлюсь создать мягкое, рассеянное освещение, и в комплект входят лампы с нежными тканевыми плафонами. Подход к выбору освещения такой же, как и для детской комнаты, однако здесь предпочтение отдано светильникам с более сдержанным дизайном.

Подборка светильников в спальню.
Подборка светильников в спальню.

Итак, наряду с этими коллажами и проектами представлена значительная часть чертежей, которые предстоит обсудить и согласовать с клиентом до начала дальнейших работ.

Узнать о моих услугах по дизайну интерьера можно на моей странице на Houzz.